IP-III-17 - 第26页
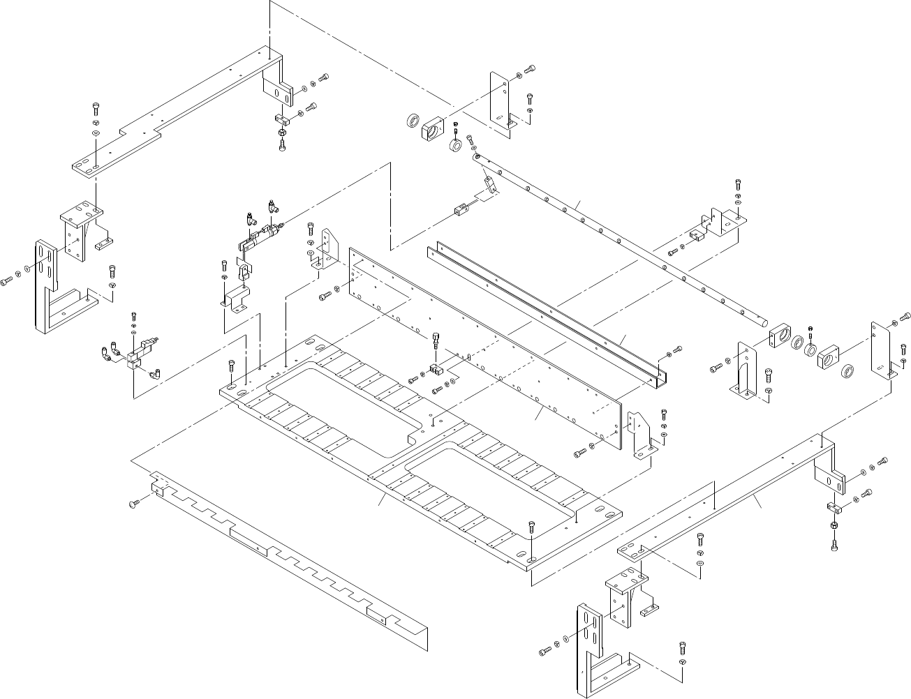
5.ノズルチェンジ 1-1(QPN) 5.Nozzle change 1-1(QPN) 番号 図番 & コード番号 個数 品名 規格 備考 No. Drg.No. & Code No. QTY Description Rating Remarks 1 PPB1120 2 BLOCK ブロック 2 PPN1011 2 STOPPER ストッパ 3 PPN1050 1 KNUCKLE ナックル 4 PPN1141 …

IP-
III
PARTS LIST ver17
5.ノズルチェンジ 1-1(QPN)
5.Nozzle change 1-1(QPN)
5 - 1
5.ノズルチェンジ 1-1(QPN)
5.Nozzle change 1-1(QPN)
Ref.31-1
Ref.31-1
Ref.31-1
Ref.33-7
48
39
17
43
39
48
5
47
39
43
4
54
15
43
39
49
57
41
18
40
55
54
40
44
40
55
8
41
58
20
40
55
49
39
27
21
2
38
37
27
9
25
43
39
49
22
40
51
24
23
40
53
44
40
55
7
36
13
54
40
55
54
40
44
12
19
40
55
57
41
35
3
46
52
38
37
2
21
27
32
32
28
29
10
56
40
6
45
42
59
60
30
33
39
48
16
43
39
48
5
4
47
39
43
14
43
39
49
11
21
1
37
50
40
54
1
37
50
40
54
x8
208
176
165
175
161
175
161
175
161
183
162
176
167
175
161
13
13
B
A
139
26

5.ノズルチェンジ 1-1(QPN)
5.Nozzle change 1-1(QPN)
番号 図番 & コード番号 個数 品名 規格 備考
No. Drg.No. & Code No. QTY Description Rating Remarks
1 PPB1120 2 BLOCK ブロック
2 PPN1011 2 STOPPER ストッパ
3 PPN1050 1 KNUCKLE ナックル
4 PPN1141 2 BKT BKT
5 PPN1150 2 PLATE プレート
6 QPN1700 1 PLATE プレート
7 PPN1193 1 PLATE, BASE プレート ベース
8 PPN1210 1 DUCT ダクト
9 PPN1240 1 SHAFT シャフト
10 PPN1320 1 BKT BKT
11 PPN1351 1 BKT BKT
12 PPN1361 1 BKT BKT
13 PPN1400 1 COVER, WIRING カバー 配線
14 PPN1423 1 BKT BKT
15 PPN1453 1 BKT BKT
16 PPN1480 1 BKT, CONNECTING BKT ツナギ
17 PPN1492 1 BKT, CONNECTING BKT ツナギ
18 PPN1500 1 BKT BKT
19 PPN1510 1 BKT BKT
20 PPN1520 1 BKT BKT
21 PPN1530 3 HOLDER ホルダ
22 PPN1540 1 PLATE プレート
23 PPN1550 1 PLATE プレート
24 PPN1560 1 BOLT ボルト
25 PPN1590 1 BKT BKT
27 H4203H 3 BEARING ベアリング 6902ZZ
28 S2097T 1 CYLINDER, AIR シリンダ エアー CDJ2D16-30-C73
29 S2181A 1 JOINT, KNUCKLE ジョイント ナックル I-JO16B
30 Y3049G 2 UNION ユニオン KJL04-M5(シロ)
32 K5325A 2 CONTROLLER, SPEED コントローラ スピード M4R-M5-O
33 H1075N 1 VALVE, SOL バルブ SOL PCS-241-M5-D24-SP
35 S2182A 1 JOINT, KNUCKLE ジョイント ナックル Y-JO16B
36 K5208A SCREW, TRUSS 小ネジ トラス M4X6L
37 N1082A NUT, HEX ナット 六角 M5 P=0.8
38 N4036A SCREW, HEX SOCKET SET ネジ 六角穴止め M5X5L
39 W1024A WASHER, LOCK ワッシャ スプリング 6M/M
40 W1023A WASHER, LOCK ワッシャ スプリング 5M/M
IP-Ⅲ PARTS LIST ver17
5 - 2
5.ノズルチェンジ 1-1(QPN)
5.Nozzle change 1-1(QPN)

5.ノズルチェンジ 1-1(QPN)
5.Nozzle change 1-1(QPN)
番号 図番 & コード番号 個数 品名 規格 備考
No. Drg.No. & Code No. QTY Description Rating Remarks
41 W1022A WASHER, LOCK ワッシャ スプリング 4M/M
42 W1021A WASHER, LOCK ワッシャ スプリング 3M/M
43 W1045A WASHER, FLAT ワッシャ 平 4W-6
44 W1044A WASHER, FLAT ワッシャ 平 4W-5
45 W1042A WASHER, FLAT ワッシャ 平 4W-3
46 W1012A WASHER, CONICAL ワッシャ 皿 M-5-L
47 H5326A BOLT, HEX SOCKET ボルト 六角穴 M6X25L
48 H5324A BOLT, HEX SOCKET ボルト 六角穴 M6X20L
49 H5322A BOLT, HEX SOCKET ボルト 六角穴 M6X15L
50 H5304A BOLT, HEX SOCKET ボルト 六角穴 M5X25L
51 H5303A BOLT, HEX SOCKET ボルト 六角穴 M5X22L
52 H5302A BOLT, HEX SOCKET ボルト 六角穴 M5X20L
53 H5301A BOLT, HEX SOCKET ボルト 六角穴 M5X18L
54 H5300A BOLT, HEX SOCKET ボルト 六角穴 M5X15L
55 H5299A BOLT, HEX SOCKET ボルト 六角穴 M5X12L
56 H5298A BOLT, HEX SOCKET ボルト 六角穴 M5X10L
57 H5289A BOLT, HEX SOCKET ボルト 六角穴 M4X12L
58 H5287A BOLT, HEX SOCKET ボルト 六角穴 M4X8L
59 H5279A BOLT, HEX SOCKET ボルト 六角穴 M3X20L
60 Y3049N 1 UNION, ELBOW ユニオン エルボ KQ2L06-M5 ・
IP-Ⅲ PARTS LIST ver17
5 - 3
5.ノズルチェンジ 1-1(QPN)
5.Nozzle change 1-1(QPN)