IP-III-17 - 第83页
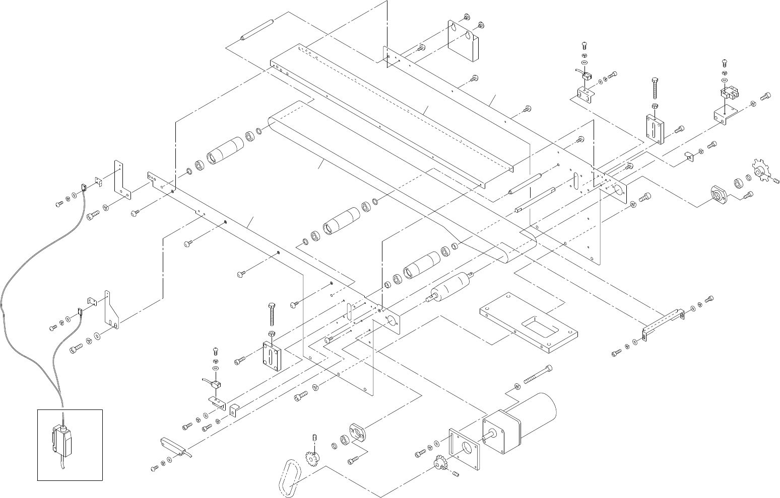
23.パーツ排出装置(QPG) 23.Parts ejector(QPG) 番号 図番 & コード番号 個数 品名 規格 備考 No. Drg.No. & Code No. QTY Description Rating Remarks 1 IPG0070 2 COLLAR カラー 2 IPG0101 1 DOG ドッグ 3 KPG0070 2 COLLAR カラー 4 KPG0110 2 PLATE プレート …

IP-
III
PARTS LIST ver17
23.パーツ排出装置(QPG)
23.Parts ejector(QPG)
23 - 1
23.パーツ排出装置(QPG)
23.Parts ejector(QPG)
Ref.31-1
Ref.31-1
Ref.31-1
Ref.33-7
54
42
44
18
44
42
54
12
41
49
43
41
47
29
26
9
39
33
52
5
27
1
33
39
34
40
48
30
45
42
36
8
42
54
35
42
45
30
21
44
42
53
37
37
46
38
50
4
37
37
37
10
55
32
45
42
35
43
40
54
31
40
54
22
32
45
42
35
14
27
6
27
6
17
6
14
27
27
6
14
27
3
27
3
13
16
15
40
48
52
39
5
27
1
2
8
42
54
25
41
51
28
45
42
36
50
46
38
4
37
37
37
11
37
37
35
42
45
30
21
44
42
53
19
7
7
16
20
56
56
x9
208
176
165
175
161
175
161
175
161
183
162
176
167
175
161
13
13
B
A
139
26

23.パーツ排出装置(QPG)
23.Parts ejector(QPG)
番号 図番 & コード番号 個数 品名 規格 備考
No. Drg.No. & Code No. QTY Description Rating Remarks
1 IPG0070 2 COLLAR カラー
2 IPG0101 1 DOG ドッグ
3 KPG0070 2 COLLAR カラー
4 KPG0110 2 PLATE プレート
5 KPG0120 2 FLANGE フランジ
6 KPG0160 4 COLLAR カラー
7 KPG0180 2 BOLT ボルト
8 KPG0201 2 GUIDE ガイド
9 KPG0210 1 PLATE プレート
10 QPG0320 1 PLATE, SIDE プレート サイド
11 QPG0330 1 PLATE, SIDE プレート サイド
12 PPG0120 1 PLATE, CONNECTING プレート ツナギ
13 PPG0130 1 ROLLER ローラ
14 PPG0140 3 ROLLER ローラ
15 PPG0150 1 SHAFT シャフト
16 PPG0160 2 SHAFT シャフト
17 PPG0173 1 BELT ベルト
18 PPG0180 1 STOPPER ストッパ
19 PPG0190 1 BOX BOX
20 PPG0202 1 GUIDE, BELT ガイド ベルト
21 PPG0211 2 BKT, SW BKT SW
22 PPG0251 1 BKT, SENSOR BKT センサ
25 KPG0150 1 PLATE, SW プレート SW
26 . 1 HEAD, GEAR ヘッド ギヤ 2GN-60K
27 H4131A 8 BEARING ベアリング 698ZZ
28 S4042A 1 SENSOR, PHOTO センサ フォト EE-SX670A
29 M5056F 1 MOTOR モータ PB206-401
30 S3135H 2 SW, PHOTOELECTRIC SW 光電 PQ-01
31 H1040C 1 AMPLIFIER アンプ PS2-61
32 S3135A 2 SW, PHOTOELECTRIC SW 光電 PS52
33 S3035A 2 SPROCKET スプロケット RS25-14T 1-Type
34 T2003A 1 CHAIN チェーン RS25NP 34 Link
35 K5173A SCREW, C/R PAN 小ネジ 十穴鍋 M3X10L
36 K5178T SCREW, C/R PAN 小ネジ 十穴鍋 M3X12L
37 K5255A SCREW, HEX SOCKET BUTTON 小ネジ六角穴ボタン M3X4L
38 N1080A NUT, HEX ナット 六角 M4 P=0.7
39 N4015A SCREW, HEX SOCKET SET ネジ 六角穴止め M4X4L
IP-Ⅲ PARTS LIST ver17
23 - 2
23.パーツ排出装置(QPG)
23.Parts ejector(QPG)

23.パーツ排出装置(QPG)
23.Parts ejector(QPG)
番号 図番 & コード番号 個数 品名 規格 備考
No. Drg.No. & Code No. QTY Description Rating Remarks
40 W1023A WASHER, LOCK ワッシャ スプリング 5M/M
41 W1022A WASHER, LOCK ワッシャ スプリング 4M/M
42 W1021A WASHER, LOCK ワッシャ スプリング 3M/M
43 W1043A WASHER, FLAT ワッシャ 平 4W-4
44 W1042A WASHER, FLAT ワッシャ 平 4W-3
45 W1040A WASHER, FLAT ワッシャ 平 3M/MX0.5X7
46 H5173A BOLT, HEX ボルト 六角 M4X35L(off-thread)
47 H5170A BOLT, HEX ボルト 六角 M4X12L
48 H5299A BOLT, HEX SOCKET ボルト 六角穴 M5X12L
49 H5296H BOLT, HEX SOCKET ボルト 六角穴 M4X55L
50 H5287A BOLT, HEX SOCKET ボルト 六角穴 M4X8L
51 H5286A BOLT, HEX SOCKET ボルト 六角穴 M4X6L
52 H5285A BOLT, HEX SOCKET ボルト 六角穴 M4X5L
53 H5275A BOLT, HEX SOCKET ボルト 六角穴 M3X8L
54 H5273A BOLT, HEX SOCKET ボルト 六角穴 M3X5L
55 QPG0340 1 PLATE, SENSOR プレート センサ
56 QPG0350 2 SLIT スリット ・
IP-Ⅲ PARTS LIST ver17
23 - 3
23.パーツ排出装置(QPG)
23.Parts ejector(QPG)