CP-733E-03 - 第17页
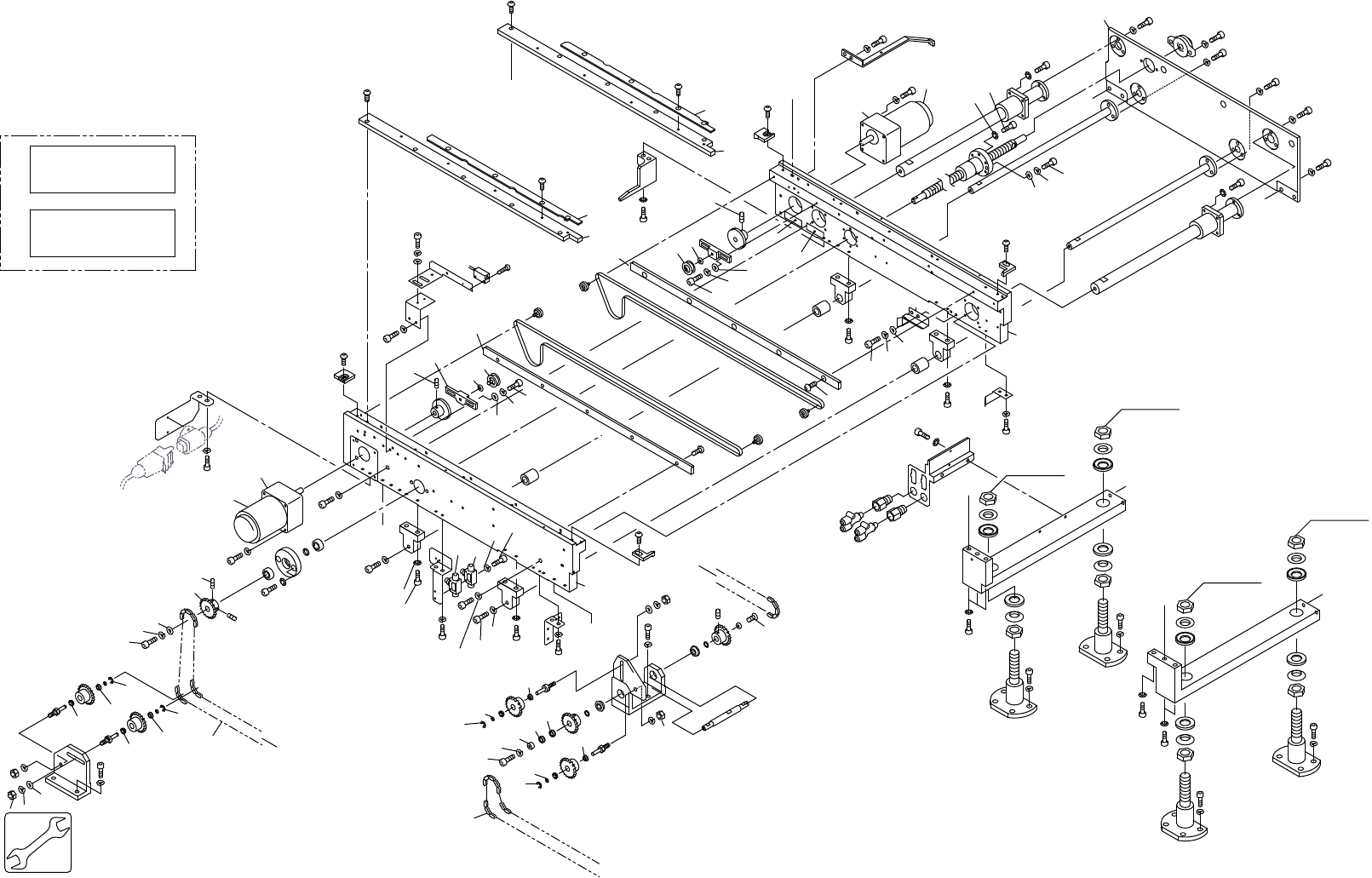
3.1.インコンベア(DCQC) 3.1.In conveyor(DCQC) 番号 図番 & コード番号 個数 品名 規格 備考 材質 No. Drg.No. & Code No. QTY Description Rating Remarks Materials 4 DCQC0080 1 BOLT, STUD ボルト スタッド FE 5 DCQC0090 2 GUIDE, BELT ガイド ベルト AL 6…

84
86
Ref.31-1
Ref.31-1
Ref.31-1
Ref.31-1
0.5 1 2 10
186
MQC-1061
PULLEY ASSY
MQC-1290
PULLEY ASSY
F
86
84
C
D
B
A
E
E
B
A
C
D
F
x8
標準
Standard
K
60
59
59
64
60
59
59
64
20
薄厚基板対応(オプション)
**********
K
標準
Standard
L
60
59
59
63
64
MQC1170
LF950ZZ
LF950ZZ
MQC1170
L
DCQC0810
薄厚基板対応(オプション)
**********
ADCQC8030
3 - 2
3.1.インコンベア(DCQC)
3.1.In conveyor(DCQC)
3.1.インコンベア(DCQC)
3.1.In conveyor(DCQC)
CP-733E,CP-732E PARTS LIST
64.68N・m
64.68N・m
64.68N・m
64.68N・m

3.1.インコンベア(DCQC)
3.1.In conveyor(DCQC)
番号 図番 & コード番号 個数 品名 規格 備考 材質
No. Drg.No. & Code No. QTY Description Rating Remarks Materials
4 DCQC0080 1 BOLT, STUD ボルト スタッド FE
5 DCQC0090 2 GUIDE, BELT ガイド ベルト AL
6 DCQC0320 2 BELT ベルト PL
8 DCQC0331 2 PULLEY, MOTOR プーリ モータ FE
9 DCQC0340 1 SHAFT シャフト FE
10 DCQC0100 1 BKT BKT FE
11 DCQC0350 1 BKT BKT FE
13 DCQC0630 2 BAR, GUIDE バー ガイド FE
15 DCQC0380 2 BKT BKT FE
16 DCQC0390 2 BKT BKT FE
18 DCQC0410 2 BKT BKT FE
20 DCQC0110 1 BOLT, STUD ボルト スタッド FE
26 DCQC0270 2 SHAFT シャフト OT
27 DCQC0120 1 BKT BKT FE
28 DCQC0021 1 PLATE, SIDE プレート サイド AL
29 DCQC0011 1 PLATE, SIDE プレート サイド AL
31 DCQC0060 1 BRIDGE ブリッジ FE
32 DCQC0070 1 BRIDGE ブリッジ FE
40 DCQC0470 1 BKT BKT FE
42 DCQC0490 1 BKT, SENSOR BKT センサ FE
44 DCQC0710 1 STOPPER ストッパ FE
45 DCQC0720 1 STOPPER ストッパ FE
53 DCQC0550 1 BKT BKT FE
58 DCQC0190 1 BOLT, STUD ボルト スタッド FE
59 DCQC0200 1 BOLT, STUD ボルト スタッド FE
61 DCQC0590 1 LEVER レバー FE
63 DCQC0610 1 BKT BKT FE
64 DCQC0210 1 BKT BKT FE
67 DCQC0730 3 STOPPER ストッパ PL
75 CSQC1210 8 WASHER, SPHERICAL ワッシャ 球面 FE
76 CSQC1220 8 WASHER, SPHERICAL ワッシャ 球面 FE
77 CSQC1230 8 NUT, HEX ナット 六角 FE
81 DCQC0740 1 SPROCKET スプロケット OT
83 MQC1061 2 テンションプーリ ASSY OT
84 MQC1073 1 SEAL シール PL
85 MQC1292 4 PULLEY ASSY プーリ ASSY OT
86 MQC1300 1 SEAL シール PL
CP-733E,CP-732E PARTS LIST
3 - 3
3.1.インコンベア(DCQC)
3.1.In conveyor(DCQC)

3.1.インコンベア(DCQC)
3.1.In conveyor(DCQC)
番号 図番 & コード番号 個数 品名 規格 備考 材質
No. Drg.No. & Code No. QTY Description Rating Remarks Materials
87 MQC3313 1 GUIDE, CONVEYOR ガイド コンベア FE
88 MQC3323 1 GUIDE, CONVEYOR ガイド コンベア FE
90 MQC4130 2 ジク FE
92 GVC0320 2 COLLAR カラー FE
93 GVC0350 4 COLLAR カラー FE
94 GVC2311 2 SHAFT シャフト FE
95 CLC9051 1 HOLDER ホルダ FE
96 IQC6041 2
RETAINER, BEARING
押え ベアリング FE
100 H4440A 2
BEARING, MINIATURE
ベアリング ミニチュア L-1910ZZ FE
101 S3033A 1 SPROCKET スプロケット RS25-13T1-Type FE
102 T2026E 1 CHAIN チェーン RS25NP 174LINK FE
103 K5335A 2
CONTROLLER, SPEED
コントローラ スピード JSU4 OT
104 S3034A 4 SPROCKET スプロケット RS25-13T2-Type FE
106 H4445A 8
BEARING, MINIATURE
ベアリング ミニチュア LF-1050ZZ FE
108 S3141B 1 SW, PHOTOELECTRIC SW 光電 DL-S3R OT
109 M5017H 1
MOTOR, INDUCTION
モータ インダクション 2IK6RGN-A-K1 OT
110 H4006A 2
HEAD, GEAR
ヘッド ギヤ 2GN-7.5K OT
111 S1022A 4
CIR-CLIP
サークリップ ST-EW-4 FE
113 Y3066X 2
UNION
ユニオン KQ2E06-01 OT
114 K50764 2 CONNECTOR コネクタ KQ2U06-01S OT
122 R2074B 2 RING, LOCKING リング 締結 UR8X11 OT
123 H4451A 2
BEARING, MINIATURE
ベアリング ミニチュア LF-1680ZZ FE
124 W10022 1 WASHER ワッシャ TL-182(NO2) OT
127 M5017E 1
MOTOR, INDUCTION
モータ インダクション 2IK6RGN-A-E2 OT
128 H5296C 8
BOLT, HEX SOCKET
ボルト 六角穴
M4X45L FE
130 DCQC0221 1 PLATE プレート FE
131 DCQC0250 1 PLATE, GUIDE プレート ガイド FE
132 DCQC0240 1 PLATE, GUIDE プレート ガイド FE
133 DCQC0231 1 PLATE プレート FE
135 DCQC0260 1 BALL SCREW ボールネジ OT
136 DCQC0620 1 COLLAR カラー FE
137 DCQC0750 1 RETAINER 押え FE
139 DCQC0760 1 PLATE プレート FE
152 H5281A
BOLT, HEX SOCKET
ボルト 六角穴
M3X25L FE
155 H5287A
BOLT, HEX SOCKET
ボルト 六角穴
M4X8L FE
156 H5288A
BOLT, HEX SOCKET
ボルト 六角穴
M4X10L FE
157 H5289A
BOLT, HEX SOCKET
ボルト 六角穴
M4X12L FE
CP-733E,CP-732E PARTS LIST
3 - 4
3.1.インコンベア(DCQC)
3.1.In conveyor(DCQC)