CP-733E-03 - 第20页
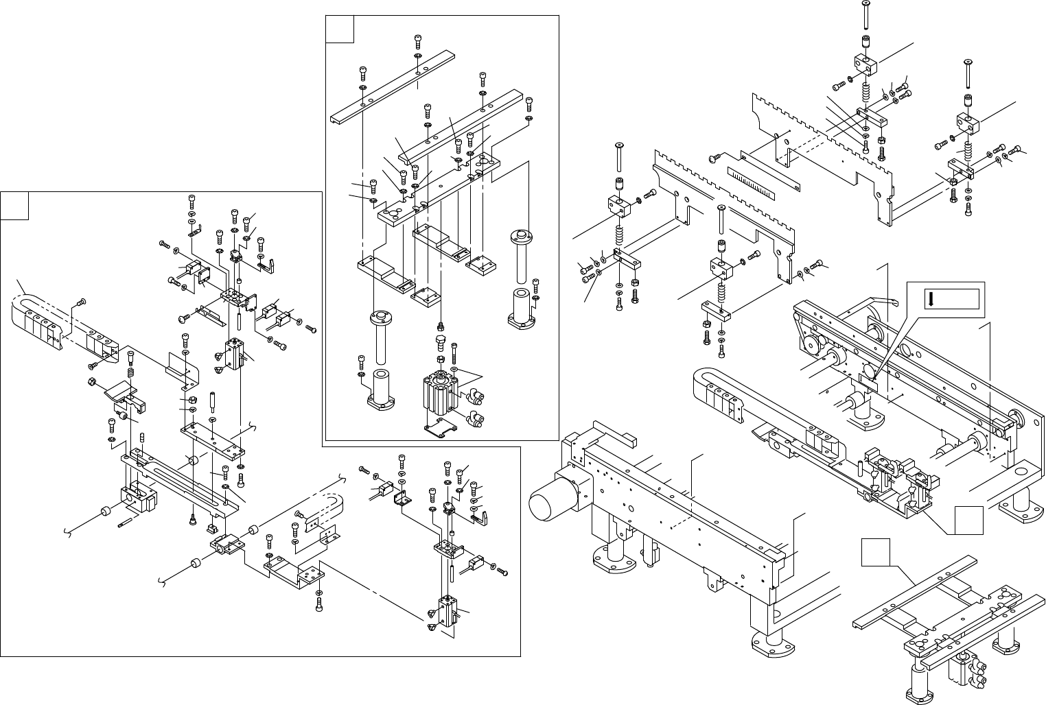
3 - 6 3 . 2 . インコンベア( D C Q C ) 3 . 2 . I n c o n v e y o r ( D C Q C ) 3 . 2 . インコンベア( D C Q C ) 3 . 2 . I n c o n v e y o r ( D C Q C ) CP-733E,CP-732E P ARTS LIST x 7 2 0 9 5 6 1 1 7 1 1 8 1 1 8 1 7 8 1 7 3 2 2 1 2 0 …

3.1.インコンベア(DCQC)
3.1.In conveyor(DCQC)
番号 図番 & コード番号 個数 品名 規格 備考 材質
No. Drg.No. & Code No. QTY Description Rating Remarks Materials
161 H5298A
BOLT, HEX SOCKET
ボルト 六角穴
M5X10L FE
162 H5299A
BOLT, HEX SOCKET
ボルト 六角穴
M5X12L FE
163 H5300A BOLT, HEX SOCKET ボルト 六角穴 M5X15L FE
164 H5302A
BOLT, HEX SOCKET
ボルト 六角穴
M5X20L FE
166 H5321A
BOLT, HEX SOCKET
ボルト 六角穴
M6X12L FE
167 H5322A
BOLT, HEX SOCKET
ボルト 六角穴
M6X15L FE
168 H5323A
BOLT, HEX SOCKET
ボルト 六角穴
M6X18L FE
169 H5324A
BOLT, HEX SOCKET
ボルト 六角穴
M6X20L FE
170 H5341A
BOLT, HEX SOCKET
ボルト 六角穴
M8X20L FE
173 W1021A
WASHER, LOCK
ワッシャ スプリング 3M/M FE
174 W1022A
WASHER, LOCK
ワッシャ スプリング 4M/M FE
175 W1023A
WASHER, LOCK
ワッシャ スプリング 5M/M FE
176 W1024A
WASHER, LOCK
ワッシャ スプリング 6M/M FE
177 W1025A
WASHER, LOCK
ワッシャ スプリング 8M/M FE
178 W1042A WASHER, FLAT ワッシャ 平 4W-3 FE
179 W1043A WASHER, FLAT ワッシャ 平 4W-4 FE
180 W1044A WASHER, FLAT ワッシャ 平 4W-5 FE
182 W1011A
WASHER, CONICAL
ワッシャ 皿
M-4-L FE
183 W1012A
WASHER, CONICAL
ワッシャ 皿
M-5-L FE
184 W1013A WASHER, CONICAL ワッシャ 皿 M-6-H FE
186 N4027A SCREW, HEX SOCKET SET ネジ 六角穴止メ M4X5L ヒラサキ FE
189 K52564
SCREW, HEX SOCKET BUTTON
小ネジ六角穴ボタン M4X5L FE
190 K5261A
SCREW, HEX SOCKET BUTTON
小ネジ六角穴ボタン M5X10L FE
191 K5261H
SCREW, HEX SOCKET BUTTON
小ネジ六角穴ボタン M5X12L FE
193 N1082A
NUT, HEX
ナット 六角
M5 P=0.8 FE
194 N1085A
NUT, HEX
ナット 六角
M6 P=1.0 FE
197 K5178T SCREW, C/R PAN 小ネジ 十穴鍋 M3X12L FE
199 K5359H
SCREW, HEX SOCKET COUNTERSUNK
小ネジ 六角穴皿
M4X10L FE
205 DCQC0690 1 GUIDE ガイド FE
206 DCQC0310 1 BKT BKT FE
207 GVC2262 1 SPROCKET スプロケット FE
208 H4123A 1 BEARING ベアリング UFL000 FE
211 H5325A
BOLT, HEX SOCKET
ボルト 六角穴
M6X22L FE
212 H5332A
BOLT, HEX SOCKET
ボルト 六角穴
M6X50L FE
217 T2037E 1 CHAIN チェーン RS25NP355リンク FE
218 DCQC0850 1 GUIDE ガイド FE
220 W1051A WASHER, FLAT ワッシャ 平 6M/MX1.6X125(1W-6) . FE .
CP-733E,CP-732E PARTS LIST
3 - 5
3.1.インコンベア(DCQC)
3.1.In conveyor(DCQC)

3 - 6
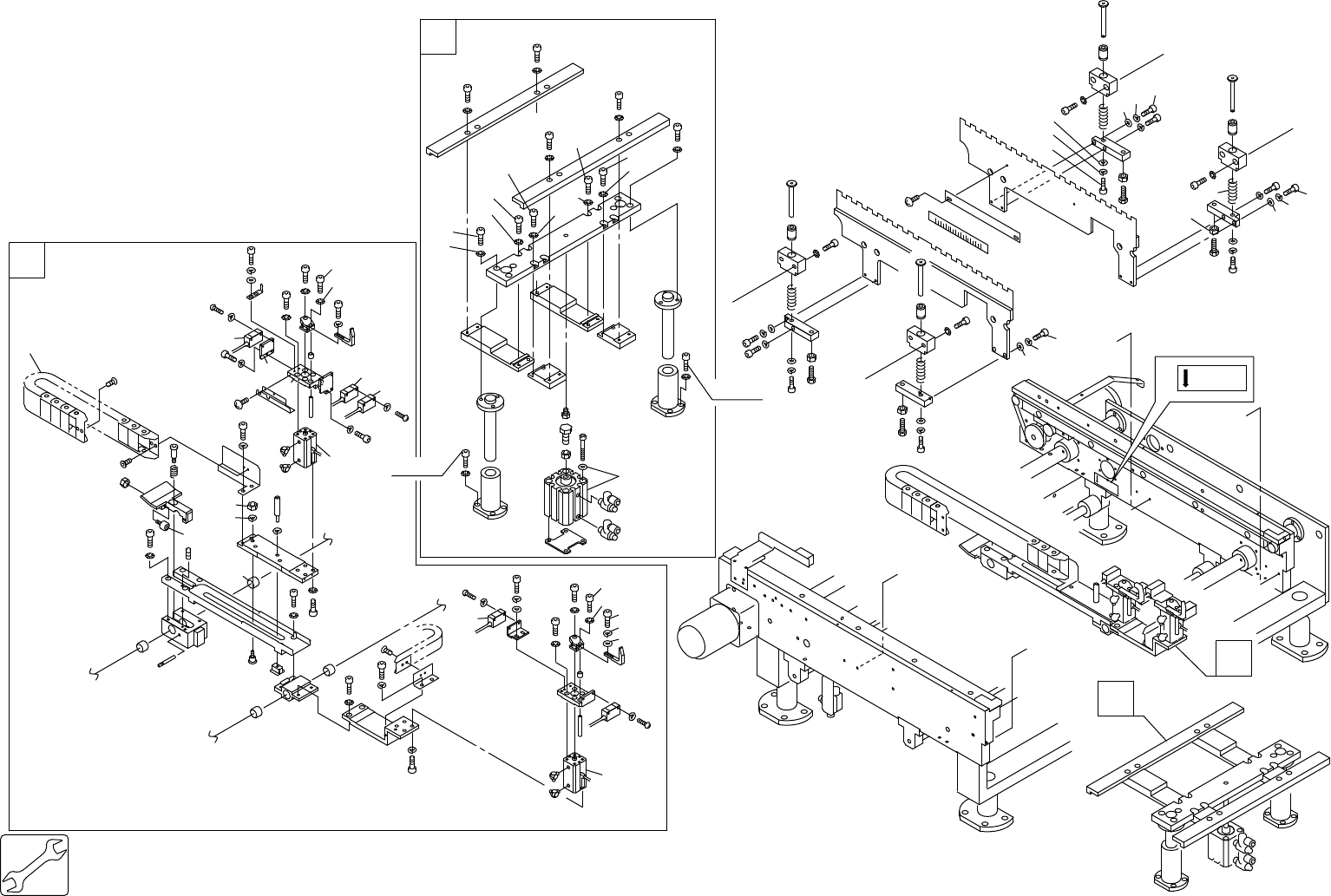
3.2.インコンベア(DCQC)
3.2.In conveyor(DCQC)
3.2.インコンベア(DCQC)
3.2.In conveyor(DCQC)
CP-733E,CP-732E PARTS LIST
x7
209
56
117
118
118
178
173
221
202
158
174
213
203
150
182
157
78
173
222
150
200
79
54
57
116
223
172
149
51
53
181
181
160
155
174
204
182
154
157
182
183
161
174
154
174
174
196
185
182
156
192
198
198
187
197
173
197
181
150
172
149
181
151
182
157
178
173
221
79
79
78
116
57
55
49
70
118
118
210
119
17
126
65
125
97
60
69
47
68
34
48
105
105
105
105
38
37
39
201
195
161
183
161
183
183
161
182
155
182
155
161
183
183
161
183
161
182
155
182
155
182
155
182
155
188
194
194
225
174
157
158
182
158
182
159
157
174
225
157
157
174
174
225
225
157
174
225
157
174
225
157
174
225
174
174
159
158
174
226
182
158
194
194
159
174
182
158
219
107
107
14
14
A
B
B
A
D
C
B
A
D
B
C
A
121
120
12
19
120
12
120
120
121
121
121
19
12
19
19
12
52
50
30
24
146
71
112
112
115
73
73
73
73
62
25
23
22
41
41
36
36
35
35
33
173
197
173
173
198
150
173
(SHAFT)
DO NOT LUVRICATE
給油不可(シャフト)
98
(SHAFT)
DO NOT
LUVRICATE
給油不可(シャフト)

3 - 7
3.2.インコンベア(DCQC)
3.2.In conveyor(DCQC)
3.2.インコンベア(DCQC)
3.2.In conveyor(DCQC)
CP-733E,CP-732E PARTS LIST
x7
A
B
B
A
D
C
B
A
D
B
C
A
(SHAFT)
DO NOT LUVRICATE
給油不可(シャフト)
98
(SHAFT)
DO NOT
LUVRICATE
給油不可(シャフト)
3.92N・m
3.92N・m