CP-733E-03 - 第30页
4.1.アウトコンベア(DCQC) 4.1.Out conveyor(DCQC) 番号 図番 & コード番号 個数 品名 規格 備考 材質 No. Drg.No. & Code No. QTY Description Rating Remarks Materials 203 H5332A BOLT, HEX SOCKET ボルト 六角穴 M6X50L FE 204 H5329A BOLT, HEX SOCKET ホ…

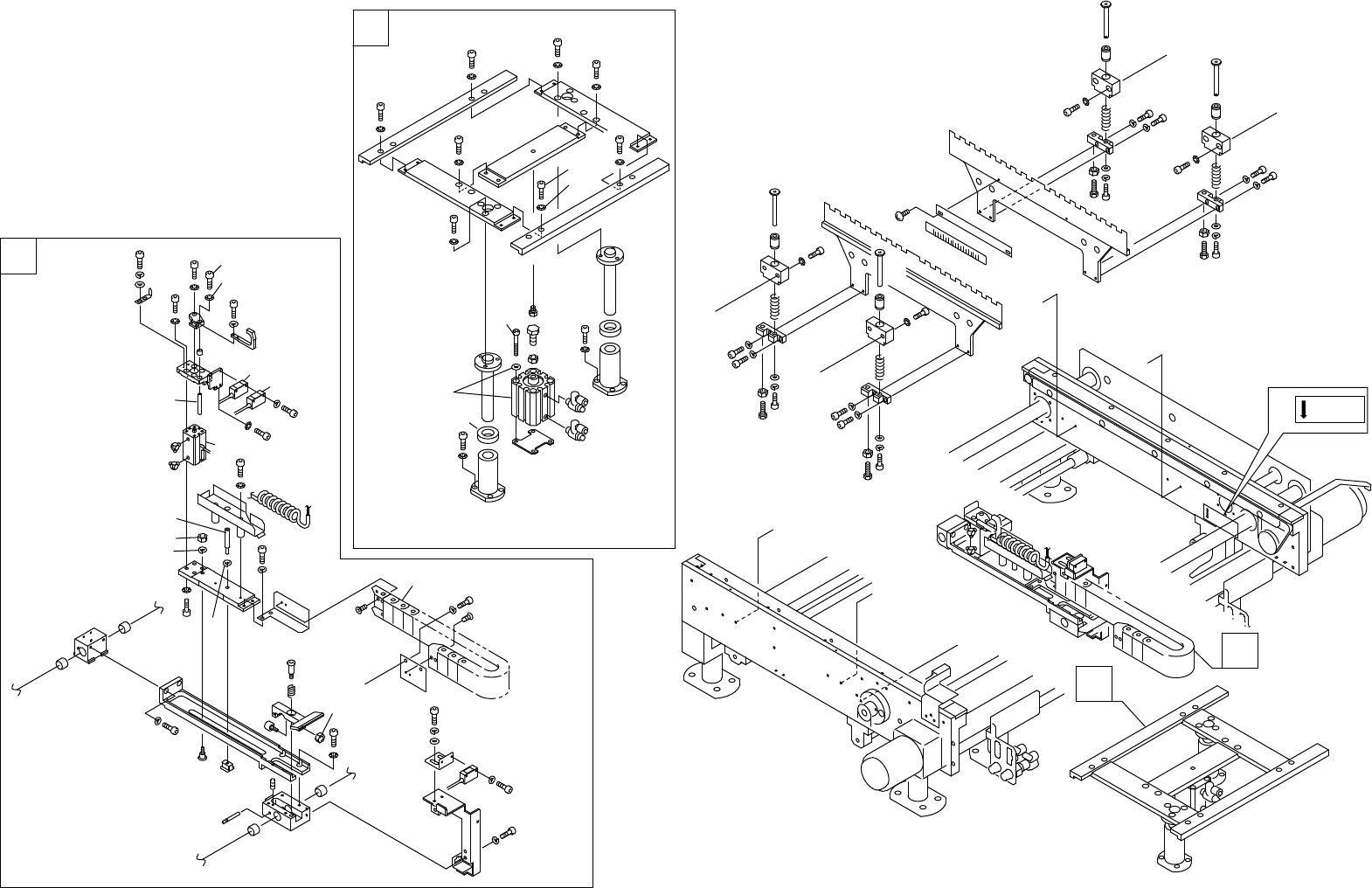
4.1.アウトコンベア(DCQC)
4.1.Out conveyor(DCQC)
番号 図番 & コード番号 個数 品名 規格 備考 材質
No. Drg.No. & Code No. QTY Description Rating Remarks Materials
128 DCQC0320 2 BELT ベルト PL
129 DCQC0331 2 PULLEY, MOTOR プーリ モータ OT
132 DCQC0410 2 BKT BKT FE
135 DCQC0270 2 SHAFT シャフト OT
141 DCQC0710 1 STOPPER ストッパ FE
142 DCQC0720 1 STOPPER ストッパ FE
143 DCQC0630 2 BAR, GUIDE バー ガイド FE
152 H5287A
BOLT, HEX SOCKET
ボルト 六角穴
M4X8L FE
154 H5289A
BOLT, HEX SOCKET
ボルト 六角穴
M4X12L FE
159 H5298A
BOLT, HEX SOCKET
ボルト 六角穴
M5X10L FE
160 H5299A
BOLT, HEX SOCKET
ボルト 六角穴
M5X12L FE
161 H5300A BOLT, HEX SOCKET ボルト 六角穴 M5X15L FE
162 H5302A
BOLT, HEX SOCKET
ボルト 六角穴
M5X20L FE
164 H5322A
BOLT, HEX SOCKET
ボルト 六角穴
M6X15L FE
165 H5323A
BOLT, HEX SOCKET
ボルト 六角穴
M6X18L FE
166 H5324A
BOLT, HEX SOCKET
ボルト 六角穴
M6X20L FE
167 H5326A
BOLT, HEX SOCKET
ボルト 六角穴
M6X25L FE
168 H5341A
BOLT, HEX SOCKET
ボルト 六角穴
M8X20L FE
170 .
BOLT, HEX SOCKET
ボルト 六角穴
M06X022 FE
171 W1022A
WASHER, LOCK
ワッシャ スプリング 4M/M FE
172 W1023A
WASHER, LOCK
ワッシャ スプリング 5M/M FE
173 W1024A
WASHER, LOCK
ワッシャ スプリング 6M/M FE
174 W1025A
WASHER, LOCK
ワッシャ スプリング 8M/M FE
176 W1043A WASHER, FLAT ワッシャ 平 4W-4 FE
177 W1044A WASHER, FLAT ワッシャ 平 4W-5 FE
179 W1011A
WASHER, CONICAL
ワッシャ 皿
M-4-L FE
180 W1012A
WASHER, CONICAL
ワッシャ 皿
M-5-L FE
182 K5359H
SCREW, HEX SOCKET COUNTERSUNK
小ネジ 六角穴皿
M4X10L FE
183 N4027A
SCREW, HEX SOCKET SET
ネジ 六角穴止め
M4X5L FE
187 K52564
SCREW, HEX SOCKET BUTTON
小ネジ六角穴ボタン M4X5L FE
188 K5261A
SCREW, HEX SOCKET BUTTON
小ネジ六角穴ボタン M5X10L FE
189 K5261H
SCREW, HEX SOCKET BUTTON
小ネジ六角穴ボタン M5X12L FE
191 N1082A
NUT, HEX
ナット 六角
M5 P=0.8 FE
192 N1085A
NUT, HEX
ナット 六角
M6 P=1.0 FE
196 . SCREW, C/R PAN 小ネジ 十穴鍋 M3X12L FE
197 W1013A
WASHER, CONICAL
ワッシャ 皿
M-6-H FE
198 DCQC3531 1 BKT BKT FE
CP-733E,CP-732E PARTS LIST
4 - 5
4.1.アウトコンベア(DCQC)
4.1.Out conveyor(DCQC)

4.1.アウトコンベア(DCQC)
4.1.Out conveyor(DCQC)
番号 図番 & コード番号 個数 品名 規格 備考 材質
No. Drg.No. & Code No. QTY Description Rating Remarks Materials
203 H5332A
BOLT, HEX SOCKET
ボルト 六角穴
M6X50L FE
204 H5329A
BOLT, HEX SOCKET
ボルト 六角穴
M6X35L FE
205 H5321A
BOLT, HEX SOCKET
ボルト 六角穴
M6X12L . FE .
CP-733E,CP-732E PARTS LIST
4 - 6
4.1.アウトコンベア(DCQC)
4.1.Out conveyor(DCQC)

A
B
B
A
(SHAFT)
DO NOT LUVRICATE
給油不可(シャフト)
(SHAFT)
DO NOT
LUVRICATE
給油不可(シャフト)
150
178
194
171
179
171
153
181
181
152
171
176
196
153
171
190
152
179
155
171
170
51
52
35
26
59
62
39
63
50
210
93
93
34
93
93
112
40
103
37
31
145
171
171
207
209
186
178
148
169
147
178
149
179
154
154
175
170
148
64
60
170
148
60
104
208
140
42
139
136
144
106
106
105
111
61
x7
202
184
154
171
211
154
171
211
155
179
154
171
171
154
171
154
154
171
179
155
192
192
171
154
154
171
55
192
192
171
154
154
171
179
152
179
152
179
207
180
158
179
207
180
158
179
207
180
158
180
158
179
207
138
137
20
30
98
15
98
133
95
130
14
98
133
95
130
179
155
95
130
133
55
15
206
82
83
83
38
38
19
131
22
131
102
23
21
102
23
193
179
155
E
E
A
D
C
B
D
B
C
A
95
130
98
133
54
53
55
55
14
170
199
154
171
211
154
171
211
4 - 7
4.2.アウトコンベア(DCQC)
4.2.Out conveyor(DCQC)
4.2.アウトコンベア(DCQC)
4.2.Out conveyor(DCQC)
CP-733E,CP-732E PARTS LIST