CP-733E-03 - 第33页
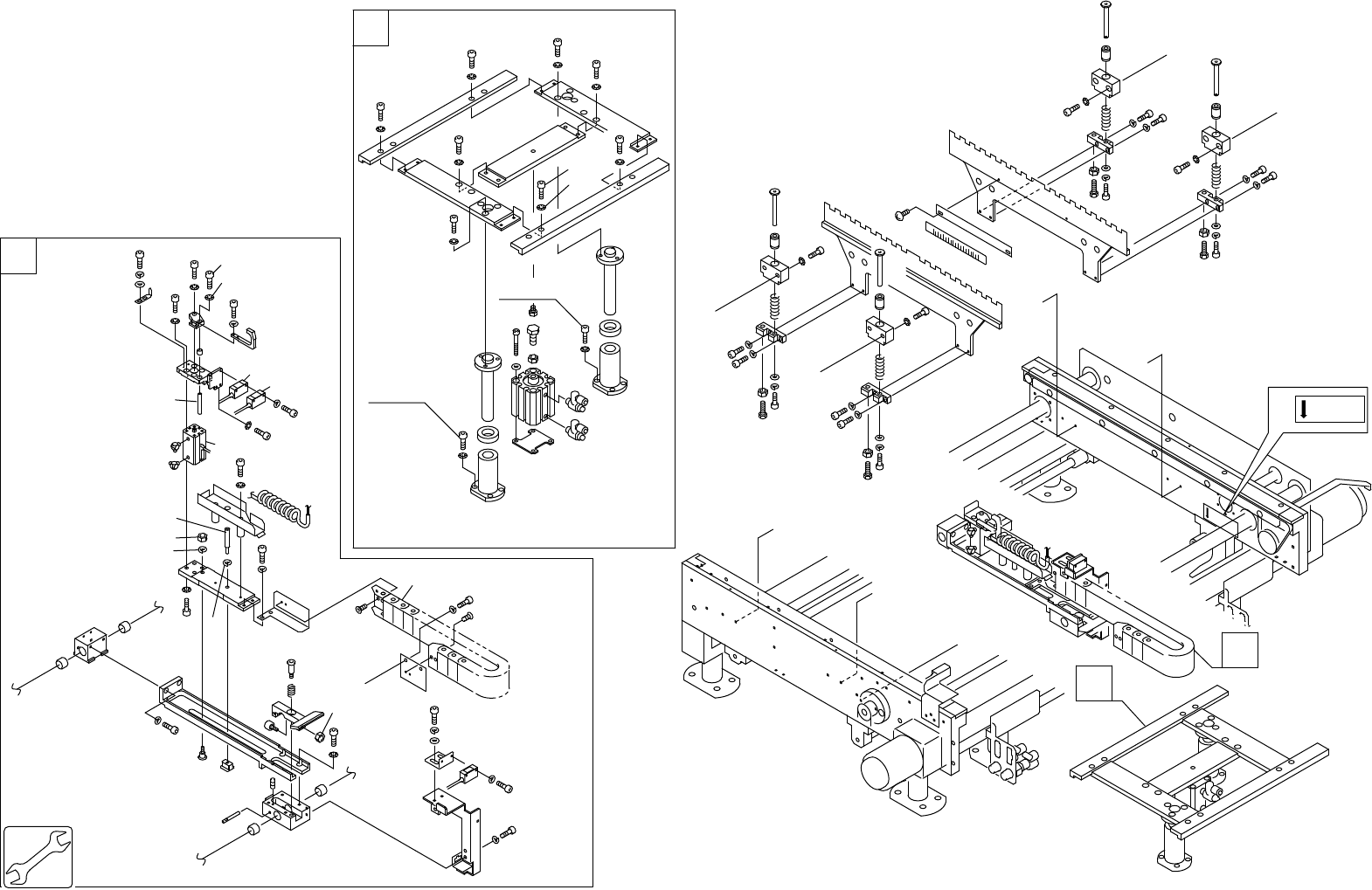
4.2.アウトコンベア(DCQC) 4.2.Out conveyor(DCQC) 番号 図番 & コード番号 個数 品名 規格 備考 材質 No. Drg.No. & Code No. QTY Description Rating Remarks Materials 14 DCQC3360 2 BKT BKT FE 15 DCQC3370 2 BKT BKT FE 19 DCQC3110 1 PLATE, ARM フ…

A
B
B
A
(SHAFT)
DO NOT LUVRICATE
給油不可(シャフト)
(SHAFT)
DO NOT
LUVRICATE
給油不可(シャフト)
x7
E
E
A
D
C
B
D
B
C
A
4 - 8
4.2.アウトコンベア(DCQC)
4.2.Out conveyor(DCQC)
4.2.アウトコンベア(DCQC)
4.2.Out conveyor(DCQC)
CP-733E,CP-732E PARTS LIST
3.92N・m
3.92N・m

4.2.アウトコンベア(DCQC)
4.2.Out conveyor(DCQC)
番号 図番 & コード番号 個数 品名 規格 備考 材質
No. Drg.No. & Code No. QTY Description Rating Remarks Materials
14 DCQC3360 2 BKT BKT FE
15 DCQC3370 2 BKT BKT FE
19 DCQC3110 1 PLATE, ARM プレート アーム AL
20 DCQC3041 1 PLATE, LIFTER プレート リフタ FE
21 DCQC3410 1 RAIL レール FE
22 DCQC3420 1 RAIL レール FE
23 DCQC3430 2 SPACER スペーサ PL
26 DCQC3450 1 BKT BKT FE
30 DCQC3051 1 PLATE, LIFTER プレート リフタ FE
31 DCQC3131 1 SLIDER スライダ FE
34 DCQC3260 1 HOLDER ホルダ FE
35 DCQC3143 1 RAIL レール FE
37 DCQC3460 1 BKT BKT FE
38 DCQC3160 2 PLATE, LIFTER プレート リフタ AL
39 DCQC3170 1 BKT BKT FE
40 DCQC3510 1 POSITIONING 位置決め AL
42 DCQC3480 1 STOPPER ストッパ FE
50 CSQC0300 1 PIN ピン FE
51 CSQC0580 1 GUIDE ガイド FE
52 CSQC0591 1 PIN, GUIDE ピン ガイド FE
53 CSQC0710 1 LOCATOR 当金 PL
54 DCQC0860 1 LOCATOR 当金 FE
55 CSQC0901 4 LOCATOR 当金 FE
59 CSQC1340 1 SW, PHOTOELECTRIC SW 光電 OT
60 CSQC0760 2 SW, PHOTOELECTRIC SW 光電 OT
61 CSQC1430 1 PIN ピン FE
62 DCQC3580 1 BKT, SENSOR BKT センサ FE
63 CSQC2641 1 HOLDER ホルダ FE
64 CSQC4702 1 CABLE ケーブル OT
82 S2210A 1 CYLINDER, AIR シリンダ エアー CDAS32X15-ZE202B2 OT
83 K5347W 2
CONTROLLER, SPEED
コントローラ スピード AS2301F-01-06S(シロ) OT
93 H30715 4 BUSHING ブッシュ MB1208DU OT
95 H4128Z 4 BEARING ベアリング SM6UU OT
98 S3020W 4 SPRING スプリング WF12-35 OT
102 H44236 2 BEARING, BALL ベアリング ボール SMT16WUU-E-SK OT
103 K41378 1 FLEXIBLE TRACK ケーブルベア 07.20-018-16-620P OT
104 H4319A 1 BEARING, DRY ベアリング ドライ MB0506DU OT
CP-733E,CP-732E PARTS LIST
4 - 9
4.2.アウトコンベア(DCQC)
4.2.Out conveyor(DCQC)

4.2.アウトコンベア(DCQC)
4.2.Out conveyor(DCQC)
番号 図番 & コード番号 個数 品名 規格 備考 材質
No. Drg.No. & Code No. QTY Description Rating Remarks Materials
105 S2208A 1 CYLINDER, AIR シリンダ エアー CDQSB12-25DC-F9NWVL OT
106 A4068H 2 ELBOW エルボ M-5ALU-4 OT
111 S3020Y 1 SPRING スプリング WH10-15 OT
112 K1090A 1
CAM FOLLOWER
カムフォロア CFS04 OT
130 DCQC0360 4 BAR, GUIDE バー ガイド FE
131 DCQC0371 2 BAR, GUIDE バー ガイド FE
133 DCQC0420 4 GUIDE ガイド FE
136 DCQC0510 1 PLATE, LOCATING プレート 位置決め FE
137 DCQC0520 1 PLATE プレート FE
138 DCQC0540 1 SCALE スケール PL
139 DCQC0930 1 BKT BKT FE
140 DCQC0580 1 PIN, WHIRL STOP ピン 回止め FE
144 DCQC0920 1 BKT BKT FE
145 DCQC0500 1 BOLT ボルト FE
147 H5266A
BOLT, HEX SOCKET
ボルト 六角穴
M2X6L FE
148 H5275A
BOLT, HEX SOCKET
ボルト 六角穴
M3X8L FE
149 H5165A
BOLT, HEX SOCKET
ボルト 六角穴
M3X10L FE
150 H5282A
BOLT, HEX SOCKET
ボルト 六角穴
M3X30L FE
152 H5287A
BOLT, HEX SOCKET
ボルト 六角穴
M4X8L FE
153 H5288A
BOLT, HEX SOCKET
ボルト 六角穴
M4X10L FE
154 H5289A
BOLT, HEX SOCKET
ボルト 六角穴
M4X12L FE
155 H5290A
BOLT, HEX SOCKET
ボルト 六角穴
M4X15L FE
158 H5297A
BOLT, HEX SOCKET
ボルト 六角穴
M5X8L FE
169 W1020A
WASHER, LOCK
ワッシャ スプリング 2M/M FE
170 W1021A
WASHER, LOCK
ワッシャ スプリング 3M/M FE
171 W1022A
WASHER, LOCK
ワッシャ スプリング 4M/M FE
175 W1042A WASHER, FLAT ワッシャ 平 4W-3 FE
176 W1043A WASHER, FLAT ワッシャ 平 4W-4 FE
178 W1010A
WASHER, CONICAL
ワッシャ 皿
M-3-L FE
179 W1011A
WASHER, CONICAL
ワッシャ 皿
M-4-L FE
180 W1012A
WASHER, CONICAL
ワッシャ 皿
M-5-L FE
181 K5357H
SCREW, HEX SOCKET COUNTERSUNK
小ネジ 六角穴皿
M3X5L FE
184 K51721
SCREW, TRUSS
小ネジ トラス M3X5L FE
186 H5281A
BOLT, HEX SOCKET
ボルト 六角穴
M3X25L FE
190 N1080A
NUT, HEX
ナット 六角
M4 P=0.7 FE
192 N1085A
NUT, HEX
ナット 六角
M6 P=1.0 FE
193 N1089A
NUT, HEX
ナット 六角
M8 P=1.25 FE
CP-733E,CP-732E PARTS LIST
4 - 10
4.2.アウトコンベア(DCQC)
4.2.Out conveyor(DCQC)