CP-733E-03 - 第41页
5.2.インキャリア(DCQK) 5.2.In carrier(DCQK) 番号 図番 & コード番号 個数 品名 規格 備考 材質 No. Drg.No. & Code No. QTY Description Rating Remarks Materials 6 DCQK0120 2 GUIDE, RAIL ガイド レール OT 7 DCQK0201 1 GUIDE, RAIL ガイド レール OT 8 DC…

x8.5
Ref.33-7
Ref.31-1
Ref.31-1
Ref.31-1
Ref.31-1
0.5 1 2 10
イン キャリア 後退
IN CARRIER BWD
MANIP. ENTREE RECUL.
イン キャリア 前進
IN CARRIER FWD
MANIP. ENTREE AV.
B
A
B
A
5 - 5
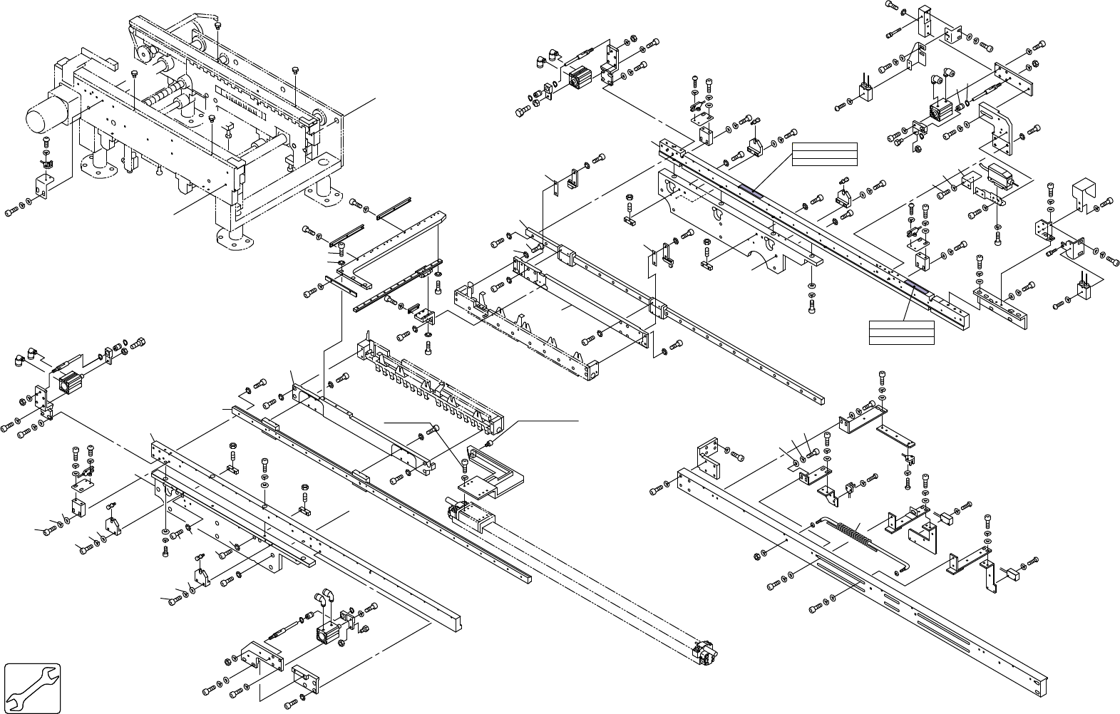
5.2.インキャリア(DCQK)
5.2.In carrier(DCQK)
5.2.インキャリア(DCQK)
5.2.In carrier(DCQK)
CP-733E,CP-732E PARTS LIST
1.47N・m
LOCTITE262

5.2.インキャリア(DCQK)
5.2.In carrier(DCQK)
番号 図番 & コード番号 個数 品名 規格 備考 材質
No. Drg.No. & Code No. QTY Description Rating Remarks Materials
6 DCQK0120 2 GUIDE, RAIL ガイド レール OT
7 DCQK0201 1 GUIDE, RAIL ガイド レール OT
8 DCQK0050 1 PLATE プレート FE
9 DCQK0060 1 PLATE プレート FE
10 DCQK0070 1 PLATE プレート FE
11 DCQK0210 1 SADDLE サドル FE
12 DCQK0130 1 BKT BKT FE
13 DCQK0140 1 BKT BKT FE
14 DCQK0081 1 RAIL レール FE
15 DCQK0092 1 RAIL レール FE
16 DCQK0540 1 BKT BKT FE
17 DCQK0100 1 BKT BKT FE
18 DCQK0450 1 BKT, CYLINDER BKT シリンダ FE
19 DCQK0230 1 BKT BKT FE
20 DCQK0241 1 BKT, SENSOR BKT センサ FE
21 DCQK0250 1 BKT BKT FE
22 DCQK0260 1 BKT, SENSOR BKT センサ FE
23 DCQK0180 1 BKT BKT FE
24 DCQK0380 1 BKT, SENSOR BKT センサ FE
25 DCQK0390 1 BKT BKT FE
26 DCQK0400 1 BKT, SENSOR BKT センサ FE
27 DCQK0110 1 PLATE プレート AL
28 DCQK0530 1 BKT, CYLINDER BKT シリンダ FE
29 DCQK0273 1 BKT BKT FE
30 DCQK0160 1 BKT BKT FE
32 DCQK0280 1 BKT BKT FE
36 CSQC4200 2 RETAINER 押え FE
37 CSQC4211 1 BKT BKT FE
38 DCQK0462 4 BAR, GUIDE バー ガイド FE
39 M5120M 2 BOLT ボルト STBB4-15 OT
40 CSQC4282 2 BOLT ボルト FE
46 CSQC4470 4 BLOCK ブロック FE
51 CSQC4650 1 CAM FOLLOWER カムフォロア OT
52 DCQK0501 2 PLATE プレート FE
53 CSQC4702 1 CABLE ケーブル OT
54 CSQC4710 3 BKT, SENSOR BKT センサ FE
55 CSQC4720 3 BKT, SENSOR BKT センサ FE
56 CSQC4780 4
BOLT, ADJUSTING
ボルト セリ FE
57 CSQC4790 4 BOLT ボルト FE
58 CSQC4801 4 BKT BKT FE
CP-733E,CP-732E PARTS LIST
5 - 6
5.2.インキャリア(DCQK)
5.2.In carrier(DCQK)

5.2.インキャリア(DCQK)
5.2.In carrier(DCQK)
番号 図番 & コード番号 個数 品名 規格 備考 材質
No. Drg.No. & Code No. QTY Description Rating Remarks Materials
59 CSQC4810 8 WASHER ワッシャ FE
62 CSQC4950 1 RETAINER 押え FE
63 DCQK0480 2 BKT, CYLINDER BKT シリンダ FE
64 CSQC4970 1 BKT, CYLINDER BKT シリンダ FE
65 DCQK0520 1 BKT, CYLINDER BKT シリンダ FE
66 DCQK0340 1 JOINT ジョイント FE
67 DCQK0350 1 JOINT ジョイント FE
69 CSQC6340 1 RETAINER 押え FE
72 CSQC5190 2 SPACER スペーサ t=0.1 FE
73 CSQC5200 2 SPACER スペーサ t=0.2 FE
74 CSQC5210 2 SPACER スペーサ t=0.3 FE
75 CSQC5220 2 SPACER スペーサ t=0.4 FE
76 CSQC5230 2 SPACER スペーサ t=0.5 FE
77 A1039X 1 AMPLIFIER アンプ FS-V1 OT
78 S3141B 2 SW, PHOTOELECTRIC SW 光電 DL-S3R OT
79 S31207 3 SW, PHOTOELECTRIC SW 光電 EE-SX771A OT
80 Y3079N 8
UNION, ELBOW
ユニオン エルボ KQ2L06-M5 OT
81 S2209A 4 CYLINDER, AIR シリンダ エアー CDAS16X15-ZE202B1 OT
82 S31208 3 SW, PHOTOELECTRIC SW 光電 EE-SX772A OT
92 DCQK0310 1 BKT BKT FE
93 DCQK0360 1 BKT BKT FE
94 DCQK0370 1 BKT BKT FE
95 DCQK0320 1
BOLT, ADJUSTING
ボルト セリ FE
96 CSQC5311 1
BOLT, ADJUSTING
ボルト セリ FE
97 CSQC5340 1 BKT BKT AL
99 DCQK0330 1 BKT, SENSOR BKT センサ FE
101 CSQC5381 1 FIBER, UNIT ファイバ ユニット OT
103
H5273A
BOLT, HEX SOCKET
ボルト 六角穴
M03X005 FE
104
H5274A
BOLT, HEX SOCKET
ボルト 六角穴
M03X006 FE
105
H5275A
BOLT, HEX SOCKET
ボルト 六角穴
M03X008 FE
106 H5276A
BOLT, HEX SOCKET
ボルト 六角穴
M3X10L FE
107
H5287A
BOLT, HEX SOCKET
ボルト 六角穴
M04X008 FE
108
H5288A
BOLT, HEX SOCKET
ボルト 六角穴
M04X010 FE
109 H5289A
BOLT, HEX SOCKET
ボルト 六角穴
M4X12L FE
111 H5292A
BOLT, HEX SOCKET
ボルト 六角穴
M4X20L FE
112 H5294A
BOLT, HEX SOCKET
ボルト 六角穴
M4X30L FE
114 H5299A
BOLT, HEX SOCKET
ボルト 六角穴
M5X12L FE
115 H5300A BOLT, HEX SOCKET ボルト 六角穴 M5X15L FE
116 H5301A
BOLT, HEX SOCKET
ボルト 六角穴
M5X18L FE
117 H5303A
BOLT, HEX SOCKET
ボルト 六角穴
M5X22L FE
CP-733E,CP-732E PARTS LIST
5 - 7
5.2.インキャリア(DCQK)
5.2.In carrier(DCQK)