00193801-01 - 第170页
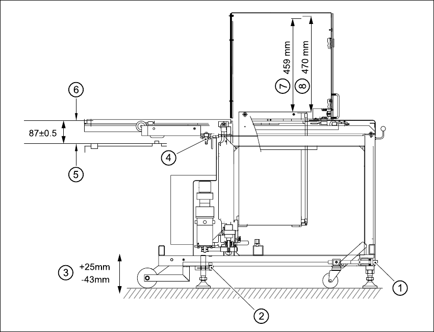
6 BE-Handling Betriebsanleitung SIPLACE CF 6.6 Wafflepack-Wechs ler Softwareversion SR.101.xx Ausgab e 06/2003 DE 170 Abb. 6.6 - 6 WPW einricht en 6 (1) Mit Innens echskantschlü ssel AUF/A B (2) Klemmsc hraube (3) Hub (4…

Betriebsanleitung SIPLACE CF 6 BE-Handling
Softwareversion SR.101.xx Ausgabe 06/2003 DE 6.6 Wafflepack-Wechsler
169
6.6.6 Sicherheitseinrichtungen
NOT-HALT-Taster
Die gesamte Anlage, d.h. SIPLACE CF und Wafflepack-Wechsler, wird sofort gestoppt.
Sie können danach die Bestückung fortsetzen oder abbrechen. Achten Sie dabei auf evt. unvoll-
ständig bestückte Leiterplatten.
Schutztüre
Beim Öffnen der Schutztüre wird der Wafflepack-Wechsler spannungslos geschaltet und der
Funktionsablauf des Wafflepack-Wechslers gestoppt. Beim Schließen der Schutztüre führt der
Wafflepack-Wechsler seinen Funktionsablauf fort.
VORSICHT 6
Öffnen Sie die Schutztüre des Wafflepack-Wechslers nicht, während ein Bauelement vom WPW
abgeholt wird. 6
6.6.7 Einbau des Wafflepack-Wechslers
Æ Bevor Sie den Wafflepack-Wechsler in den Automaten einschieben, ziehen Sie das Kamera-
oberteil der Finepitch-Kamera ab.
VORSICHT KIPPGEFAHR! 6
Der WPW läuft auf Rädern. Diese eignen sich jedoch nur für kurze Transportwege, d.h. zum An-
und Abdocken am Automaten. Bei längeren Transportstrecken verwenden Sie wegen der Kipp-
gefahr einen geeigneten Hubwagen (Artikel-Nr. 00123141-01). 6
Æ Schieben Sie den WPW vorsichtig an den Stellplatz 1 der Maschine. Die Andockstifte des
WPW müssen über die Andocknuten der SIPLACE CF stehen.
Æ Kontrollieren Sie das Maß (87 +/- 0,5mm), Unterkante Magazinträger zu Oberkante BE-Tisch
(siehe Abb. 6.6 - 6).

6 BE-Handling Betriebsanleitung SIPLACE CF
6.6 Wafflepack-Wechsler Softwareversion SR.101.xx Ausgabe 06/2003 DE
170
Abb. 6.6 - 6 WPW einrichten
6
(1) Mit Innensechskantschlüssel AUF/AB
(2) Klemmschraube
(3) Hub
(4) Andockstift
(5) Oberkante BE-Tisch-Magnetleiste
(6) Unterkante Magazinträger
(7) Nennhub (459mm)
(8) Nachfüllposition (470mm)
6
Æ Lösen Sie die Klemmschrauben an den Füßen (siehe Abb. 6.6 - 6) und drehen Sie mit einem
10mm Kugelinnensechskantschlüssel den WPW nach unten, bis der Andockstift einrastet. Der
WPW muss dabei mit der am WPW eingebauten Maschinenwasserwaage ausgerichtet wer-
den.
Æ Ziehen Sie die Klemmschrauben fest und kontrollieren Sie nochmals die Maschinenwasser-
waage.
Æ Stecken Sie das Kameraoberteil wieder auf das BE-Vision Modul auf.

Betriebsanleitung SIPLACE CF 6 BE-Handling
Softwareversion SR.101.xx Ausgabe 06/2003 DE 6.6 Wafflepack-Wechsler
171
6.6.8 Technische Daten
6
6
Wafflepack-Wechsler
Länge ca. 1475mm
Breite ca. 620mm
Höhe ca. 1355mm
Gewicht ca. 240 kg
Hub vertikal 470mm
Hub horizontal 730mm
Teilung 17mm
Speicherinhalt 28 Magazinträger zur Aufnahme von Flächenmagazinen
Magazinträger 260mmx360mm
Max. Gewicht Speicher 50 kg
Bodenbelastung < 25N/cm²
Max. Magazingröße 240mmx340mm
Magazinhöhe 15mm inklusive Bauelement
Max. Anzahl der BE-Typen 200 pro Wafflepack-Wechsler
Wechselzeit (Magazin/Magazin) ≤ 3 sec.