SM168_TechnicalReference(Chi_Ver1.1) - 第149页

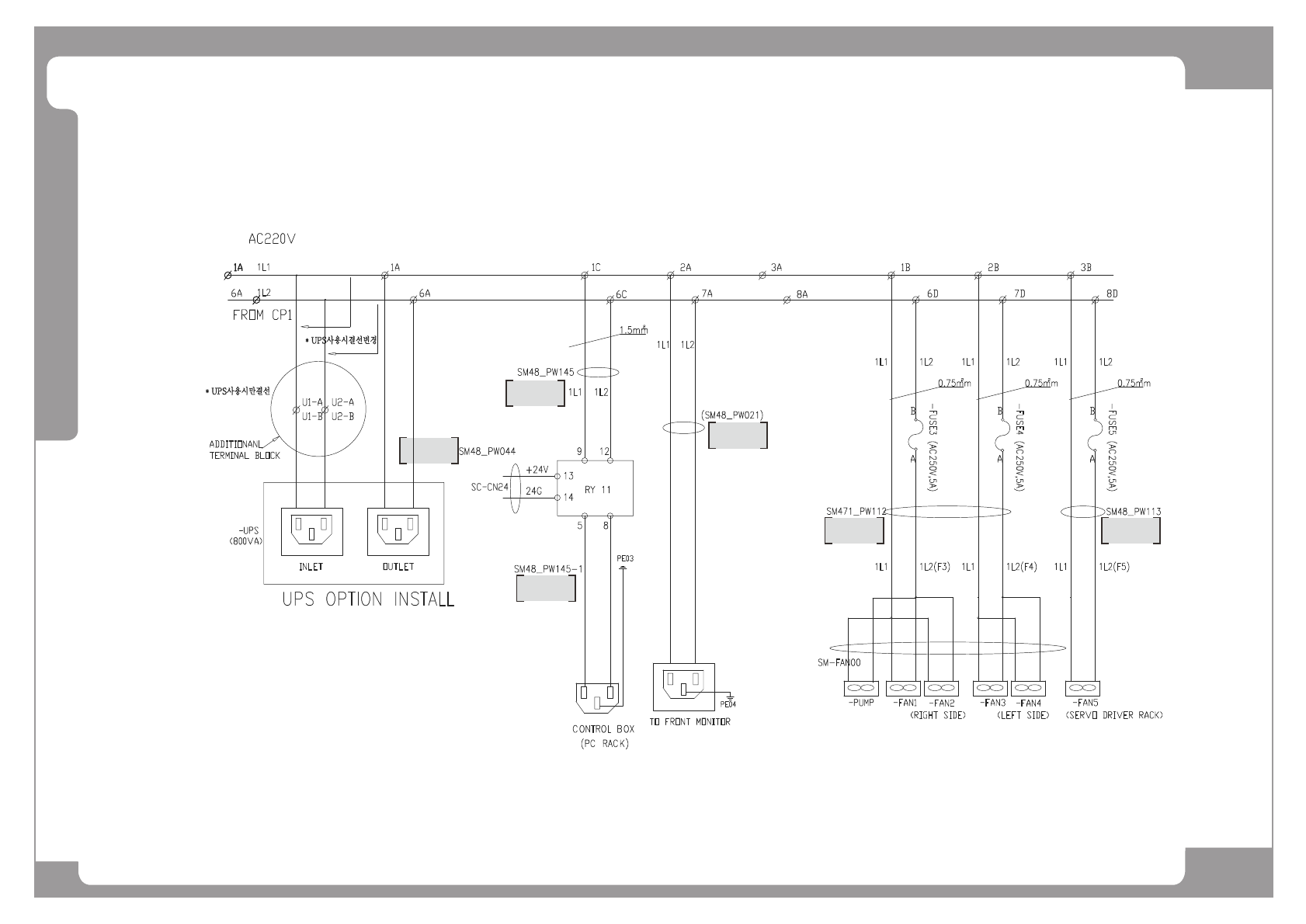
Page SAMSUNG TECHWIN 139 SM168 Power Block Diagram(4/7) NO. Lev . P ART N O. P ART NAME Q'TY O ld No. Supply Supply L T Reference 1 AM03-006903 A CABLE ASSY -CONTROL _RACK_PWR 1 SM48_PW1 45 2 AM03-0069 63A CABLE AS …

100%1 / 172
138
SM168
Power Block Diagram(4/7)
1
2
4
5
6
3
139
SM168
Power Block Diagram(4/7)
NO. Lev. PART NO. PART NAME Q'TY Old No. Supply Supply LT Reference
1 AM03-006903A CABLE ASSY-CONTROL_RACK_PWR 1 SM48_PW145
2 AM03-006963A CABLE ASSY-SACO_+24V_RELAY 1 SM48_PW044
3 AM03-006904A CABLE ASSY-CONTROL_RACK_PWR-EXT 1 SM48_PW145-1
4 AM03-006894A CABLE ASSY-FRONT_MONITOR_PW 1 SM48_PW021
5 AM03-005488A CABLE ASSY-FAN_POWER 1 SM471_PW112
6 AM03-006900A CABLE ASSY-SERVO_FAN_POWER 1 SM48_PW113
140
SM168
Power Block Diagram(5/7)
1
5
7
6
2
3
4