4OM-1001-008_w - 第85页
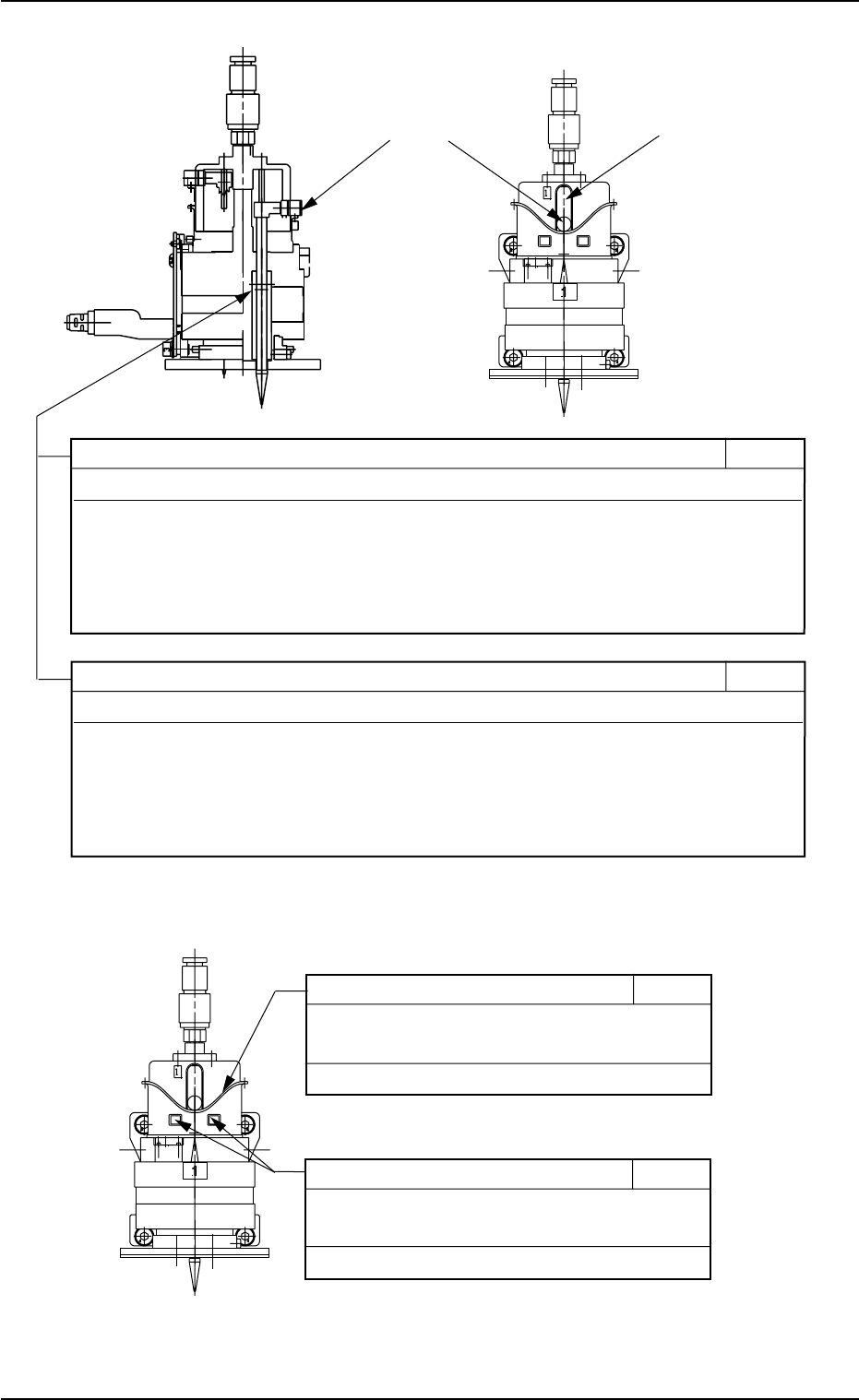
Fig.4A21 Fig.4A22 1.3 メンテナンスか所 0509-002 1 - 21 AHM01JTRP ࠞࡓ㕙ޓޓޓ / ߆ߏߣޓ⛎ᴤ 㧔࠳ࡈ࠾ࠛࡐࡀ࠶ࠢࠬࠣࠬ0Q㧕 ✎ߢࠣࠬࠍႣᏓߒߡߊߛߐޕ ࡁ࠭࡞࠴ࠚࡦࠫࠬࠗ࠶࠴ / ߆ߏߣޓ⛎ᴤ 㧔࠳ࡈ࠾ࠛࡐࡀ࠶ࠢࠬࠣࠬ0Q㧕 ✎ߢࠣࠬࠍႣᏓߒߡߊߛߐޕ …

(9)(9)
(9)(9)
(9)
ヘッド部ヘッド部
ヘッド部ヘッド部
ヘッド部
1.3 メンテナンスか所
0509-003 1-20 AHM01JTRP
ᢔ᧼ߩਅ㕙 ޓ/
Ფޓᷡ
ᢔ᧼ߩਅ㕙ߦࠧࡒ߿ࡎࠦߥߤ߇ઃ⌕ߒߡࠆ
႐วޔࡦ࠭ࠢ࠽ࠢࡠࠬᮡḰઃዻຠߢ߰߈
ขߞߡߊߛߐޕ
ᵈ㧦ṁ߅ࠃ߮ࠛ࠲ࡁ࡞ߪ⛘ኻߦ↪ߒߥߢ
ޓޓߊߛߐޕ
ޓޓᢔ᧼߇ഀࠇߡߒ߹߁ᕟࠇ߇ࠅ߹ߔޕ
ๆ⌕ࡁ࠭࡞ ޓޓޓޓޓ/
߆ߏߣޓὐᬌ
ๆ⌕ࡁ࠭࡞ߩ⁁ᘒࠍὐᬌߒޔࡁ࠭࡞ߩవ┵߇⏴⠻
ߒߡࠆ႐วߪ឵ߒߡߊߛߐޕ
ᵈ㧦ๆ⌕ࡁ࠭࡞ߩขᄖߒ߅ࠃ߮ขઃߌߦߟߡߪޔ
ޓޓ̌ๆ⌕ࡁ࠭࡞ߩขᄖߒ߅ࠃ߮ขઃߌ̍
ࠍෳᾖߒߡߊߛߐޕ
ๆ
⌕ࡁ࠭࡞ ޓޓޓޓޓ ޓޓ9
Ფㅳޓᷡ
•ࡁ࠭࡞࠹ࡄㇱߪޔࡦ࠭ࠢ࠽ࠢࡠࠬᮡḰ
ઃዻຠߢᷡߒߡߊߛߐޕ
•ࡁ࠭࡞ࠍขᄖߒߡࠛࠕࡉࡠࠍⴕޔࠧࡒߥߤ
ࠍ㒰ߒߡߊߛߐޕ
ᵈ㧦ࡁ࠭࡞ߩᳪࠇ߇߭ߤߣ߈ߪޔࡁ࠭࡞ࠍขᄖ
ޓޓߒޔ㖸ᵄᵞᵺ߹ߚߪࠕ࡞ࠦ࡞ࠍᨴߺㄟ߹
ޓޓߖߚ࠙ࠛࠬߢᷡߒߡߊߛߐޕ
ޓޓࡁ࠭࡞ࠍขᄖߐߕߦࠕ࡞ࠦ࡞ࠍ↪ߔࠆߣޔ
ޓޓᢔ᧼ߦࠕ࡞ࠦ࡞߇ઃ⌕ߒޔഀࠇߡߒ߹߁
ޓޓᕟࠇ߇ࠅ߹ߔޕ
ᷡߩ⚦ߦߟߡߪޔ̌ๆ⌕ࡁ࠭࡞
ߩᷡ̍ࠍෳᾖߒߡߊߛߐޕ
ᢔ᧼ߩ㕙 9
Ფㅳޓὐᬌᷡ
ᢔ᧼ߩ㕙ߦࠣࠬ߇ઃ⌕ߒߡߥ߆ὐᬌߒ
ߡߊߛߐޕᢔ᧼ߩ㕙ߦࠣࠬ߇ઃ⌕ߒߡ
ࠆ႐วޔ߈ࠇߥ✎ߥߤߢ߈ขߞߡߊߛߐޕ
߹ߚޔᢔ᧼ߩⵣ㕙߽㏜ߥߤࠍ↪ߡ߈ขߞߡ
ߊߛߐޕ
ᵈ㧦ṁ߅ࠃ߮ࠛ࠲ࡁ࡞ߪ⛘ኻߦ↪ߒߥߢ
ޓޓߊߛߐޕ
ޓޓᢔ᧼߇ഀࠇߡߒ߹߁ᕟࠇ߇ࠅ߹ߔޕ
ޓޓᢔ᧼㕙ߩࠝࠗ࡞߈ขࠅᣇᴺߦߟߡߪޔ
ޓޓ̌ᢔ᧼㕙ߩᷡ̍ࠍෳᾖߒߡߊߛ
ޓޓߐޕ
Fig.4A20

Fig.4A21
Fig.4A22
1.3 メンテナンスか所
0509-002 1-21 AHM01JTRP
ࠞࡓ㕙ޓޓޓ/
߆ߏߣޓ⛎ᴤ
㧔࠳ࡈ࠾ࠛࡐࡀ࠶ࠢࠬࠣࠬ0Q㧕
✎ߢࠣࠬࠍႣᏓߒߡߊߛߐޕ
ࡁ࠭࡞࠴ࠚࡦࠫࠬࠗ࠶࠴/
߆ߏߣޓ⛎ᴤ
㧔࠳ࡈ࠾ࠛࡐࡀ࠶ࠢࠬࠣࠬ0Q㧕
✎ߢࠣࠬࠍႣᏓߒߡߊߛߐޕ
ࡒ࠾࠴ࡘࠕࠬ࠻ࡠࠢࡌࠕࡦࠣޓޓޓ/
߆ߏߣޓὐᬌ⛎ᴤ㧔࠳ࡈ࠾ࠛࡐࡀ࠶ࠢࠬࠣࠬ0Q㧕
ࠞࡓࡈࠜࡠࠕࠍᦨ߽ૐ⟎ߦ⒖േߒ߹ߔޕ
ๆ⌕ࡁ࠭࡞ࠍᣇߦߒߍߡ߆ࠄᜰࠍ㔌ߒߚߣ߈ޔๆ⌕ࡁ࠭࡞߇ࠬࡓ࠭ߦ㒠ࠅߥ
႐วߪޔᷡߣ⛎ᴤ߇ᔅⷐߢߔޕ
ᵈ㧦̌ޓࡒ࠾࠴ࡘࠕࠬ࠻ࡠࠢࡌࠕࡦࠣߩಽ⸃ޔᷡ߅ࠃ߮⛎ᴤ̍ࠍෳᾖߒߡ
ߊߛߐޕ
ࠞࡓࡈࠜࡠࠕ
ࡋ࠶࠼ࠠࡖ࠶ࡊ
ߩ㐿ญㇱ
ࡒ࠾࠴ࡘࠕࠬ࠻ࡠࠢࡌࠕࡦࠣޓޓޓ/
߆ߏߣޓᷡ
•̌ࡒ࠾࠴ࡘࠕࠬ࠻ࡠࠢࡌࠕࡦࠣߩಽ⸃ޔᷡ߅ࠃ߮⛎ᴤ̍ࠍෳᾖߒߡޔ
/5$ࠪࡖࡈ࠻ߣ/5$ᄖ╴ࠍޔἮᴤߢ⚂㨪ಽ㑆㖸ᵄᵞᵺߒߡߊߛߐޕ
•ࠪ࡞ޔਅࠪ࡞ߦࠠ࠭߿ᄌᒻ߇ࠆ႐วޔ߹ߚߪޔ⇣‛߇ઃ⌕ߒߡࠆ႐วޔ
ᣂߒࠪ࡞ߣ឵ߒߡߊߛߐޕ

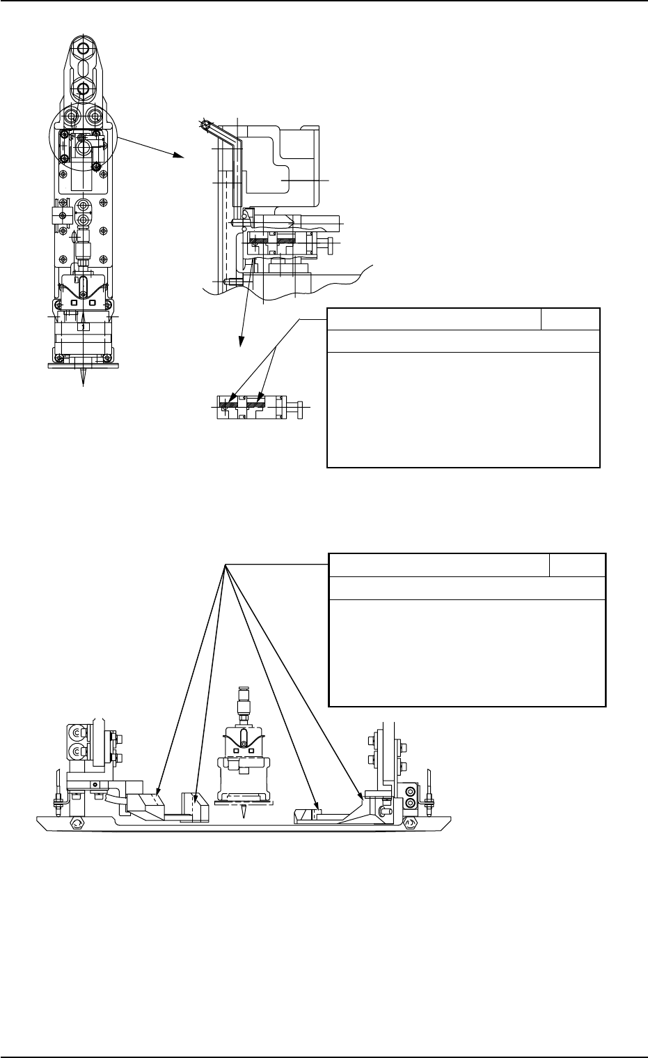
1.3 メンテナンスか所
0509-003 1-22 AHM01JTRP
Fig.4A24
(10)(10)
(10)(10)
(10)
部品姿勢検出部、 部品姿勢検出部、
部品姿勢検出部、 部品姿勢検出部、
部品姿勢検出部、
ノズル検出部ノズル検出部
ノズル検出部ノズル検出部
ノズル検出部
ライセンスライセンス
ライセンスライセンス
ライセンス
ᛩశฃశࠟࠬޓޓޓޓޓޓޓޓޓ9
Ფㅳޓᷡ
ࠟࠬࠞࡃ㕙ߦࠧࡒ߿ࡎࠦߥߤ߇ઃ⌕
ߒߡߚ႐วޔࡦ࠭ࠢ࠽ࠢࡠࠬ㧔ᮡ
Ḱઃዻຠ㧕ߢ߈ขߞߡߊߛߐޕ
ᳪࠇ߇߭ߤ႐วߦߪޔ✎ߦዋ㊂ߩή᳓
ࠛ࠲ࡁ࡞ࠍઃߌߡシߊߡߊߛߐޕ
ࡈࠖ࡞࠲/
߆ߏߣޓὐᬌ
ࡈࠖ࡞࠲ࠍὐᬌߒޔᳪࠇ߇߭ߤ႐วߪ
឵ߒߡߊߛߐޕ
ᵈ㧦឵ᣇᴺߦߟߡߪޔ̌ࡋ࠶
࠼ㇱߩࡈࠖ࡞࠲឵̍ࠍෳᾖߒߡߊ
ߛߐޕ
Fig.4A23