KW1_CL8-16_M-PL_2011 - 第56页
S027-M0489-20 CL-82-0402 No. Part No. Part Name Q'ty Remarks S027-M0489-20 CL-8-7 Reel Holder Unit 1 1 1 2 1 3 1 4 1 5 KW1-M1 1 1S-000 Screw ,Flat Head+ 1 6 K87-M1 1 1S-000 Screw ,Flat Head+ 2 7 8 S027-M0489-Y0 Seri…

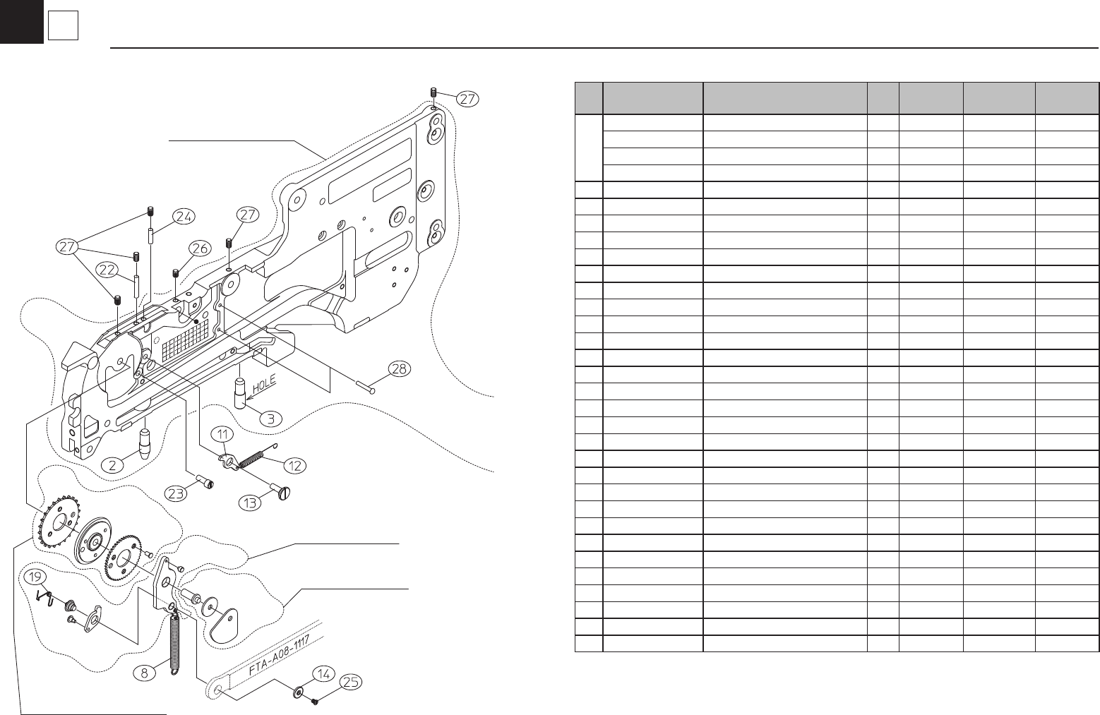
KW1-M116D-000
KW1-M119L-000
KT-A08-1170-D
KW1-M1192-100
KW1-M1191-100
Continued from
Page 9-1
LG4-M1A8D-000
No. Part No. Part Name Q'ty Remarks Change Compati.
KW1-M116D-000 Tension Lever Assy
1
KW1-M119L-000 Idle Roller Assy
1
KW1-M1192-001 Indentation Lever Assy
1
Can not sell
KW1-M1192-100 Indentation Lever Assy
1
(2009/7/23) NG
KW1-M119F-000 Drive Roller Assy
1
Can not sell
LG4-M1A8D-000 Drive Roller Assy
1
(2009/7/23) NG
KW1-M1191-001 Drive Roller Unit
1
Can not sell
KW1-M1191-100 Drive Roller Unit
1
(2009/7/23) OK
KW1-M1191-A00 Drive Roller Unit 40Pes
40
(2009/7/23) OK
1
KW1-M116J-000 Metal Shaft
1
2
3
KW1-M116F-000 Lever Axis Pin
1
*Attention
4
5
KW1-M119P-000 Spring
1
6
KW1-M119R-000 Collar
1
7
8
9
10
KW1-M119K-000 Spring
1
11
12
13
14
KW1-M11A1-011 Lower Guide Plate , R
1
15
KW1-M11A3-001 Lower Guide Plate , L
1
16
K87-M117B-000 Plane Washer
1
17
18
19
K87-M11BA-000 Screw,Flat Head+
3
20
K87-M11BB-000 Screw,Flat Head+
1
21
K87-M55BG-000 Screw,Truss Head+
1
22
K87-M111N-000 Screw,Pan Head+
2
23
K87-M53BS-000 Screw,Pan Head+
2
24
K87-M1115-000 Circular Rivet
2
*Attention
KW1-0911
9
5
ROLL UP Unit CLY-825
CL-84 / 825(C type) 8mm
*Attention: This parts need press t and training.
*Attention:
圧入部品のため修理依頼を推奨します。

S027-M0489-20
CL-82-0402
No. Part No. Part Name Q'ty Remarks
S027-M0489-20 CL-8-7 Reel Holder Unit 1
1 1
2 1
3 1
4 1
5 KW1-M111S-000 Screw,Flat Head+ 1
6
K87-M111S-000 Screw,Flat Head+
2
7
8
S027-M0489-Y0
Serial No.Sticker(STD) 1
9 S027-M0489-Y0 Serial No.Sticker(4P_T03) 1
10 S027-M0489-Y0 Serial No.Sticker(1005) 1
11 S027-M0489-Y0 Serial No.Sticker(0603) 1
12 S027-M0489-Y0 Serial No.Sticker(2P_T03) 1
13 S027-M0489-Y0 Serial No.Sticker(0402) 1
KW1-1107
9
6
REEL PLATE Assy(7in)
CLY-825
CL-84~82E{Pocket (D) type} 8mm-7inch

KW1-M1110-011
Continued on
Page 10-4,10-5
KW1-M112A-000
K87-M112L-100
KW1-M1320-000
No. Part No. Part Name Q'ty Remarks Change Compati.
KW1-M1110-011
Body Assy
1
K87-M112L-100
Sprocket Axis Assy
1
KW1-M112A-000 Racking Lever Assy
1
KW1-M1320-000 Sprocket Assy
1
1
2
KW1-M1112-000 Knock Pin (Front)
1
*Attention
3
KW1-M1113-000 Knock Pin (Rear)
1
*Attention
4
5
6
7
8
KW1-M131E-000 Spring
1
9
10
11
K87-M111H-200 Back Stopper
1
12
KW1-M111A-000 Spring
1
13
K87-M111B-000 Back Stopper Axis
1
14
K87-M111C-000 Plane Washer
1
15
16
17
18
19
K87-M112D-100 Coil Spring
1
20
21
22
K87-M111D-000 Push Pin
1
23
K87-M111F-100 Stopper Pin
1
24
K87-M111G-100 Push Pin
1
25
K87-M111P-000 Screw, Flat Head+
1
26
K87-M111X-000 Screw, Set
1
27
K87-M111R-000 Screw, Set
5
28
K87-M1115-000 Circular Rivet
2
*Attention
KW1-1107
10
1
BODY & RACHET Unit
CLY-82E
CL-825(D type) 8mm-2P(1005)
*Attention: This parts need press t and training.
*Attention:
圧入部品のため修理依頼を推奨します。