80S-2080F480F4-680F5 User’s Manual - 第482页
SIPLACE 80S-20/F4/F4-6/F5 User’s Manual 9 Maintenance Edition 03/98 from S oftware Version S R.404.xx 9.3 Machine Base 9 - 33 9.3.6 Emptying the Rejects C ontainer for the IC Head (SIPLACE 80F 4 / 80F 4 -6/F 5 ) As reg a…

9 Maintenance SIPLACE 80S-20/F4/F4-6/F5 User’s Manual
9.3 Machine Base Edition 03/98 from Software Version SR.404.xx
9 - 32
NOTE
If, despite changing the filter cartridges, the manometers still do not show 5.0 bar and 2.3 bar this will be
due to other reasons, as described in Section 9.3.5.1 on page 9 - 28.
Reinsert the cover plate.

SIPLACE 80S-20/F4/F4-6/F5 User’s Manual 9 Maintenance
Edition 03/98 from Software Version SR.404.xx 9.3 Machine Base
9 - 33
9.3.6 Emptying the Rejects Container for the IC Head (SIPLACE 80F
4
/
80F
4
-6/F
5
)
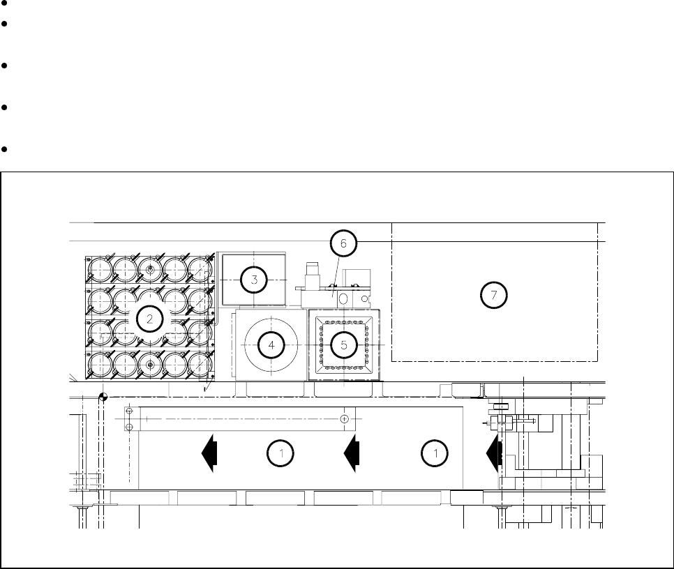
As regards the position of this rejects container at the machine base, please refer to Fig. 9.3.6.
The machine is switched off at the main switch and the sliding safety hoods are open.
Check first whether the z axis (sleeve) is in its top end position. If it is not, this indicates a fault. You should
inform Siemens’ SMD service department.
Move the gantry away from the rejects container by hand. Only hold the gantry and never the placement
head.
Lift the rejects container vertically upwards and off the magnetic disk, making sure that no components
drop into the working area of the machine.
Place the empty container back in the center of the magnetic plate.
Fig. 9.3.6 Emptying the rejects container for the IC head, position at the machine base
- Key to Fig. 9.3.6
1 Direction of PCB transport
2 IC head nozzle changer
3 Rejects container for IC head
4 Flip-chip sensor
5 IC sensor
6 Coplanarity module
7 Wafflepack changer

9 Maintenance SIPLACE 80S-20/F4/F4-6/F5 User’s Manual
9.3 Machine Base Edition 03/98 from Software Version SR.404.xx
9 - 34
9.3.7 Cleaning the IC Head Nozzle Changer (SIPLACE 80F
4
80F
4
-6/F
5
)
NOTE
Carry out maintenance of the nozzle changer whenever possible in conjunction with maintenance or inspec-
tion of the nozzles since for this work the nozzles have to be removed from the nozzle changer and afterwards
put back in their correct allocations.
The position of the nozzle changer in the machine base is shown in Fig. 9.3.6.
Fig. 9.3.7 Maintenance of the nozzle changer, allocations of nozzle to garage number
- Key to Fig. 9.3.7
1 Cleaning the locating holes
2 Direction of rotation for unlocking the nozzle for removal
3 Direction of PCB transport
M1 - M4 Magazine number
P1 - P5 Nozzle garage number