N7205A106B - 第104页
L1 Width Adjustment axis +OVR (= Single mode ORG) L1 Width Adjustment axis ORG (= Dual mode ORG) -B1C00 BN BK WH BU -B1C01 BN BK WH BU L1 Support pin detection (Receiver) L1 Support pin detection (Projector) -B1C02 BN BK…

JST
M636R
PHDR-18VS
18
17
16
15
11
10
13
12
9
8
7
5
4
6
14
3
2
1
1
2
3
14
6
4
5
7
8
9
12
13
10
11
15
16
17
18
-M636
P24(M)
GND(M)
P24(C)
GND(C)
Revers
STR/STP
SPD_H/L
EMG
DATA+
DATA-
CW/CCW
BUSY
OUT1
OUTPUT COM
NC
NC
NC
NC
MOLEX
1M636R
43025-1200
1
7
2
8
3
9
4
10
5
11
6
12
2464-1061/ⅡA(PF) LF 5P×24AWG
BN/WH
BN
YE/WH
YE
GN/WH
GN
BK/WH
BK
RD/WH
RD
N610153007AB
L2 Right
Conveyor motor
SEIWA
E04SR200932
JST
M634R
PHDR-18VS
18
17
16
15
11
10
13
12
9
8
7
5
4
6
14
3
2
1
1
2
3
14
6
4
5
7
8
9
12
13
10
11
15
16
17
18
-M634
P24(M)
GND(M)
P24(C)
GND(C)
Revers
STR/STP
SPD_H/L
EMG
DATA+
DATA-
CW/CCW
BUSY
OUT1
OUTPUT COM
NC
NC
NC
NC
MOLEX
1M634R
43025-1200
1
7
2
8
3
9
4
10
5
11
6
12
N610153005AB
L2 Left
Conveyor motor1
SEIWA
E04SR200932
JST
M63CR
PHDR-18VS
18
17
16
15
11
10
13
12
9
8
7
5
4
6
14
3
2
1
1
2
3
14
6
4
5
7
8
9
12
13
10
11
15
16
17
18
-M63C
P24(M)
GND(M)
P24(C)
GND(C)
Revers
STR/STP
SPD_H/L
EMG
DATA+
DATA-
CW/CCW
BUSY
OUT1
OUTPUT COM
NC
NC
L2 Left
Conveyor motor2
T/2464-3599 クロ LF 6P×24AWG
OG
GN
WH
YE
BU
RD
BN
LB
PK
VT
BK
GY
SEIWA
E04SR200932
N610153006AB
MOLEX
1M63CP
5559-10P-210
10
9
8
7
6
5
4
3
2
1
MOLEX
1M63CR
5557-10R-210
1
2
3
4
5
6
7
8
9
10
BN/WH
BN
YE/WH
YE
GN/WH
GN
BK/WH
BK
RD/WH
RD
2464-1061/ⅡA(PF) LF 5P×24AWG
BU/WH
BU
YE/WH
YE
GN/WH
GN
BK/WH
BK
RD/WH
RD
2464-1061/ⅡA(PF) LF 6P×24AWG
NC
NC
1
1
Panasonic Factory Solutions Co.,Ltd. パナソニック ファクトリーソリューションズ株式会社
Name
Drawing No.
Loc. No.
F4K1020-05A
1
2 3 4 5 6 7 8
A
B
C
D
E
F
1 2 3 4 5 6 7 8
A
B
C
D
E
F
Page. No.
PC Dual Conveyor Wiring:NPM-D2
(Conveyor motor 3)
N610152998+006AD
P006
BN/WH
BN
1
1
1
2
For 1M634P
Main Body Wiring of NPM-D2 (P041)
Main Body Wiring of NPM-D3 (P035)
3
N610153347**:Main Body wiring:NPM-D2
1
N610159580**:Main Body wiring:NPM-D3
3
For 1M636P
Main Body Wiring of NPM-D2 (P041)
Main Body Wiring of NPM-D3 (P034)
3
3
+V24(M)
GND(M)
+V24(C)
GND(C)
S-REV03
OT116
S-SPD03
EMG11
D+SUB
D-SUB
GND(C)
MOLEX
1M634P
43020-1200
12
6
11
5
10
4
9
3
8
2
7
1
+V24(M)
GND(M)
+24V(C)
GND(C)
S-REV01
OT114
S-SPD01
EMG11
D+SUB
D-SUB
MOLEX
1M636P
43020-1200
12
6
11
5
10
4
9
3
8
2
7
1

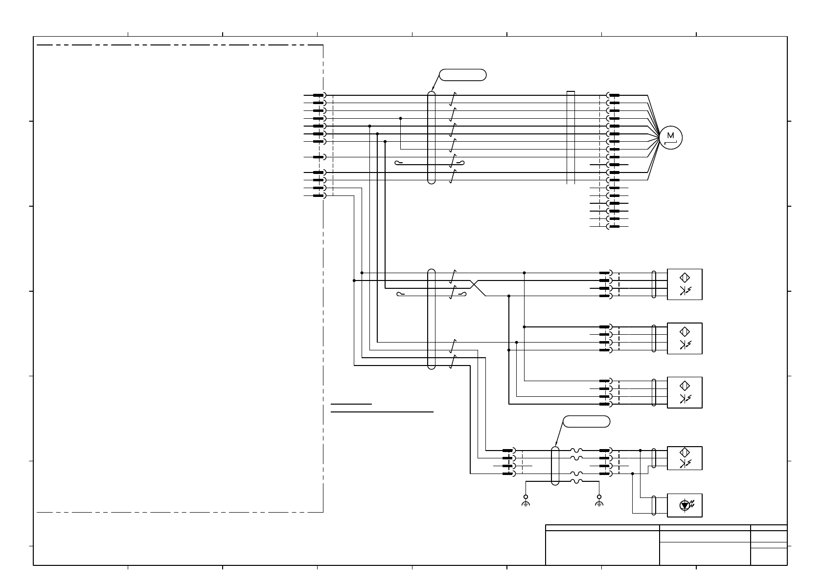
L1 Width Adjustment axis
+OVR (= Single mode ORG)
L1 Width Adjustment axis
ORG (= Dual mode ORG)
-B1C00
BN
BK
WH
BU
-B1C01
BN
BK
WH
BU
L1 Support pin detection
(Receiver)
L1 Support pin detection
(Projector)
-B1C02
BN
BK
BU
-B1C02
BN
BU
1
2
3
14
6
4
5
7
8
9
12
13
10
11
15
16
17
18
-M607
L1 Single mode detection
-B1C03
BN
BK
WH
BU
※Attention
P24(M)
GND(M)
P24(C)
GND(C)
-LS
ORG
+LS
EMG
DATA+
DATA-
CW/CCW
BUSY
NC
OUTPUT COM
NC
NC
NC
NC
L1's Origin sensor changes by use.
①In case of Dual mode, ORG becomes Origin sensor.
②In case of Single mode, +OVR becomes Origin sensor.
※Attention
About L1 Width Adjustment axis motor
※Attention
JST
M607R
PHDR-18VS
18
17
16
15
11
10
13
12
9
8
7
5
4
6
14
3
2
1
MOLEX
1M607R
43025-1200
1
7
2
8
3
9
4
10
5
11
6
12
AMP
B1C00P
177908-1
4
3
2
1
AMP
B1C01P
177908-1
4
3
2
1
AMP
B1C03P
177908-1
4
3
2
1
AMP
B1C02P
177908-1
4
3
2
1
AMP
B1C00R
177900-1
4
3
2
1
AMP
B1C01R
177900-1
4
3
2
1
AMP
B1C03R
177900-1
4
3
2
1
AMP
B1C02R
177900-1
4
3
2
1
AMP
1B1C02P
177908-1
4
3
2
1
AMP
1B1C02R
177900-1
4
3
2
1
BU UL#24 80/300-0.2mm2
BU
UL#24 80/300-0.2mm2
BU
UL#24 80/300-0.2mm2
BU
UL#24 80/300-0.2mm2
BU
UL#24 80/300-0.2mm2
N610153009AB
N610153010AB
L1 Width Adjustment motor
SEIWA
E04SR200932
EG607R
R1.25-4
JST
EG607P
R1.25-4
JST
WH
GN
RD
BK
T/2464-3599 BK LF 4×24AWG
2464-1061/ⅡA(PF) LF 6P×24AWG
BU/WH
BU
BN/WH
BN
YE/WH
YE
GN/WH
GN
BK/WH
BK
RD/WH
RD
BK/WH
BK
RD/WH
RD
GN/WH
GN
YE/WH
YE
2464-1061/ⅡA(PF) LF 4P×24AWG
Panasonic Factory Solutions Co.,Ltd. パナソニック ファクトリーソリューションズ株式会社
Name
Drawing No.
Loc. No.
F4K1020-05A
1
2 3 4 5 6 7 8
A
B
C
D
E
F
1 2 3 4 5 6 7 8
A
B
C
D
E
F
Page. No.
PC Dual Conveyor Wiring:NPM-D2
(Width adjustment motor L1)
N610152998+007AD
P007
1
1
2
For 1M607P
Main Body Wiring of NPM-D2 (P042)
Main Body Wiring of NPM-D3 (P034)
3
N610153347**:Main Body wiring:NPM-D2
1
N610159580**:Main Body wiring:NPM-D3
3
3
+V24(M)
GND(M)
+V24(C)
GND(C)
EMG20
D+MAIN
D-MAIN
+V24(C)
GND(C)
MOLEX
1M607P
43020-1200
12
6
11
5
10
4
9
3
8
2
7
1

L2 Width Adjustment axis
ORG (Dual mode)
-B1D00
BN
BK
WH
BU
L2 Support pin
detection (Receiver)
L2 Support pin
detection (Projector)
-B1D01
BN
BK
BU
-B1D01
BN
BU
1
2
3
14
6
4
5
7
8
9
12
13
10
11
15
16
17
18
-M638
P24(M)
GND(M)
P24(C)
GND(C)
-LS
ORG
+LS
EMG
DATA+
DATA-
CW/CCW
BUSY
NC
OUTPUT COM
NC
NC
NC
NC
MOLEX
1M638R
43025-1200
1
7
2
8
3
9
4
10
5
11
6
12
AMP
B1D00P
177908-1
4
3
2
1
AMP
B1D01P
177908-1
4
3
2
1
AMP
B1D00R
177900-1
4
3
2
1
AMP
B1D01R
177900-1
4
3
2
1
AMP
1B1D01P
177908-1
4
3
2
1
AMP
1B1D01R
177900-1
4
3
2
1
N610153011AB
N610153012AB
L2 Width Adjustment motor
JST
M638R
PHDR-18VS
18
17
16
15
11
10
13
12
9
8
7
5
4
6
14
3
2
1
SEIWA
E04SR200932
EG638R
R1.25-4
JST
EG638P
R1.25-4
JST
WH
GN
RD
BK
T/2464-3599 BK LF 4×24AWG
GN/WH
GN
BK/WH
BK
RD/WH
RD
BN/WH
BN
YE/WH
YE
GN/WH
GN
BK/WH
BK
RD/WH
RD
2464-1061/ⅡA(PF) LF 5P×24AWG
2464-1061/ⅡA(PF) LF 3P×24AWG
Panasonic Factory Solutions Co.,Ltd. パナソニック ファクトリーソリューションズ株式会社
Name
Drawing No.
Loc. No.
F4K1020-05A
1
2 3 4 5 6 7 8
A
B
C
D
E
F
1 2 3 4 5 6 7 8
A
B
C
D
E
F
Page. No.
PC Dual Conveyor Wiring:NPM-D2
(Width adjustment motor L2)
N610152998+008AD
P008
1
1
1
1
2
For 1M638P
Main Body Wiring of NPM-D2 (P042)
Main Body Wiring of NPM-D3 (P035)
3
N610153347**:Main Body wiring:NPM-D2
1
N610159580**:Main Body wiring:NPM-D3
3
3
+V24(M)
GND(M)
+V24(C)
GND(C)
EMG20
D+SUB
D-SUB
+24V(C)
GND(C)
MOLEX
1M638P
43020-1200
12
6
11
5
10
4
9
3
8
2
7
1