80S-20贴片机 - 第452页
13 6-Segment Revolver Head (8000) SIPLACE 80S-20/F4 Service Manual 13.9 6x Nozzle Cha nger Edition 07/97 13 - 38 5HSODF LQJW KH6SU LQJ+ RRN V 6SDUHS DUWV – Spring ho ok, from item no . 00329 170-01 7 RROV – …

SIPLACE 80S-20/F4 Service Manual 13 6-Segment Revolver Head (8000)
Edition 07/97 13.9 6x Nozzle Changer
13 - 37
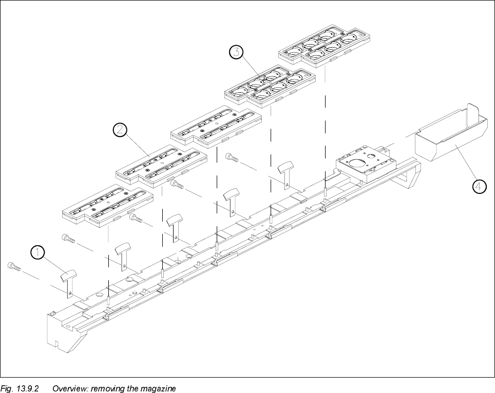
.H\WR)LJ
1 Spring hook
2 Magazine for type 7.xx nozzles
3 Magazine for type 8.xx nozzles
4 Reject container
6WHSVIRU5HPRYLQJWKH0DJD]LQH
You can change the magazines with the nozzle changer being installed.
● Push back the spring hook of the magazine.
● Remove the magazine from the supporting rail. You may feel a slight resistance when you remove the
magazine. This is normal since the magazine is also secured with magnets.
6WHSVIRU,QVWDOOLQJWKH0DJD]LQH
● Place the magazine on the associated locating pins and the advancing pin.
● Press down lightly on the magazine until it is lying on the support and the spring hook snaps in place.

13 6-Segment Revolver Head (8000) SIPLACE 80S-20/F4 Service Manual
13.9 6x Nozzle Changer Edition 07/97
13 - 38
5HSODFLQJWKH6SULQJ+RRNV
6SDUHSDUWV
– Spring hook, from item no. 00329170-01
7RROV
– Hexagon socket-head spanner, size 2.5
6WHSVIRUUHSODFLQJWKHVSULQJKRRN
● Remove the nozzle changer from the machine as described in section 13.9.1.
● Loosen the fixing screw on the spring hook and remove the spring hook
(see Fig. 13.9.2, item 1).
● Insert the new spring hook into the corresponding recess.
● Insert and tighten the fixing screw on the spring plate.
● Install the nozzle changer in the machine as described in section 13.9.2.
5HSODFLQJWKH1R]]OH&KDQJHU&RQWURO%RDUG
6SDUHSDUWV
– Nozzle changer control board, item no. 00317353-02
7RROV
– Hexagon socket-head spanner, size 2.5
6WHSVIRU5HPRYLQJWKH1R]]OH&KDQJHU&RQWURO%RDUG
● Remove the nozzle changer from the machine as described in section 13.9.1.
● Remove the connecting cable between the 5/2-way valve and plug X2 on the control board.
● Loosen the 4 M3x8 screws (see Fig. 13.9.3, item 6).
● Remove the control board by moving it towards the reject station (see Fig. 13.9.3,
item 4). When you do this, be careful not to damage the actuating plate of the light barrier.
PLEASE NOTE
Do not carry out any work on the actuating plate of the light barrier. This plate is set and coated at the factory.

SIPLACE 80S-20/F4 Service Manual 13 6-Segment Revolver Head (8000)
Edition 07/97 13.9 6x Nozzle Changer
13 - 39
6WHSVIRU,QVWDOOLQJWKH1R]]OH&KDQJHU&RQWURO%RDUG
● Introduce the control board into the nozzle changer from the reject station side.
● Screw down the board using the 4 M3x8 screws.
● Fit the connecting cable between the 5/2-way valve and plug X2 on the control board.
● Install the nozzle changer in the machine as described in section 13.9.2.
.H\WR)LJ
1Base
2 Encoder fixing screws
3 5/2-way valve fixing screws
4 Reject station
5 Nozzle changer control board
6 Control board fixing screws
75/2-way valve
8 Rotary drive