80S-20贴片机 - 第98页
4 Power Supply SIPLACE 80S-20/F4 Service Manual 4.2 Power Supply Unit Edition 01/96 4 - 12 4.2.3 Supply V oltages at T ransformers and Rectifiers On the side of the pow er supp ly un it you wi ll find transfo rmers T1 an…

SIPLACE 80S-20/F4 Service Manual 4 Power Supply
Edition 01/96 4.2 Power Supply Unit
4 - 11
VorBox
NOTE
When making detailed measurements or carrying out fault location in the power supply unit you should refer to
the relevant circuit diagram.
Fig. 4.2.2 Front view of power supply unit C0952 (partial view) - measuring voltages

4 Power Supply SIPLACE 80S-20/F4 Service Manual
4.2 Power Supply Unit Edition 01/96
4 - 12
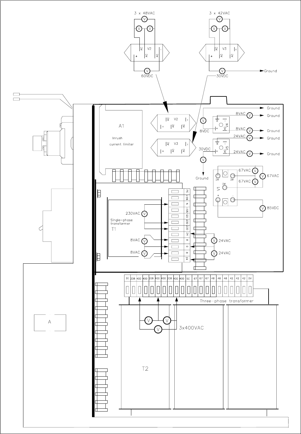
4.2.3 Supply Voltages at Transformers and Rectifiers
On the side of the power supply unit you will find transformers T1 and T2, rectifiers V1 - V5 and inrush current
limiter A1 (see Fig. 4.2.3).
NOTE
When making detailed measurements or carrying out fault location in the terminal rails or circuits you should
refer to the relevant circuit diagrams.
4.2.4 Overview of Voltage Supply Unit
Automatic circuit-breaker
or power circuit-breaker
Voltage Tripping current Circuit
F1 3 x 400 VAC 16 A Entire, after main switch
F2 3 x 400 VAC 16 A Transformer T2 with A1 via K2
F3 1 x 230 VAC 10 A Transformer T1
F4 85 VDC not regulated 20 A 85 V after rectifier V1
F5 60 VDC not regulated 10 A 60 V after rectifier V2
F6 30 VDC not regulated 10 A 30 V after rectifier V3
F7 24 VAC 10 A 24 V after transformer T2
F8 8 VDC not regulated 10 A 8 V after rectifier V4
F9 30 VDC not regulated 10 A 30 V after rectifier V5
F10 24 VAC 6 A 24 V after transformer T1
Q1 3 x 400 VAC 0.24 - 0.4 A
Table 4.2 - 1 Overview of voltage supply unit

SIPLACE 80S-20/F4 Service Manual 4 Power Supply
Edition 01/96 4.2 Power Supply Unit
4 - 13
Fig. 4.2.3 Side view of power supply unit - transformers and rectifiers