N7202A008B23 - 第54页
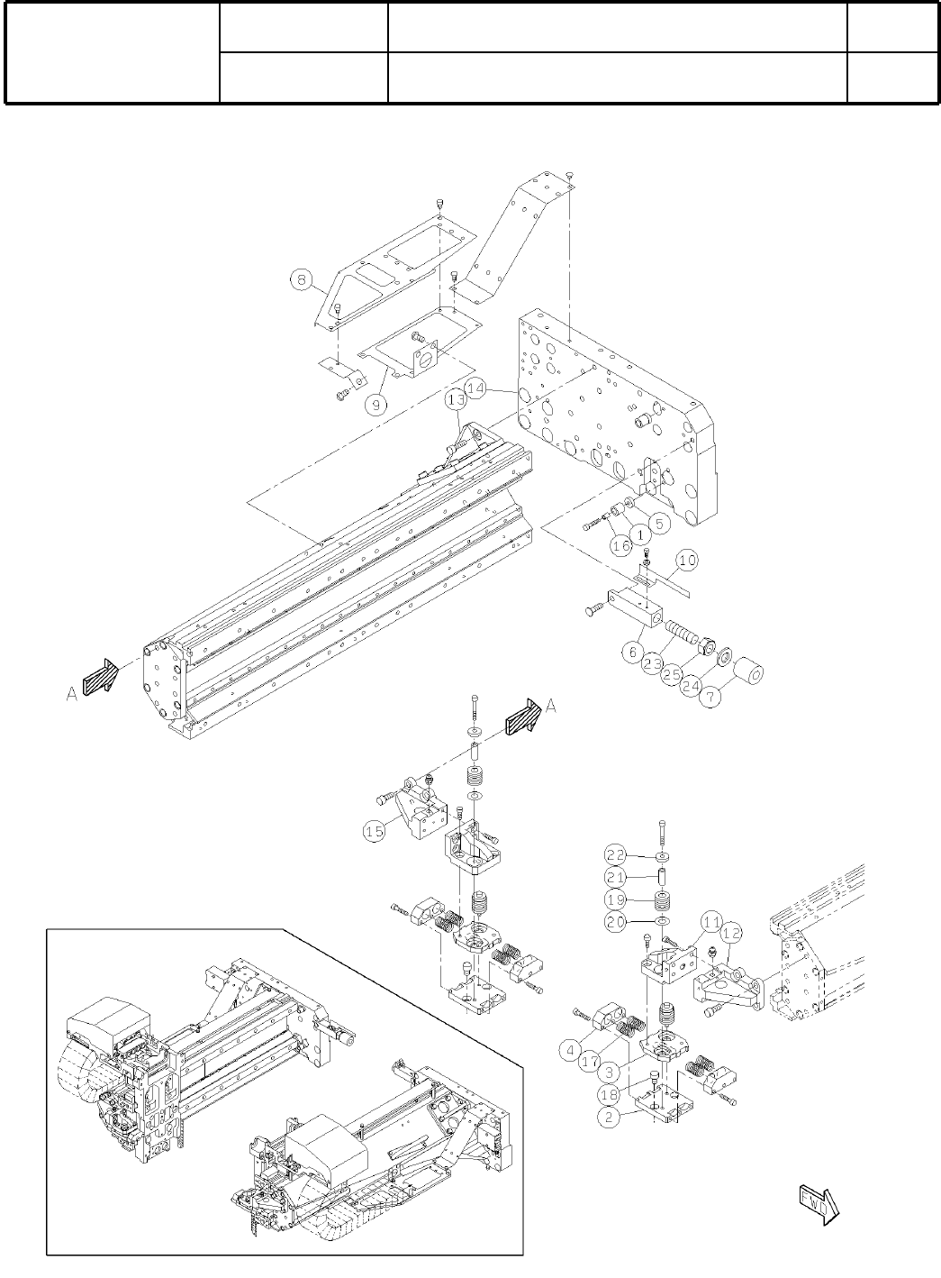
9-C X軸:NP M-D X- Ax i s : NP M-D パーツレイアウト Ki t N o . キット 品番 Kit N am e キット名称 N6 1010 960 4AA セクションNo. PARTS LAYOUT Section No. - - S33 ( KN610109604AA-08-3 )

Ref
No.
Remarks
R
1
Q'ty
9-B
X軸:NPM-D
X-Axis:NPM-D
イラスト
No.
Part No.
品 名品番 数量
R
2
パーツリスト
Kit N
o
.
キット品
番
Kit Name
キット名称
N610109604AA
Part Name
備 考
セクションNo.
PARTS LIST
Section No.
R
3
BLOCK
4
1 N210145659AA
PLATE
2
2 N210093674AB
PIECE
8
3 N210109406AA
PAN
2
4 N210134643AA
PLATE
2
5 N210134648AC
COVER
2
6 N210134649AB
BRACKET
4
7 N210134655AB
PLATE
2
8 N610110948AB
LINEAR-WAY
4
9 N510056709AA LRXSC20C2R594E103
LINEAR-SCALE
2
10 N510054904AA ST773A-440PF3
MOTOR
2
11 N510055028AA
S
DS3045C1B1AA5B6
MOTOR
4
12 N510053955AA
S
DS045M288B04B
PIN
4
13 N986MMS410 MMS4-10
SPACER
4
14 N510029509AA ASF-418E
PIN
8
15 N510020589AA MMS3-8
BOLT
2
16 N510036670AA CCBS4-10
PIN
4
17 KXF0CXHAA00 1017003-40008
BOLT
4
18 N510045097AA
Hexagon head bolt Best class M6X16-6g 10T A2J (Trivalent) (MEC process:
BOLT
40
21 N510018819AA
Hexagon socket head cap screw M6X18-10.9 A2J (Trivalent)
BOLT
8
22 N510023522AA LH0305 Trivalent chromeite
SPACER
6
23 N510020146AA ASF-435E
S32
--
( KN610109604AA-08-2 )

9-C
X軸:NPM-D
X-Axis:NPM-D
パーツレイアウト
Ki
t
N
o
.
キット
品番
Kit Name
キット名称
N610109604AA
セクションNo.
PARTS LAYOUT
Section No.
--
S33
( KN610109604AA-08-3 )

Ref
No.
Remarks
R
1
Q'ty
9-C
X軸:NPM-D
X-Axis:NPM-D
イラスト
No.
Part No.
品 名品番 数量
R
2
パーツリスト
Kit N
o
.
キット品
番
Kit Name
キット名称
N610109604AA
Part Name
備 考
セクションNo.
PARTS LIST
Section No.
R
3
STOPPER
8
1 N210109236AA
PLATE
2
2 N210130097AB
PLATE
2
3 N210133963AA
HOUSING
4
4 N210130100AB
WASHER
4
5 N210118272AA
SHAFT
1
6 N210134644AB
STOPPER
1
7 N210077946AA
GUIDE
1
8 N210137789AB
BRACKET
1
9 N210137790AB
DOG
1
10 N210134661AA
BRACKET
2
11 N610110947AA
BRACKET(F)
1
12 N610110952AB
X-BEAM( R )
1
13 N610111668AC
X-PLATE( R )
1
14 N610110954AB
BRACKET( R )
1
15 N610110955AB
SPACER
8
16 N510044825AA 3382330-40075
SPRING
8
17 N510047200AA SSWB12-20
BOLT
4
18 N510017457AA
Hexagon socket head cap screw M6X8-10.9 A2J (Trivalent)
SPRING
4
19 N510055040AA SSWM18-20
WASHER
4
20 N510031255AA TT-0818-05
COLLAR
4
21 N510055041AA 87NCLBH4-8-21.0
COLLAR
4
22 N510055042AA 87NCLBH5-16-3.5
SCREW
1
23 XXF12C45FT
Hexagon socket set screw Flat point M12X45-45H SOB
WASHER
1
24 N510027223AA
Round finish plain washer (JIS B 1256:1978) 12 10H A2J (Trivalent)
NUT
1
25 N510046390AA
U-nut M12 SK5 Type-2 S45C Trivalent chromate(white)
S34
--
( KN610109604AA-08-3 )