N7205A119B04(1)DX Wiring Diagram - 第291页
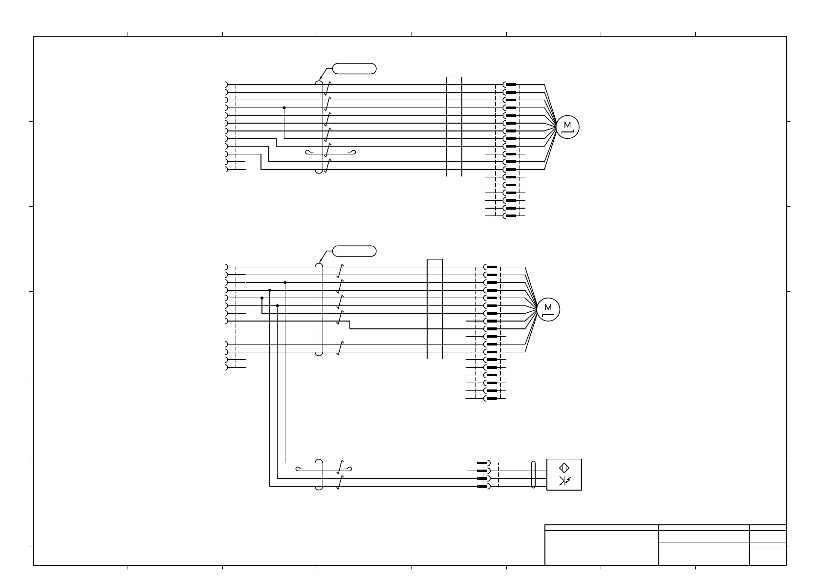
→ P003 - 1M652P → P003 - 1M656P L2(4) conveyor motor 12 11 10 9 8 7 177905-1 1M652R 6 5 4 3 2 1 4 6 14 3 2 1 13 12 8 7 5 PHDR-18VS M652R 1 2 3 14 6 4 5 7 8 9 12 13 10 11 15 16 17 18 -M652 10 11 15 16 17 18 9 YE YE/WH BN …

→ P004 - 1M623P
L1(1)
Width Adjustment axis
+OVR (= Single mode ORG)
L1(1)
Width Adjustment axis
ORG (= Dual mode ORG)
-B1F00
BN
BK
WH
BU
L1(1) Width Adjustment axis motor
-B1F01
BN
BK
WH
BU
1
2
3
14
6
4
5
7
8
9
12
13
10
11
15
16
17
18
-M623
4
B1F01R
177900-1
3
2
1
4
B1F00R
177900-1
3
2
1
L1(1) Single mode detection
-B1F02
BN
BK
WH
BU
4
B1F02R
177900-1
3
2
1
※Attention)
P24(M)
GND(M)
P24(C)
GND(C)
-LS
ORG
+LS
EMG
DATA+
DATA-
CW/CCW
BUSY
NC
OUTPUT COM
NC
NC
NC
NC
※Attention)
P24(M)
G24(M)
P24(C)
G24(C)
G24(C)
D+MAIN
D-MAIN
EMG_OUT20
1
2
3
1M623R
177905-1
4
5
6
7
8
9
10
11
12
4
B1F01P
177908-1
3
2
1
4
B1F00P
177908-1
3
2
1
16
15
11
10
13
12
9
8
7
5
4
6
14
M623R
PHDR-18VS
3
2
1
18
17
4
B1F02P
177908-1
3
2
1
BN/WH
BN
YE/WH
YE
GN/WH
GN
BK/WH
BK
RD/WH
RD
BK/WH
BK
RD/WH
RD
2464C(BPF)VVP AWG#24×2P-B
2464C(BPF)VVP AWG#24×5P-B
N610126555AB
SEIWA
E04SR200932
UL1007 24AWG BU BU
UL1007 24AWG BU BU
UL1007 24AWG BU BU
UL1007 24AWG BU BU
UL1007 24AWG BU BU
Panasonic Factory Solutions Co.,Ltd. パナソニック ファクトリーソリューションズ株式会社
Name
Drawing No.
Loc. No.
F4K1020-05A
1
2 3 4 5 6 7 8
A
B
C
D
E
F
1 2 3 4 5 6 7 8
A
B
C
D
E
F
Page. No.
Flex Conveyor ST R Control:NPM-D
(L2(4) conveyor motor)
N610126534+005AB
P005
1
2464-1061/ⅡA(PF) LF 5P×24AWG
1
2464-1061/ⅡA(PF) LF 2P×24AWG
1

→ P003 - 1M652P
→ P003 - 1M656P
L2(4)
conveyor motor
12
11
10
9
8
7
177905-1
1M652R
6
5
4
3
2
1
4
6
14
3
2
1
13
12
8
7
5
PHDR-18VS
M652R
1
2
3
14
6
4
5
7
8
9
12
13
10
11
15
16
17
18
-M652
10
11
15
16
17
18
9
YE
YE/WH
BN
BN/WH
BU
BK
BK/WH
RD
RD/WH
GN
GN/WH
BU/WH
P24(M)
GND(M)
P24(C)
GND(C)
Reverce
Start/Stop
SPD H/L
EMG
DATA+
DATA-
CW/CCW
N610126556AB
2464C(BPF)VVP AWG#24×6P-B
BUSY
OUT1
NC
NC
NC
NC
OUTPUT COM
L2(4) Width Adjustment axis
ORG (Dual mode)
L2(4) Width Adjustment axis motor
-B1J01
BN
BK
WH
BU
1
2
3
14
6
4
5
7
8
9
12
13
10
11
15
16
17
18
-M656
4
B1J01R
177900-1
3
2
1
P24(M)
GND(M)
P24(C)
GND(C)
-LS
ORG
+LS
EMG
DATA+
DATA-
CW/CCW
BUSY
NC
OUTPUT COM
NC
NC
NC
NC
P24(M)
G24(M)
P24(C)
G24(C)
S-REV31
OUT121
S-SPD31
D+SUB
D-SUB
EMG_OUT10
P24(M)
G24(M)
P24(C)
G24(C)
G24(C)
EMG_OUT20
D+SUB
D-SUB
SEIWA
E04SR200932
4
B1J01P
177908-1
3
2
1
16
15
11
10
13
12
9
8
7
5
4
6
14
M656R
PHDR-18VS
3
2
1
18
17
BN/WH
BN
YE/WH
YE
GN/WH
GN
BK/WH
BK
RD/WH
RD
1
2
3
1M656R
177905-1
4
5
6
7
8
9
10
11
12
BK/WH
BK
RD/WH
RD
2464C(BPF)VVP AWG#24×2P-B
2464C(BPF)VVP AWG#24×5P-B
N610126557AB
SEIWA
E04SR200932
Panasonic Factory Solutions Co.,Ltd. パナソニック ファクトリーソリューションズ株式会社
Name
Drawing No.
Loc. No.
F4K1020-05A
1
2 3 4 5 6 7 8
A
B
C
D
E
F
1 2 3 4 5 6 7 8
A
B
C
D
E
F
Page. No.
Flex Conveyor ST R Control:NPM-D
(L2(4) Width adjusting motor)
N610126534+006AB
P006
1
1
2464-1061/ⅡA(PF) LF 2P×24AWG
1
2464-1061/ⅡA(PF) LF 5P×24AWG
1
2464-1061/ⅡA(PF) LF 6P×24AWG
1

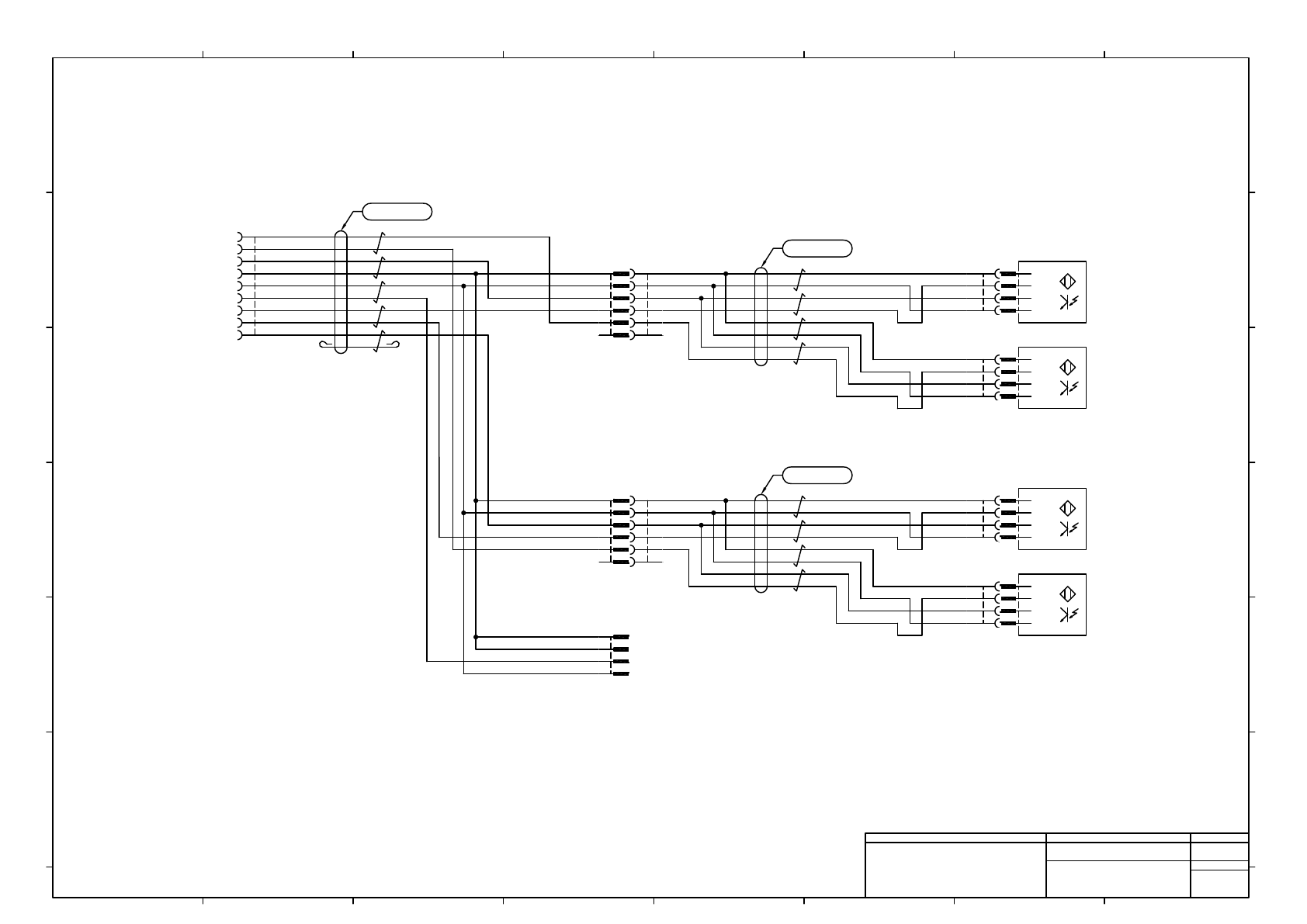
→ P003 - 2B1114P
→ P008 - B1021R
P24
OUT
IN
GND
1
2
3
4
-B1114
1
2
3
4
PAP-04V-S
B1114
L1(1) Board stop sensor 2
L2(4) Board stop sensor 1
L2(4) Board stop sensor 2
6
5
4
1B1114R
177901-1
3
2
1
6
5
4
1B1116R
177901-1
3
2
1
P24
OUT
IN
GND
1
2
3
4
-B1012
1
2
3
4
PAP-04V-S
B1012
L1(1) Board stop sensor 1
P24
OUT
IN
GND
1
2
3
4
-B1116
1
2
3
4
PAP-04V-S
B1116
P24
OUT
IN
GND
1
2
3
4
-B1107
1
2
3
4
PAP-04V-S
B1107
YE/WH
YE
GN/WH
GN
BK/WH
BK
RD/WH
RD
U-TKVV 4P-AWG24
N610126559AB
YE/WH
YE
GN/WH
GN
BK/WH
BK
RD/WH
RD
U-TKVV 4P-AWG24
N610126560AB
6
5
4
1B1114P
177909-1
3
2
1
6
5
4
1B1116P
177909-1
3
2
1
9
8
7
6
5
4
2B1114R
177903-1
3
2
1
4
3
2
1
177908-1
B1021P
YE/WH
YE
GN
BK/WH
BK
RD/WH
RD
GN/WH
BN
2464C(BPF)VVP AWG#24×5P-B
BN/WH
N610126558AC
IN114
IN116
OUT106
P24
G24
R_OPEN
IN012
OUT113
IN107
UL1007 24AWG BU BU
UL1007 24AWG BU BU
UL1007 24AWG BU BU
UL1007 24AWG BU BU
UL1007 24AWG BU BU
Panasonic Factory Solutions Co.,Ltd. パナソニック ファクトリーソリューションズ株式会社
Name
Drawing No.
Loc. No.
F4K1020-05A
1
2 3 4 5 6 7 8
A
B
C
D
E
F
1 2 3 4 5 6 7 8
A
B
C
D
E
F
Page. No.
Flex Conveyor ST R Control:NPM-D
(Sensor wiring)
N610126534+007AC
P007
1 2
2
2
2464-1061/ⅡA(PF) LF 5P×24AWG
2
2464-1061/ⅡA(PF) LF 4P×24AWG
2
2464-1061/ⅡA(PF) LF 4P×24AWG
2