N7205A119B04(1)DX Wiring Diagram - 第293页
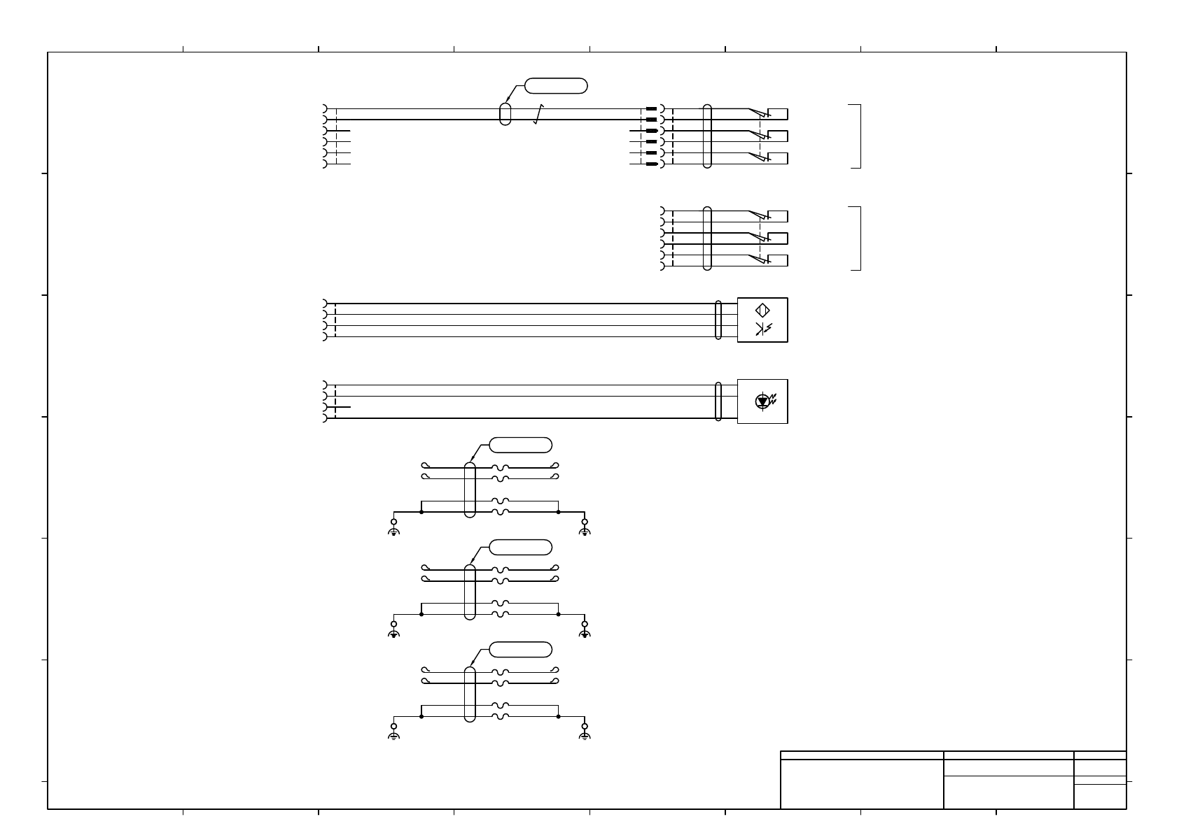
Transportation opening sensor (projection) Transportation opening sensor (Receive) 177900-1 B1021TR 4 3 2 1 177900-1 B1021R 4 3 2 1 -B1021T BN BK BU -B1021 BN PK BK BU Right (-Rear) side Right (-Front) side → P003 - B102…

→ P003 - 2B1114P
→ P008 - B1021R
P24
OUT
IN
GND
1
2
3
4
-B1114
1
2
3
4
PAP-04V-S
B1114
L1(1) Board stop sensor 2
L2(4) Board stop sensor 1
L2(4) Board stop sensor 2
6
5
4
1B1114R
177901-1
3
2
1
6
5
4
1B1116R
177901-1
3
2
1
P24
OUT
IN
GND
1
2
3
4
-B1012
1
2
3
4
PAP-04V-S
B1012
L1(1) Board stop sensor 1
P24
OUT
IN
GND
1
2
3
4
-B1116
1
2
3
4
PAP-04V-S
B1116
P24
OUT
IN
GND
1
2
3
4
-B1107
1
2
3
4
PAP-04V-S
B1107
YE/WH
YE
GN/WH
GN
BK/WH
BK
RD/WH
RD
U-TKVV 4P-AWG24
N610126559AB
YE/WH
YE
GN/WH
GN
BK/WH
BK
RD/WH
RD
U-TKVV 4P-AWG24
N610126560AB
6
5
4
1B1114P
177909-1
3
2
1
6
5
4
1B1116P
177909-1
3
2
1
9
8
7
6
5
4
2B1114R
177903-1
3
2
1
4
3
2
1
177908-1
B1021P
YE/WH
YE
GN
BK/WH
BK
RD/WH
RD
GN/WH
BN
2464C(BPF)VVP AWG#24×5P-B
BN/WH
N610126558AC
IN114
IN116
OUT106
P24
G24
R_OPEN
IN012
OUT113
IN107
UL1007 24AWG BU BU
UL1007 24AWG BU BU
UL1007 24AWG BU BU
UL1007 24AWG BU BU
UL1007 24AWG BU BU
Panasonic Factory Solutions Co.,Ltd. パナソニック ファクトリーソリューションズ株式会社
Name
Drawing No.
Loc. No.
F4K1020-05A
1
2 3 4 5 6 7 8
A
B
C
D
E
F
1 2 3 4 5 6 7 8
A
B
C
D
E
F
Page. No.
Flex Conveyor ST R Control:NPM-D
(Sensor wiring)
N610126534+007AC
P007
1 2
2
2
2464-1061/ⅡA(PF) LF 5P×24AWG
2
2464-1061/ⅡA(PF) LF 4P×24AWG
2
2464-1061/ⅡA(PF) LF 4P×24AWG
2

Transportation opening sensor (projection)
Transportation opening sensor
(Receive)
177900-1
B1021TR
4
3
2
1
177900-1
B1021R
4
3
2
1
-B1021T
BN
BK
BU
-B1021
BN
PK
BK
BU
Right (-Rear) side
Right (-Front) side
→ P003 - B1021TP
→ P007 - B1021P
N610126561AC
→ P003 - 1S321P
→ P003 - S321P
177901-1
S321R
6
5
4
3
2
1
Rear side
conveyor Cover SW
Opening
sensor
L1(1),L2(4)
(Dual mode)
L-(2),L-(3)
(Quad mode)
177909-1
S322P
1
2
3
4
5
6
BK/WH
BK
2464C(BPF)VVP AWG#24×1P-B
1
2
3
1S321R
177901-1
4
5
6
Front side
conveyor Cover SW
177901-1
S322R
6
5
4
3
2
1
Opening
sensor
L1(1),L2(4)
(Dual mode)
L-(2),L-(3)
(Quad mode)
P24
P24
R_OPEN
G24
P24
G24
G24
WH
BK
RD
GN
R1.25-4 R1.25-4
L1FG L1FG
N610126547AA
WH
BK
RD
GN
R1.25-4 R1.25-4
L2FG L2FG
N610126548AA
WH
BK
RD
GN
R1.25-4 R1.25-4
L2FG L2FG
N610126548AA
CONNECTOR
BRACKET
L1(1)Right (-Rear) side
Moving rail
CONNECTOR
BRACKET
L2(4)Right (-Rear) side
Moving rail
CONNECTOR
BRACKET
L2(4)Right (-Front) side
Moving rail
-S322
BU
BU/WH
BN
BN/WH
OG
OG/WH
-S321
BU
BU/WH
BN
BN/WH
OG
OG/WH
Panasonic Factory Solutions Co.,Ltd. パナソニック ファクトリーソリューションズ株式会社
Name
Drawing No.
Loc. No.
F4K1020-05A
1
2 3 4 5 6 7 8
A
B
C
D
E
F
1 2 3 4 5 6 7 8
A
B
C
D
E
F
Page. No.
Flex Conveyor ST R Control:NPM-D
(Opening sensor)
N610126534+008AC
P008
2464-1061/ⅡA(PF) LF 1P×24AWG
2