TR6DNR_TR6DNV_TR6DNX-Rev04 - 第13页
- - REF.NO NOTE PART NO D E S C R I P T I O N Qty 1 E1524 -716-000 DO OR CUSHION 2 2 400-5 1573 BALL CATCH 1 3 E1038 -871-000 PL ATEN LOCK CAM SCREW 1 4 400-5 1583 DOOR LOCK BASE 1 5 SM- 6032002-TN SCREW M3X0 .5 L=20 1…

- -
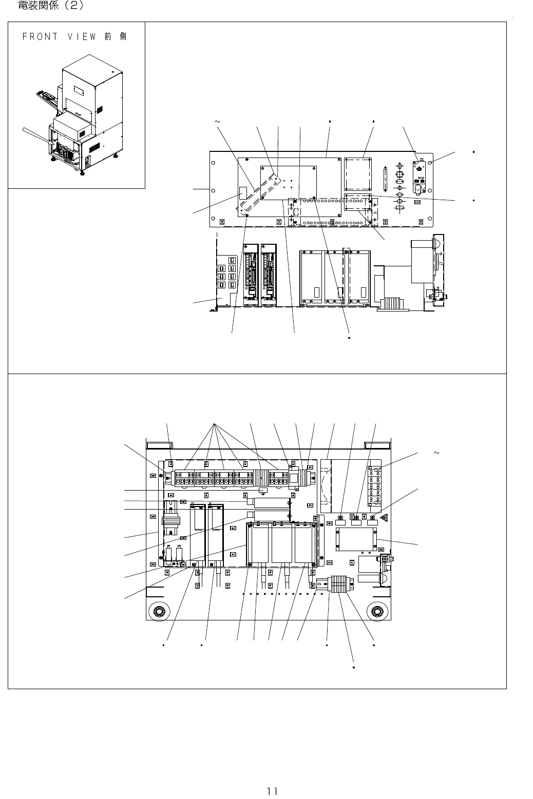
5. ELECTRIC APPARATUS COMPONENTS (1)
2 1 2 5
2 6
1 6
1 91 81 7
3 5
5 4
3 4
3 9
3 2 3 3
5 5
3 8
5 4
2 4
2 3
2 2
3 121
765
4
1 5
2 7
1 44 0 4 1
9
9
1 1
1 2
1 0
1 3
2 0
8
M4 * 8
5 3
4 2
4 3
4 4
4 6
4 7
4 8
4 9
3 1 4 5
5 0
5 1
5 2
2 8 2 9
3 0
3 6 3 7
5 6 5 7

- -
REF.NO NOTE PART NO D E S C R I P T I O N Qty
1 E1524-716-000 DOOR CUSHION 2
2 400-51573 BALL CATCH 1
3 E1038-871-000 PLATEN LOCK CAM SCREW 1
4 400-51583 DOOR LOCK BASE 1
5 SM-6032002-TN SCREW M3X0.5 L=20 1
6 NM-6030001-SC NUT M3 1
7 E1055-717-000 DOOR LOCK SP 1
8 PJ-3080600-03 Y UNION 3
9 SL-4035091-SC SCREW M3 L=50 2
10 SL-4030891-SC SCREW M3X8 2
11 SL-4030881-SC SCREW M3 L=8 4
12 SM-6032502-TN SCREW M3 L=25 2
13 SM-0040801-SC SCREW 2
14 400-48853 E COVER 6D 1
15
#01
HK-0498900-00 CONECTOR PARTS 1
16 E4559-717-000 DOOR LOCKLEVER 2
17
#01
HB-0014300-00 SAFETY RELAY UNIT 1
18
#01
HB-0013900-00 RELAY 5
19
#01
E9641-040-000 RELAY MY-2 DC-24V 4
20
#01
E2411-723-000 BREAKER COVER B 1
21 400-45100 DOOR S INTERLOCK SORENOID ASM. 1
22 HD-0005700-0A PHOTO SENSOR 1
23 400-45102 COVER LOCK SOLENOID ASM. 1
24 400-45095 COVER OPEN SENSOR CABLE ASM. 1
25 400-45098 DOOR M INTERLOCK SORENOID ASM. 1
26 HD-0017100-00 PHOTO SENSOR 2
27
#01
HK-0498900-0D CONNECTOR PARTS 4
28
#03
400-48718 DOOR SW CV 1
29 SL-4040891-SC SCREW M4 L=8 1
30 HX-0009600-0A EDGING BUSH 1
31 WS-0310002-KN SPRING WASHER M3 1
32
#01
400-48775 MAIN SW BR (CE) 1
33
#02
400-94908 MAIN_SW_BR_6D 1
34 HA-0058500-00 CIRCUIT PROTECTOR 1
35 400-45008 POWER LAMP ASM 1
36 400-45200 I/F CABLE ASM 1
37
#02
400-94573 I/F CABLE ASM 1
38 400-44994 AC POWER INPUT CABLE ASM 1
39
#01
E2410-723-000 BREAKER COVER A 1
40
#01
HK-0498500-10 TERMINAL BASE 10
41
#01
400-50013 CARRIER RAIL 1
42 SL-4040891-SC SCREW M4 L=8 2
43 400-48716 X INTERLOCK BR 1
44 SL-6030892-TN SCREW 2
45 SM-6030602-TN HEX SCREW M3 X 6 1
46 SL-4030691-SC SCREW M3X6 2
47 PS-0200062-KH SPRING PIN 2X6 1
48 E2039-723-000 X INTERLOCK LEVER 1
49 E1038-871-000 PLATEN LOCK CAM SCREW 1
50 E1055-717-000 DOOR LOCK SP 1
51 SL-4031081-SC SCREW M3 X 10 1
52 HA-0037900-0A MICRO SW 1
53 400-48865 X IL BR 1
54 400-49165 BREAKER COV 2
55 PV-0100060-00 HAND VALVE 1
56 SL-4030881-SC SCREW M3 L=8 2
57
#02
SM-4860501-SB SCREW M2.5 L=5 2

- -
6. ELECTRIC APPARATUS COMPONENTS (2)
9
1 1
4
3
1 0
7651 5 4
1 4 1 51 2 4 7
8
3 1 2 8 2 9
3 0
1 3
2 7
1 71 7 1 81 9
2 0
5 0
2 9
3 0
2 1 2 2 2 3
2 4 2 5
2 6 4 8
4 9
5 1 5 3
1 6
3 2 3 4
3 5
3 6 3 7
3 8 3 9
4 0 4 1
4 2 4 3 4 44 5
4 6
5 6
2 5 4 5 5