N7205A106B04[201502] - 第132页
在线预览 N7205A106B04[201502] PDF 文档。

3.
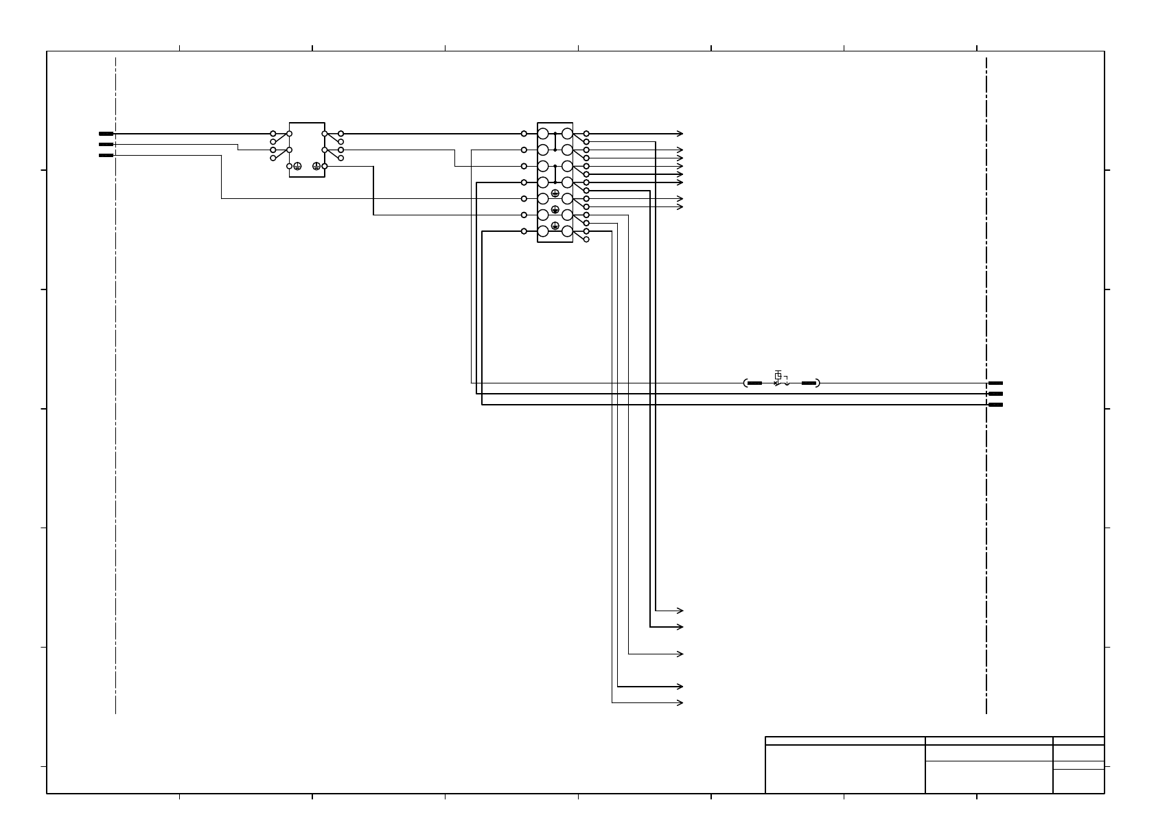
CONTROL BOX DIAGRAM OPTION
コントロール BOX 配線図オプション
3-1 TRAY FEEDER BOX
トレイフィーダ BOX
EJM6DB-10-301-00

AC200V
INPUT
BK UL#16 105/600-1.25mm2
BK
UL#16 105/600-1.25mm2
N610067177+004AE-2B L11(T101)
N610067177+004AE-2B L21(T101)
N610067177+004AE-2C E(T101)
GN/YE
UL#16 105/600-1.25mm2
L11aX1
AI 1,5-10 BK
PHOENIX CONTACT
L21aX1
L11cX1
L11bX1
AI 1,5-10 BK
PHOENIX CONTACT
L11eX1
L11fX1
L21bX1
L21cX1
L21eX1
L21fX1
1
1
1
TMEE1.25-4
NICHIFU
3aV01
TMEE2-4
NICHIFU
4aV01 2aV01
1aV01
TMEE2-4
NICHIFU
GN/YE
UL#16 105/600-1.25mm2
BK
UL#16 105/600-1.25mm2
BK
UL#16 105/600-1.25mm2
2
L21
L11
-X121
TB-X121(F000058)
1 1
2 2
3 3
4 4
5 5
6 6
7 7
PHOENIX CONTACT
N610067177+004AE-2D E(T102-1)
N610067177+004AE-2D E(T102-2)
2
2
AC200V
OUTPUT
L11
L21
E
BK
UL#16 105/600-1.25mm2
BK
UL#16 105/600-1.25mm2
GN/YE
UL#16 105/600-1.25mm2
2
2
N610067177+003AB-2B L11(K201)
N610067177+003AB-2B L21(K201)
N610067177+003AB-2C L11(K401)
N610067177+003AB-2C L21(K401)
N610067177+003AB-2C E(K401)
N610067177+003AB-2E L11(K402)
N610067177+003AB-2E L21(K402)
N610067177+003AB-2E E(K402)
-F121
NRF110-0.5A
(0.5A)
IDEC
L111
L21
E
2
1
3
2-179553-3
FAN
AMP
1
1
1
1
s
L11dX1
L21dX1
2
1F121
STO-61T-250N
JST
ST250-32-16-18
NISSEIECO
ST250-32-16-18
NISSEIECO
2F121
STO-61T-250N
JST
2
1-353047-3
TRAY.AC
AMP
3
1
2
3
-V01
NAC-06-681
3
4
1
2
COSEL
BK UL#16 105/600-1.25mm2
Panasonic Factory Solutions Co.,Ltd. パナソニック ファクトリーソリューションズ株式会社
Name
Drawing No.
Loc. No.
F4K1020-05A
1
2 3 4 5 6 7 8
A
B
C
D
E
F
1 2 3 4 5 6 7 8
A
B
C
D
E
F
Page. No.
TRAY BOX
(AC200V input)
N610067177+002AD
P002