N7205A106B04[201502] - 第96页
在线预览 N7205A106B04[201502] PDF 文档。

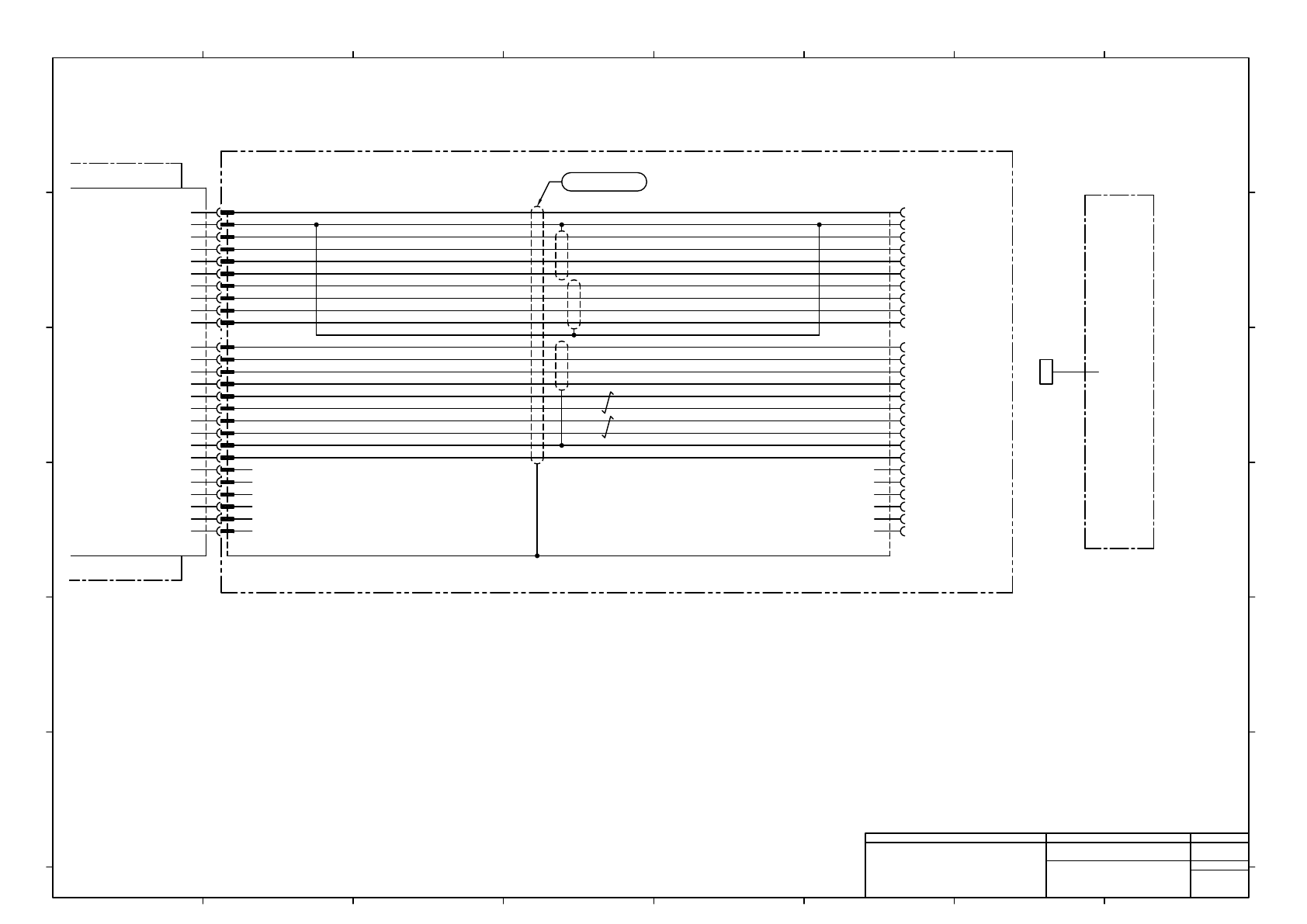
-K303
PPRCAH
-A01
CPU Box
Capture Board
CN6
For
Inspection Box
(Front)
N510045153AA
SHIELD
Wiring Assy OP : NPM_2D Inspection Box (Option)
Camera-EX
GND/12V
GND
X0-
1
14
2
X0+
X1-
X1+
15
3
16
X2-
X2+
XCLK-
4
17
5
XCLK+
X3-
18
6
X3+
SERTC+
19
7
SERTC-
CC1-
20
9
CC1+
22
SERTFG-
SERTFG+
GND
8
21
13
GND/12V
CC2+
26
10
CC2-
CC3-
23
11
CC3+
24
CC4+
CC4-
12
25
HONDA
CN6K303
HDR-E26MG+
1
14
2
15
3
16
4
17
5
18
6
19
7
20
9
22
8
21
13
26
10
23
11
24
12
25
HONDA
CAMERA-EX
HDR-E26FG1+
25
12
24
11
23
10
26
13
21
8
22
9
20
7
19
6
18
5
17
4
16
3
15
2
14
1
HDR-E26LPH HDR-E26LPHA+
LB
DRAIN
BN
YE
BN
GN
WH
BN
GN
RD
DRAIN
WH
BN
GN
BU
WH
BN
DRAIN
BN
GN
YE
CAML-K-0400
Panasonic Factory Solutions Co.,Ltd. パナソニック ファクトリーソリューションズ株式会社
Name
Drawing No.
Loc. No.
F4K1020-05A
1
2 3 4 5 6 7 8
A
B
C
D
E
F
1 2 3 4 5 6 7 8
A
B
C
D
E
F
Page. No.
Main Body Wiring : NPM-D3
(Camera Link Wiring For Inspection Cart)
N610159580+046AA
P046
Note1) Connector Pin arrangement is not sequential.
Note1) Note1)

2.
LOAD WIRING DIAGRAM
負荷配線図
2-2 PC DUAL CONVEYOR WIRING
PC デュアルコンベア配線
EJM6DB-10-202-00