KE-2000R_InstructionManual_C_Rev00说明 - 第793页
第2部 功能详细篇 第1 2章 选项元件 12-7 4) 在主体右侧面的界面控制板上, 将空气管连接到 “MTC 电源插头①” 、 “信号连接器②” 和 “MTC 用气压偶合器③” 。 电缆和空气管,请使用 MTC 附件。 图 12-3-3 ① MTC用电源连接器 ② MTC用界面连接器 ③ MTC用 φ 6管取出口 注意: ① ② ③

第2部 功能详细篇 第12章 选项元件
12-6
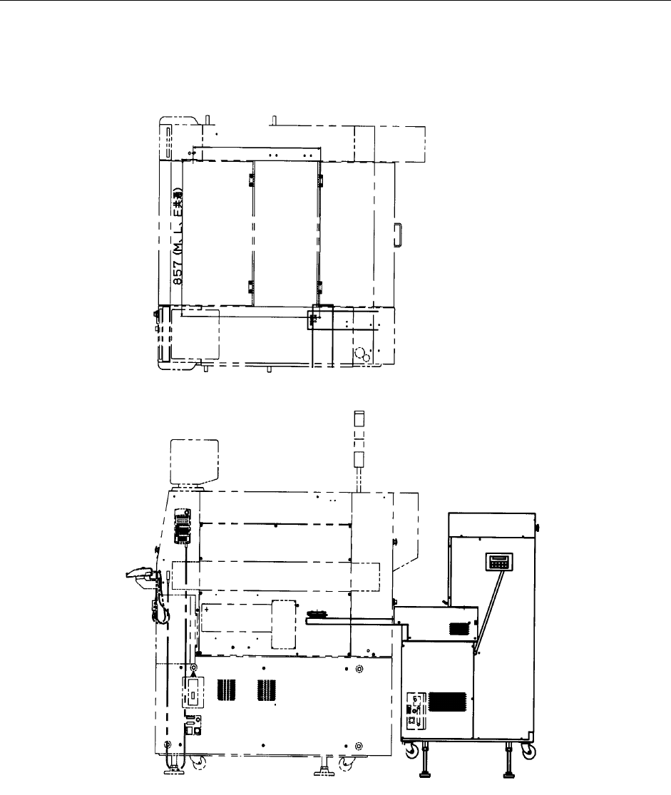
12-3 矩阵·托盘更换器(MTC)的设置方法
注意
为了防止意外启动引起事故,请切断电源后再进行操作。
12-3-1 安装方法
A
图 12-3-1
1) 从主机正面看,为了使“MTC
梭部③”进入右侧里面的
“MTC 导板盖①”中,从后方
移动“MTC 主机④”。
2) 设置时,尽量使“MTC 主体④”
靠近“盖 RUR②”。
3) 为了使梭部前端的切入高度
与“固定板⑤”的上面底高
度一致,“调整 MTC 主体的调
节器”。
图 12-3-2.A 向示图
①MTC 导向盖
②盖 RUR
③MTC 滑梭部
④MTC 主体
⑤固定板
④
③
②
①
关于MTC的操作方法,请参照附刊
的使用说明书。
注意:
⑤
9

第2部 功能详细篇 第12章 选项元件
12-7
4) 在主体右侧面的界面控制板上,将空气管连接到“MTC 电源插头①”、“信号连接器②”和“MTC
用气压偶合器③”。
电缆和空气管,请使用 MTC 附件。
图 12-3-3
① MTC用电源连接器
② MTC用界面连接器
③ MTC用φ6管取出口
注意:
①
②
③

第2部 功能详细篇 第12章 选项元件
12-8
12-3-2 安装位置
12-3-2-1 TR-4SN 的安装位置
图 12-3-2-1 TR-4SN 的安装外观
755(M)
861(L)
961(E)