3. SM471_Introduction(Kor_Ver1) - 第106页
6-28 Samsung Component Place r SM471 Introduction 6.11. 공압부 공압은 일반적으로 0.45 ~ 0.55 MPa 까지 설정하여 사용하며 장비의 후면 하단의 Air Filter 를 통해 공급됩니다 . 공급된 에어 는 Feeder Base 에 설치된 SM 피더와 ANC 를 동 작시키는데 사용되고 , Head 의 진공발생을 위해 사용되며 , 컨베이어의 각 …

6-27
Module Function
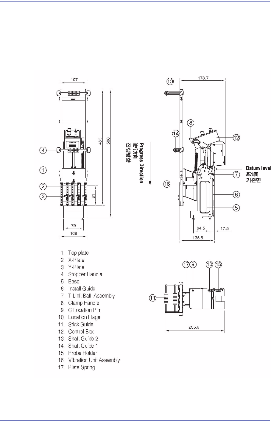
6.10.3. Vibration stick feeder
다단 Vibration Stick Feeder 는 Stick으로 공급되는 SOP, SOJ, PLCC 등의 부품을
Vibrator 의 진동에 의해 경사진 Stick을 따라 직진 이송시키는 장치입니다 . Stick을
가로로 정렬시켜 부품을 공급하며, 레인 수는 4개까지 가능합니다.
그림
6.19 Vibration stick feeder

6-28
Samsung Component Placer SM471 Introduction
6.11. 공압부
공압은 일반적으로 0.45 ~ 0.55 MPa까지 설정하여 사용하며 장비의 후면 하단의 Air
Filter를 통해 공급됩니다.
공급된 에어
는 Feeder Base에 설치된 SM 피더와 ANC를 동작시키는데 사용되고,
Head의 진공발생을 위해 사용되며, 컨베이어의 각 Stopper 및 Backup Table 들을 동
작시키는데 사용됩니다 .
그림
6.20
공압부

6-29
Module Function
1: Head Air Ass`y
2: Manifold Ass`y
3: Mist Filter
4: Main Air Regulator
5: Vacuum pump
주 의 적정 압력 미달 시에는 장비 작동에 이상 이 있을 수 있습니다.
공압은 일반적으로 0.45 ~ 0.55 MPa 까지 설정하여 사용하십시
오.
경 고 장비의 유지보수시 공압 및 전원을 차단하지 않고 수행하면 심
각한 상해를 입을 수 있습니다. 장비의 유지보수시 공압 및 전원
을 반드시 차단하고 수행 하십시오.