CM602-L中文.pdf - 第88页
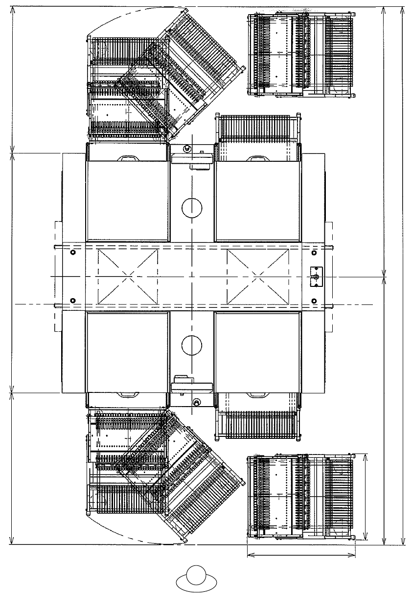
CM602- L 2009. 1115 - 82 - ■ 调整螺栓的配 置图 机种名 : CM602- L ( 单位 : mm) A I R 0.49 MPa ∼ 0.78 MPa 980 175 520 175 传送带 基准面 1 850 85 85 1 020 1 020 2 210 电源 操作员侧

CM602-L 2009.1115
- 81 -
12. 尺寸图
机种名 : CM602-L
(
单位
: mm)
Remarks
•
上述示图的缩小比例与实际机器在严格上讲,并不完全一致。
在研讨生产线构成和尺寸时,请另行索取资料。
2 290
1 375
915
1 255 735
225 685
850 1 360
340
965
87
73
电源
2 350
AIR
1 600
1 430
734 294
900
2 000
2 210
70
65 65
70
操作员侧
※使用整体交换台车(小型)时

CM602-L 2009.1115
- 82 -
■ 调整螺栓的配置图
机种名 : CM602-L
(
单位
: mm)
A
I
R
0.49 MPa
∼
0.78 MPa
980
175
520
175
传送带
基准面
1 850
85 85
1 020 1 020
2 210
电源
操作员侧

CM602-L 2009.1115
- 83 -
交换整体交换台车时,是必须的最小限空间。
设置机器时请注意。
(
单位
: mm)
※使用整体交换台车
(
小型
)
时
※
整体交换台车
(
选购件
)
设置范围的地面倾斜,需要台车的左右方向在
6 mm
以内,前后方向在
11 mm
以内。
地面倾斜度超过此范围时,不可搬移整体交换台车。
902
1 020
1 990 1 060
715
2 025
4 070
2 045
员侧操作
员侧操作
操作员