E53C-E-WDBA-0002-A4.pdf - 第137页
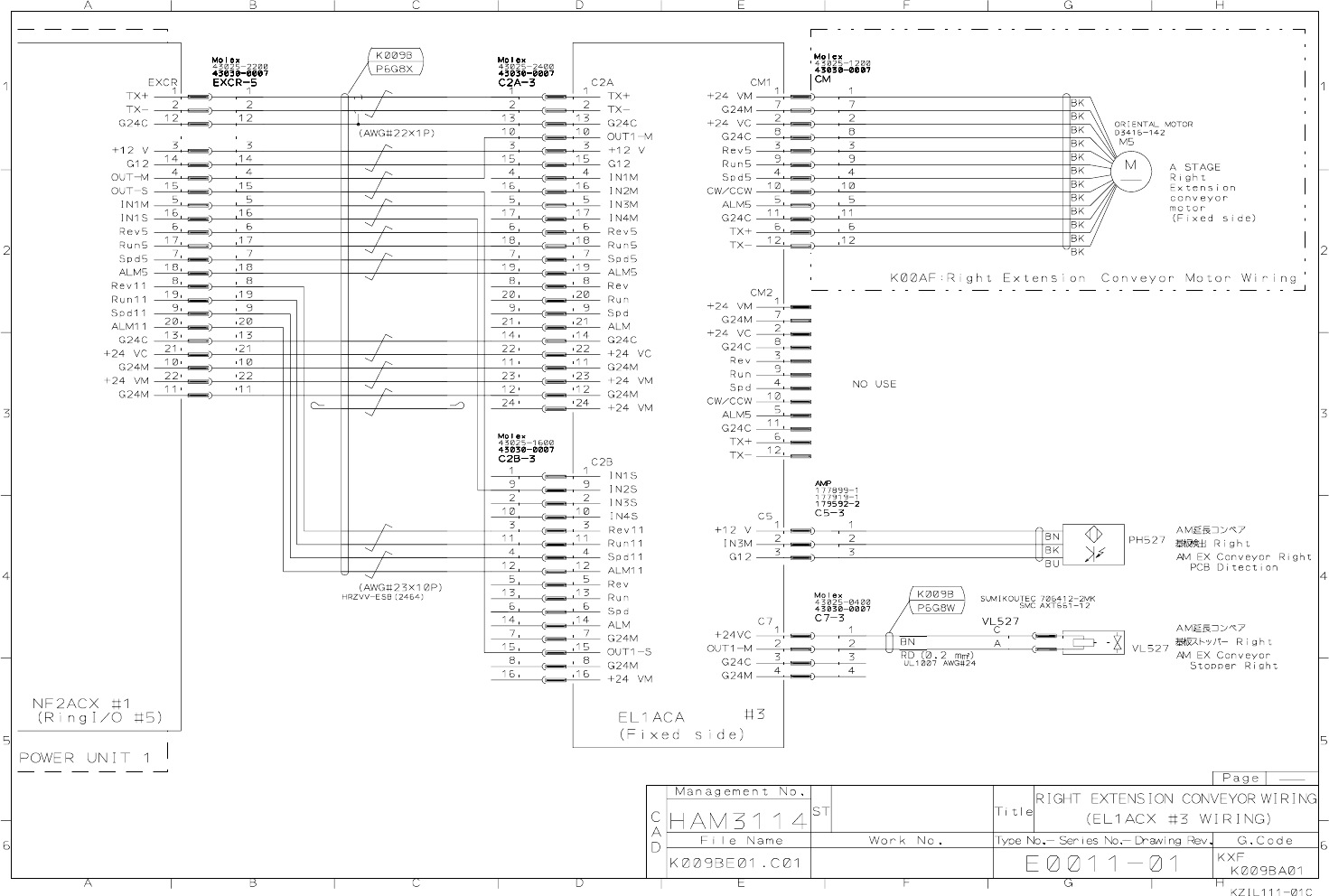
4. OPTION 4-2 RIGHT EXTENSION C ONVEYOR WIRING (LO A D WIRING DIA GR A M) E53C-E-W DB0A-A 00-00


4. OPTION
4-2 RIGHT EXTENSION CONVEYOR WIRING
(LOAD WIRING DIAGRAM)
E53C-E-WDB0A-A00-00

4. OPTION 4-2 RIGHT EXTENSION C ONVEYOR WIRING (LO A D WIRING DIA GR A M) E53C-E-W DB0A-A 00-00


