00192188-01 - 第534页
17.3 Beschreibung der Bauelemente und Leiterplatten B etriebsanleitung Linienrechner UNIX 17.3.2 Leiterplatte 2: Schwerpunkt Geh ä useform-Beschreibung Sof tware-V ersion 502.xx Ausgabe 10/2000 532 I t I I PM1 PM2 PM3 In…

Betriebsanleitung Linienrechner UNIX 17.3 Beschreibung der Bauelemente und Leiterplatten
Software-Version 502.xx Ausgabe 10/2000 17.3.1 Leiterplatte 1: einfache Schaltung
531
I
t I I
39. Im Menü DATEI die Option Ende anklicken.
Der Passmarken-Editor wird geschlossen.
40. Im Nutzen-Editor im Menü DATEI die Option Ende anklicken.
Der Nutzen-Editor wird geschlossen.
Inkpunkt definieren: es ist kein Inkpunkt vorhanden.
Nutzen und Einzelschaltungen erzeugen: es sind keine Nutzen und Einzelschaltungen vorhanden.
So werden die Bestückpositionen eingegeben:
41. Im Leiterplatten-Editor die Ikone Selektieren aktivieren.
42. Die Leiterplatte (Rechteck) anklicken.
Das Rechteck ist hellgrün markiert.
43. Im Menü DIENSTE die Option BP-Editor... anklicken.
Der Bestückpositions-Editor wird geöffnet.
44. Den Cursor im Eingabefeld positionieren. Die Bestückpositionen laut Tabelle 17.3-2 auf Seite 525 einge-
ben. Die einzelnen Angaben durch ein Leerzeichen trennen. Jede Zeile mit der Eingabetaste bestätigen.
45. Nach Beendigung der Eingabe die Ikone Check aktivieren.
Die eingegebenen Werte werden geprüft und in den Spalten angeordnet (siehe Abb. 17.3.3 ).
Abb. 17.3.3 Bestückpositions-Editor für Leiterplatte1
46. Im Menü DATEI die Option Ende anklicken.
Der Bestückpositions-Editor wird geschlossen.
So werden die Leiterplatten-Daten gesichert:
47. Im Leiterplatten-Editor im Menü DATEI die Option Sichern anklicken.
Die Leiterplatten-Daten werden gesichert.
48. Im Menü DATEI die Option Ende anklicken.
Der Leiterplatten-Editor wird geschlossen. Die Beschreibung der Leiterplatte 1 ist beendet.
Name des PM-Sets eingeben;
# = keine Passmarken für die
Bestückposition definiert
b = Bestücken
k = Kleben
d = Dispensen (Lotpaste)
n = Nachbearbeiten
s = Sperren (für Bestückung)
Nummer der Bestückebene
eingeben;
# = Ebene 0

17.3 Beschreibung der Bauelemente und Leiterplatten Betriebsanleitung Linienrechner UNIX
17.3.2 Leiterplatte 2: Schwerpunkt Gehäuseform-Beschreibung Software-Version 502.xx Ausgabe 10/2000
532
I
t I I
PM1
PM2
PM3
Inkpunkt
LP-Nullpunkt
40
96
5
5
30
86
15
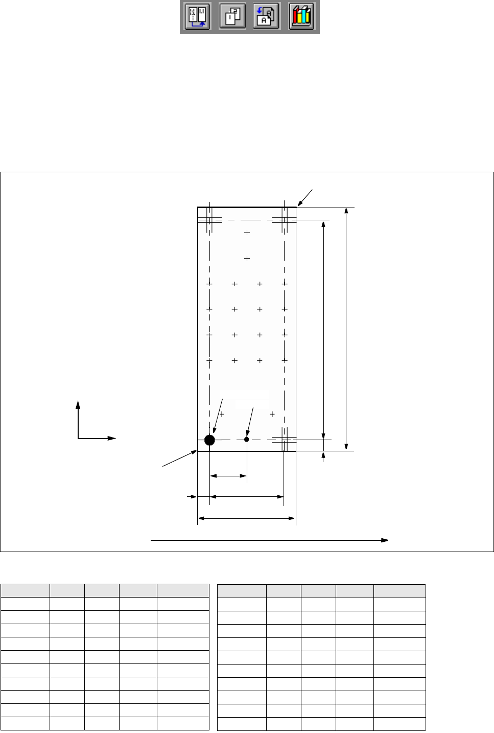
17.3.2 Leiterplatte 2: Schwerpunkt Gehäuseform-Beschreibung
Leiterplatte 2 ist eine einfache Schaltung mit drei verschiedenen Bauelementen.
Die Gehäuseformen sind in der GF-Bibliothek nicht enthalten, sie müssen neu beschrieben werden. Dazu kön-
nen die Gehäuseform-Nummern von 1501 bis 32767 der Kunden GF-Bibliothek verwendet werden.
Die Leiterplatte wird siebgedruckt, die Bauelemente sollen nur bestückt werden. Es ist keine CRDL-Prüfung
vorgesehen. Es soll eine Leiterplatten-Lageerkennung durchgeführt werden, dazu sind drei Passmarken (PM)
vorhanden. Ein Inkpunkt ist ebenfalls vorhanden.
Bei den Bauelementen handelt es sich um ein PDC, ein regelmäßiges FDC und ein unregelmäßiges FDC. Die
Bauelemente werden in 0°-Lage abgeholt.
BE-Name X Y Winkel Kommentar
Comp4 0.00 61.00 0.00 Pos1
Comp4 10.00 61.00 0.00 Pos2
Comp4 20.00 61.00 0.00 Pos3
Comp4 30.00 61.00 0.00 Pos4
Comp4 0.00 51.00 0.00 Pos5
Comp4 10.00 51.00 0.00 Pos6
Comp4 20.00 51.00 0.00 Pos7
Comp4 30.00 51.00 0.00 Pos8
Comp4 0.00 41.00 0.00 Pos9
Comp4 10.00 41.00 0.00 Pos10
Tab. 17.3-3 Bestückpositionen Leiterplatte 2
Comp4 20.00 41.00 0.00 Pos11
Comp4 30.00 41.00 0.00 Pos12
Comp4 0.00 31.00 0.00 Pos13
Comp4 10.00 31.00 0.00 Pos14
Comp4 20.00 31.00 0.00 Pos15
Comp4 30.00 31.00 0.00 Pos16
Comp5 15.00 81.00 0.00 Pos17
Comp5 15.00 71.00 0.00 Pos18
Comp6 5.00 10.00 -90.00 Pos19
Comp6 25.00 10.00 -90.00 Pos20
BE-Name X Y Winkel Kommentar
Transportrichtung
X
Y
LP-Koordinatensystem 0°
LP-Höhe= 1,5 mm
Ecke 2
Abb. 17.3.4 Abmessungen Leiterplatte 2
Ecke 1

Betriebsanleitung Linienrechner UNIX 17.3 Beschreibung der Bauelemente und Leiterplatten
Software-Version 502.xx Ausgabe 10/2000 17.3.2 Leiterplatte 2: Schwerpunkt Gehäuseform-Beschreibung
533
I
t I I
s
b
l
Kontaktierung
Pipetten Sensortyp Aufsetzkraft Bearbeitung Bestückkopf Zentrierung Förderer
615, 618 9 2 Bestücken Revolverkopf im Kopf 12 mm Gurt
Gehäuseformtyp GF-Nr.
PDC 1503.gf
l mm b mm s mm
5,7 5,0 1,7
Y
X
Bauelemente-
Koordinatensystem
X
Y
Bauelemente-
Koordinatensystem
Gehäuseformtyp GF-Nr.
unregelmäßiges FDC 1503.gf
Dim min. typ. max.
A--1.8
b 0.55 0.60 0.70
b
1
1.82 1.87 1.97
D6.36.56.7
E3.33.53.7
e
1
-3.81 -
e
2
-1.27 -
H
E
6.7 7.0 7.3
Der Beinchengruppen-Offset BG
Off
und die Beinchenlänge B
L
sind nicht angegeben und müssen aus folgenden Formeln be-
rechnet werden (siehe Bild in On-line Hilfe):
BGOff
Breite HE Beinchenlänge BL
–
2
--------------------------------------------------------------------------------=
BL
Breite HE Breite E
–
2
-----------------------------------------------------=
Pipetten Sensortyp Bearbeitung Bestückkopf Zentrierung Förderer
615, 618 9 Bestücken Revolverkopf im Kopf 12 mm Gurt
Y
X
Bauelemente-
Koordinatensystem
Comp5.be: Plastic 32pin 8x20mm TSOP
Symbol Min Nom Max
A--1.2
b0.150.20.3
D 18.3 18.4 18.5
E 7.9 8.0 8.1
e-0.5-
H
D
19.8 20.0 20.2
L
1
-0.8-
Gehäuseformtyp GF-Nr.
regelmäßiges FDC 1502.gf
Der Beinchengruppen-Offset BG
Off
ist nicht
angegeben und muss aus folgender Formel
berechnet werden (siehe Bild in On-line Hilfe):
BGOff
Breite HE Beinchenlänge BL
–
2
--------------------------------------------------------------------------------=
Pipette Sensortyp Bearbeitung Bestückkopf Zentrierung Förderer
416 7 Bestücken IC-Kopf extern 32 mm Gurt
Comp6.be: Micro-X / MW
Comp4.be: Vielschicht-Kondensator, Typ 2220