00191412-01 - 第547页
Betriebsanleitun g Linienrechner UNIX 17.3 Beschreibun g der Bauelemente und Leiterplatten Software-Version 50 1.xx Aus g abe 01/99 17.3.1 Leiterplatte 1: einf ache Schaltun g 17 - 1 9 39. Im Menü DATE I die Opt ion Ende…

17.3 Beschreibun
g
der Bauelemente und Leiterplatten Betriebsanleitun
g
Linienrechner UNIX
17.3.1 Leiterplatte 1: einfache Schaltun
g
Software-Version 501.xx Aus
g
abe 01/99
17 - 18
Es ist kein Inkpunkt vorhanden.
Es sind keine Nutzen und Einzelschaltun
g
en
vorhanden.
DATEI
Sichern
DATEI
Ende
Bestückpositionen
eingeben
Inkpunkt definieren
Leiterplatten-Daten
sichern
Nutzen und Einzel-
schaltungen erzeu-
gen
Fortsetzun
g
von Seite 17-16
LP-Beschreibung
Bestückpositions-Editor

Betriebsanleitun
g
Linienrechner UNIX 17.3 Beschreibun
g
der Bauelemente und Leiterplatten
Software-Version 501.xx Aus
g
abe 01/99 17.3.1 Leiterplatte 1: einfache Schaltun
g
17 - 19
39. Im Menü
DATEI
die Option
Ende
anklicken.
Der Paßmarken-Editor wird
g
eschlossen.
40. Im Nutzen-Editor im Menü
DATEI
die Option
Ende
anklicken.
Der Nutzen-Editor wird
g
eschlossen.
Inkpunkt definieren:
es ist kein Inkpunkt vorhanden.
Nutzen und Einzelschaltungen erzeugen:
es sind keine Nutzen und Einzelschaltun
g
en vorhanden.
So werden die Bestückpositionen eingegeben:
41. Im Leiterplatten-Editor die Ikone Selektieren aktivieren.
42. Die Leiterplatte
(
Rechteck
)
anklicken.
Das Rechteck ist hell
g
rün markiert.
43. Im Menü
DIENSTE
die Option
BP-Editor...
anklicken.
Der Bestückpositions-Editor wird
g
eöffnet.
44. Den Cursor im Ein
g
abefeld positionieren. Die Bestückpositionen laut
Tabelle 17.3-2 auf Seite 13
ein
g
e-
ben. Die einzelnen An
g
aben durch ein Leerzeichen trennen. Jede Zeile mit der Ein
g
abetaste bestäti
g
en.
45. Nach Beendi
g
un
g
der Ein
g
abe die Ikone Check aktivieren.
Die ein
g
e
g
ebenen Werte werden
g
eprüft und in den Spalten an
g
eordnet
(
siehe
Abb. 17.3.3
)
.
Abb. 17.3.3 Bestückpositions-Editor für Leiterplatte1
46. Im Menü
DATEI
die Option
Ende
anklicken.
Der Bestückpositions-Editor wird
g
eschlossen.
So werden die Leiterplatten-Daten gesichert:
47. Im Leiterplatten-Editor im Menü
DATEI
die Option
Sichern
anklicken.
Die Leiterplatten-Daten werden
g
esichert.
48. Im Menü
DATEI
die Option
Ende
anklicken.
Der Leiterplatten-Editor wird
g
eschlossen. Die Beschreibun
g
der Leiterplatte 1 ist beendet.
Name
des PM-Sets ein
g
eben;
# = keine Paßmarken für die
Bestückposition definiert
b = Bestücken
k = Kleben
d = Dispensen
(
Lotpaste
)
n = Nachbearbeiten
s = Sperren
(
für Bestückun
g)
Nummer
der Bestückebene
ein
g
eben;
# = Ebene 0

17.3 Beschreibun
g
der Bauelemente und Leiterplatten Betriebsanleitun
g
Linienrechner UNIX
17.3.2 Leiterplatte 2: Schwerpunkt Gehäuseform-Beschreibun
g
Software-Version 501.xx Aus
g
abe 01/99
17 - 20
PM1
PM2
PM3
Inkpunkt
LP-Nullpunkt
40
96
5
5
30
86
15
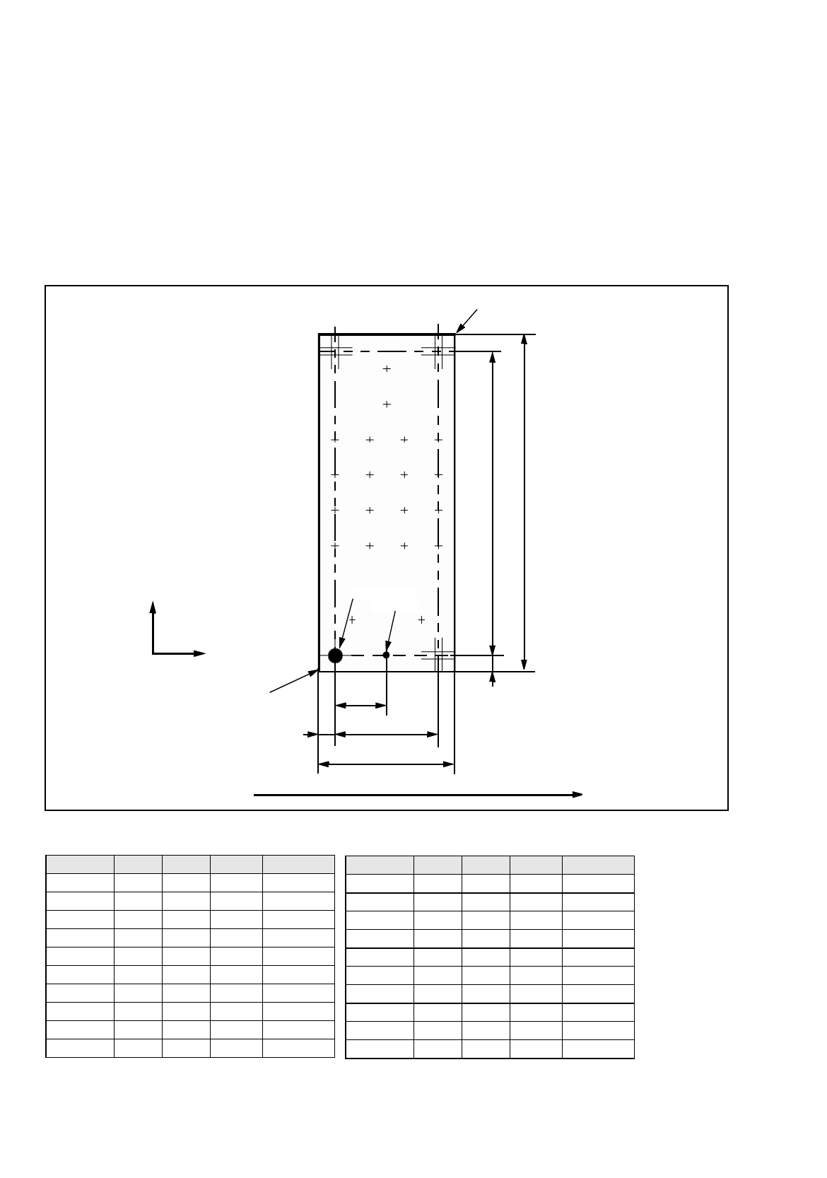
17.3.2 Leiterplatte 2: Schwerpunkt Gehäuseform-Beschreibung
Leiterplatte 2 ist eine einfache Schaltun
g
mit drei verschiedenen Bauelementen.
Die Gehäuseformen sind in der GF-Bibliothek nicht enthalten, sie müssen neu beschrieben werden. Dazu kön-
nen die Gehäuseform-Nummern von 1501 bis 32767 der Kunden GF-Bibliothek verwendet werden.
Die Leiterplatte wird sieb
g
edruckt, die Bauelemente sollen nur bestückt werden. Es ist keine CRDL-Prüfun
g
vor
g
esehen. Es soll eine Leiterplatten-La
g
eerkennun
g
durch
g
eführt werden, dazu sind drei Paßmarken
(
PM
)
vorhanden. Ein Inkpunkt ist ebenfalls vorhanden.
Bei den Bauelementen handelt es sich um ein PDC, ein re
g
elmäßi
g
es FDC und ein unre
g
elmäßi
g
es FDC. Die
Bauelemente werden in 0°-La
g
e ab
g
eholt.
BE-Name X Y Winkel Kommentar
Comp4 0.00 61.00 0.00 Pos1
Comp4 10.00 61.00 0.00 Pos2
Comp4 20.00 61.00 0.00 Pos3
Comp4 30.00 61.00 0.00 Pos4
Comp4 0.00 51.00 0.00 Pos5
Comp4 10.00 51.00 0.00 Pos6
Comp4 20.00 51.00 0.00 Pos7
Comp4 30.00 51.00 0.00 Pos8
Comp4 0.00 41.00 0.00 Pos9
Comp4 10.00 41.00 0.00 Pos10
Tab. 17.3-3 Bestückpositionen Leiterplatte 2
Comp4 20.00 41.00 0.00 Pos11
Comp4 30.00 41.00 0.00 Pos12
Comp4 0.00 31.00 0.00 Pos13
Comp4 10.00 31.00 0.00 Pos14
Comp4 20.00 31.00 0.00 Pos15
Comp4 30.00 31.00 0.00 Pos16
Comp5 15.00 81.00 0.00 Pos17
Comp5 15.00 71.00 0.00 Pos18
Comp6 5.00 10.00 -90.00 Pos19
Comp6 25.00 10.00 -90.00 Pos20
BE-Name X Y Winkel Kommentar
Transportrichtun
g
X
Y
LP-Koordinatensystem 0°
LP-Höhe= 1,5 mm
Ecke 2
Abb. 17.3.4 Abmessungen Leiterplatte 2
Ecke 1