Specification SIPLACE X-Series S 规格说明书 - 第53页
53 Technical data Maneuvering distances for WPC Pos. Description Location 1 /2 D1 Minimum requi red maneuvering di s tance for moving the componen t trolley out. 800 mm D2 Recommended maneuvering d istance for moving com…

52
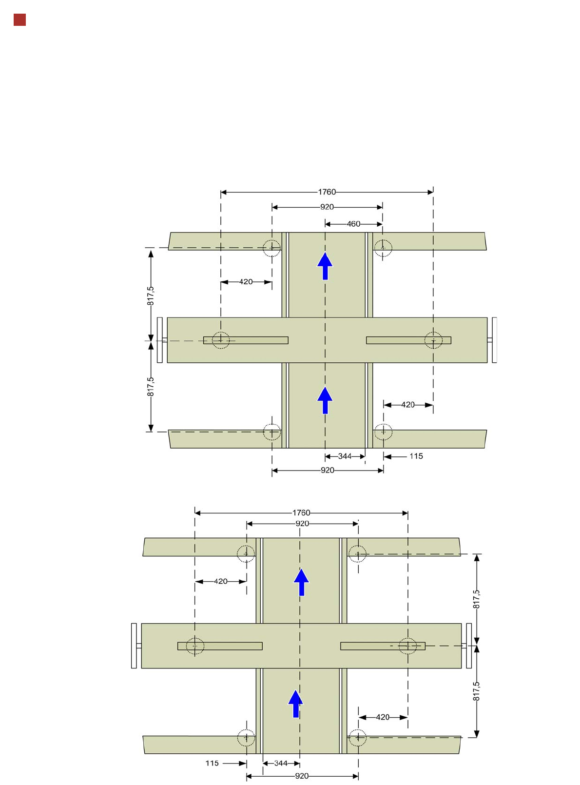
Technical data
Maneuvering distances for MTC
Pos. Description Location 1/2
D1 Minimum required maneuvering distance for moving the component
trolley out.
800 mm
D2 Recommended maneuvering distance for moving component trolley
out.Distance to adjacent machine/line or the building wall.
1300 mm
D3
Recommended maneuvering distance for moving MTC out. Distance
to adjacent machine/line or the building wall.
750 mm
L1 Distance from machine center to outer edge of MTC. 1938 mm

53
Technical data
Maneuvering distances for WPC
Pos. Description Location 1/2
D1 Minimum required maneuvering distance for moving the component
trolley out.
800 mm
D2 Recommended maneuvering distance for moving component trolley
out.Distance to adjacent machine/line or the building wall.
1300 mm
D3
Recommended maneuvering distance for moving WPC out. Distance
to adjacent machine/line or the building wall.
1000 mm
L1 Distance from machine center to outer edge of WPC (handles) 2100 mm
