Detailed Circuit Diagrams Folder SIPLACE X-series from serial number B-323 - 第141页
2 - 86 DP01_6 12X2 -020101L D3 DP axis , 6/12- segmen t C&P he ad, ga ntry 1, SIPLACE X2 (sh. 1 of 2) X8ba 34-pole PE X8bc 1,10,14,34 RSF digital encoder CP6: 00324968 CP12: 00335990 GND DP track B DP track B DP tra …

2 - 85
DP01_20X3X4-020101LD3 DP axis, 20-segment C&P head, gantry 1, SIPLACE X3 and X4 (sh. 3 of 3)
-15V
+15V
2
1
8
X30_1tq
1
3
2
4
5
6
7
Powerfail_24VDC
PA1_CAN_L
GND
PA1_CAN_H
9
n.u.
n.u.
n.u.
n.u.
9
n.u.
1
5
n.u.
n.u.
7
8
6
n.u.
3
4
2
X30_2tq
PA2_CAN_H
PA2_CAN_L
Powerfail_24VDC
GND
2
X45tq
1
3
X40tq
4
2
X46tq
1
5
4
X41tq
3
2
1
X32
1
2
3
GY
GY
GY 10+11
8+9
6+7
03009827
3 (W1)
4 (W1)
23
25GY
BK
Vin-
Vin+
4 (W1)
3 (W1)
16WH 2 (W1)
11
14
13BN
BN
VT
1 (W2)
2 (W2)
1 (W1)
03009766
7
4
1
X14
9
6
Vin(+)Axis
Vin(-)Axis
X12
0V
1 (W2)
2 (W2)
1 (W1)
2 (W1)
N40V
P40V
+150V_Star
12-pole
Power supply
00354626
GND
AGND
-15V
+15V_Servo
+5V
X4tc
A1
A4
AGND End signal
03036027 (tc)
Axis card A364, gantry 1
Track A
Track A
Track B
Track B
Track N
Track N
OPTO_GND
UB_Power_OK
Inom_W
Inom_U
+15V_Servo
-15V_Servo
Servo_Ready
AGND
Inom_W
Inom_U
Servo_Enable
+40V_Z/DP
UB_Power_OK
+150V_Star
Phase_V
Phase_U
Phase_W
Gantry 1
A8
Servo_Enable
Servo_Ready
I²t
PGND
C22; A/C24
C16 I²t
35
36
37
38
X31 03009765
1
2
3
X3sz /
03044424-W2
BK
RD
BN
BK
RD
BN
Phase_U
Phase_V
Phase_W
D22
+15V_Servo
-15V_Servo
+5V
+15V
-15V
D10,18
D30
Z28
Z20;D22
Z4; D6
D30
D10
Z28
Z16;D18
D6
Document st.
Product st.
Function st.
1. Hi
Hi1.
Hi2.
DP01_20X3X4-020101LD3
10.07.06
10.07.06
10.07.06
26.01.2005
Copyright reserved
SIEMENS AG
OFF
ON
S1
12
26-pole
6
12
10
9
8
3
5
2
X3sp /
Axis unit
03039648 (tq)
Backplane
1,4,7,17,20,23,26
PE
(S1.2 n.u.)
11
A/D4; B/E1,2,4; C1,6
C3
B/E8
C14
C13
B13
A13
B11
A12
B12
X23_1tq
A11
X1tc
A14
A10; B9
A9
A2
B7
A1
A/C/E15,18,19,22,23
B10
B/D15,16,17,20,21,24,25
Axis unit
03042047
X09_2tq
A/C32
A/C30
C26; A/C28
C10
C18; A/C20
C14
C12
A12
A8
C8
A/C2
C4
A4
X1tq
ModifiedStatus Date
CAD file : DP01_20X3X4-020101LD3_SH03.DWG
Orig./Repl.f./Repl.byStand.Name
Check.
Mat. no. :
Author Hi
Date
Sh.
Sh.
SIPLACE X-Series
3
3
DP axis, 20-segment Collect&Place head
X26aa
Sheet 2
03009775
X09_3tq
+5V
n.u.
OPTO_GND
DP track A
DP track A
DP track B
DP track B
DP track N
DP track N
C4 +15V
DP motor_W
DP motor_V
DP motor_U
Screen
SIPLACE X3 and X4
Gantries 1 and 4
n.u.
+5V
X43:1
X44:1
GY
GY
03002397
DC/DC converter
DP
+24V
24V_GND
n.u.
n.u.
n.u.
n.u.
n.u.
n.u.
DC
4
5
1
3n.u.
n.u.
n.u.
2
DC
n.u.
VHS_24V
VHS_24V
VHS_GND
DC/DC converter 5V/±15V
00353449
DC/DC converter ±15V
00353450
X49tq
X51tq
X50tq
PGND
Z4,8,20
Z8,16
GND
AGND
PGND
+40V_Z/DP
+150V_Star
R16
L7
R17
L8
R18
L9
X09_1tq
WH
GN
BN
BK
Sheet 2
X16aa
See page 5-57
See page 5-55
See page 3-7
See page 5-12
See page 5-13
See page 4-7
See page 4-13

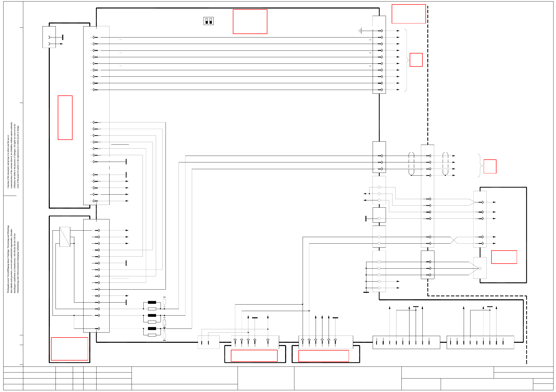
2 - 86
DP01_612X2-020101LD3 DP axis, 6/12-segment C&P head, gantry 1, SIPLACE X2 (sh. 1 of 2)
X8ba 34-pole
PE
X8bc
1,10,14,34
RSF digital encoder
CP6: 00324968
CP12: 00335990
GND
DP track B
DP track B
DP track A
DP track A
-15V
87, 89 -15V
+15V 88, 90 +15V
DP track A
DP track A
DP track B
DP track B
17
15
21
19
GND
PE
GND
+15V
+5V
7805
IN OUT
GND
VCC
-15V
GND
+15V
AGND
DP track A
DP track A
DP track B
DP track B
28
28
37
40
34
31
37
40
34
31
27
26
24
25
23
27
26
24
25
23
9
6x470 Ω
n.u.
10
Track N
X16bs
3
6
8
7
5
4
AGND
2
1
Track A
Track B
+5V
Track N
GND
Track B
Track signals, DP axis
Track A
Test plug
AGND 1
DP track B
DP track B
DP track A
DP track A
2
3
GND
5
4
6
Interference suppression board
SP6-12 intermediate distributor board, digital
00330648 (bs)
3106
Document st.
Product st.
Function st.
1. Hi
Hi1.
Hi2.
DP01_612X2-020101LD3
10.07.06
10.07.06
10.07.06
11.01.2005
Copyright reserved
SIEMENS AG
Gantry 1
SIPLACE X2
Gantry 1
03000901 (bc)
Head interface
26-pole X3tp /
03009795
Key
BU
RD
PK
OG
WH
03046225 (qa)
Main distributor
0V
+5V
+15V
12+5V
+24V
-15V
X1qa
n.u.
n.u.
14
13
DP track A
DP track A
DP track B
DP track B
DP track N
DP track N
PE
Sheet 2
5
9
n.u.
OPTO_GND
11
10
8
6
1,4,7,17,20,23,26
X09_1sq
3
2
3 (W1)GN +15V3
n.u.
6
5 2
41
(W2)
(W2)
5
4
+5V
GND
12 +5V
Cable carrier interface
BN
WH
X6qa
2
1
(W1)
(W1)
Voltage
03009788
X50ba
2
1
-15V
+24V
14
13
n.u.
n.u.
1,4,7,17,20,23,26
Actual value
DP1 axis
DP track B5
DP track B
DP track N
DP track N
DP tachom. -
DP tachom. +
DP track N
DP track NDP track N
DP track N
VCC
25
83, 85
23
VCC
27
29
GND
40-pole
PE
DP motor W
DP motor V102, 104
100
Key
Key
40-pole
AGND
X2bs:22
GND
DP track N
DP track N
21
22
20
19
21
22
20
19
03004333-W1
X14bq
1
X1bs
1
Tachom. +9
Tachom. -
10
6
8
7
5
4
BU 3
WH 4
X12bq
DLM-X head adapter
X22bc/J3
03019066 (bq)
Motor -
Motor +
X3
2
1 RD
BK
2
1
DP track N
DP track N
Key
+5V
8
7
9
X7bs
10
n.u.
8
7
00330573
DP motor
BU
WH
T
Motor /tacho
6
5
BK
RD
00321218
M
DP axis
Not used
9
11
10
n.u.
GND
8
6
26-pole
DP track A
DP track A
3
2
X26ba
PE
33
32
30
29
DP track A
DP track B
DP track A
DP track B
32
33
29
30
03044424-W2
BN
RD
BK
Phase_U BK1
Backplane
Axis unit
03039648 (sq)
Sheet 2
Phase_W 3
Phase_V
2
BN
RD
03042047
Axis unit, gantries 1 and 3
X3tz /
X09_3sq
WHWH36
DP motor U1 2 DP motor U2
Tachom. +
Tachom. -2
3, 4
1
PE
X161
BKBK35
BN
GN
38
37
BN
GN
PE4
DP motor W
DP motor V
3
2
24
23
26
27
DP tachom. +
DP tachom. -
DP track N
DP track N27
26
24
23
GND 16, 31
19
22
25
28
+15V
+24V
-15V
+5V
4
3
5
GND16, 31
+5V
+24V
+15V
-15V
25
28
19
22
DP motor W
DP motor V
4
5
3
Gantry 1 or 3
03010612 (ba)
Cable carrier interface
Cable carrier interface
X21
DP1 motor
03009785
X16ba
DP1/DP2 motor
03038078
Carrier cable 8, 1G
1,10,14,34
34-pole
PE
ModifiedStatus Date
CAD file : DP01_612X2-020101LD3_SH01.DWG
Orig./Repl.f./Repl.byStand.Name
Check.
Mat. no. :
Author Hi
Date
Sh.
Sh.
SIPLACE X-Series
1
2
DP axis, 6/12-segment Collect&Place head
See page 5-41
See page 5-28
See page 5-46
See page 5-7
See page 5-57
See page 5-7
See page 4-7
See page 4-9

2 - 87
DP01_612X2-020101LD3 DP axis, 6/12-segment C&P head, gantry 1, SIPLACE X2 (sh. 2 of 2)
D10
Z28
Z16;D18
D6
-15V
+15V
2
1
8
X30_1sq
1
3
2
4
5
6
7
Powerfail_24VDC
PA1_CAN_L
GND
PA1_CAN_H
9
n.u.
n.u.
n.u.
n.u.
9
n.u.
1
5
n.u.
n.u.
7
8
6
n.u.
3
4
2
X30_2sq
PA2_CAN_H
PA2_CAN_L
Powerfail_24VDC
GND
2
X45sq
1
3
X40sq
4
2
X46sq
1
5
4
X41sq
3
2
1
X22
1
2
3
GY
GY
GY 10+11
8+9
6+7
03009807
3 (W1)
4 (W1)
23
25GY
BK
Vin-
Vin+
4 (W1)
3 (W1)
16WH 2 (W1)
11
14
13BN
BN
VT
1 (W2)
2 (W2)
1 (W1)
03009786
7
4
1
X13
9
6
Vin(+)Axis
Vin(-)Axis
X12
0V
1 (W2)
2 (W2)
1 (W1)
2 (W1)
N40V
P40V
+150V_Star
12-pole
Power supply
00354626
DC/DC converter 5V/±15V
00353449
DC/DC converter ±15V
00353450
X49sq
X51sq
X50sq
PGND
Z4,8,20
Z8,16
GND
AGND
PGND
+40V_Z/DP
+150V_Star
R16
L7
R17
L8
R18
L9
X09_1sq
WH
GN
BN
BK
Sheet 1
X16ba
ModifiedStatus Date
CAD file : DP01_612X2-020101LD3_SH02.DWG
Orig./Repl.f./Repl.byStand.Name
Check.
Mat. no. :
Author Hi
Date
Sh.
Sh.
SIPLACE X-Series
2
2
DP axis, 6/12-segment Collect&Place head
GND
AGND
-15V
+15V_Servo
+5V
X4sc
A1
A4
AGND End signal
03036027 (sc)
Axis card A364, gantry 1 SDS60/1D1 servo amplifier
03002142 (sq)
Track A
Track A
Track B
Track B
Track N
Track N
OPTO_GND
UB_Power_OK
Inom_W
Inom_U
+15V_Servo
-15V_Servo
Servo_Ready
AGND
Inom_W
Inom_U
Servo_Enable
+40V_Z/DP
UB_Power_OK
+150V_Star
Phase_V
Phase_U
Phase_W
Gantry 1
A8
C7
Servo_Enable
Servo_Ready
I²t
PGND
C22; A/C24
C16 I²t
35
36
37
38
X21 03009785
1
2
3
X3tz /
03044424-W2
BK
RD
BN
BK
RD
BN
Phase_U
Phase_V
Phase_W
D22
+15V_Servo
-15V_Servo
+5V
+15V
-15V
D10,18
D30
Z28
Z20;D22
Z4; D6
D30
X26ba
Sheet 1
03009795
X09_3sq
X21_4sq
1,4
7
8
10-pole
GND
+5V
n.u.
n.u.
n.u.
X23_3sq:E23
X23_3sq:D23
OPTO_GND
DP track A
DP track A
DP track B
DP track B
DP track N
DP track N
C4 +15V
DP motor_W
DP motor_V
DP motor_U
Screen
SIPLACE X2
Gantries 1 and 3
n.u.
+5V
n.u.
n.u.
X43:1
X44:1
GY
GY
Document st.
Product st.
Function st.
1. Hi
Hi1.
Hi2.
DP01_612X2-020101LD3
10.07.06
10.07.06
10.07.06
11.01.2005
Copyright reserved
SIEMENS AG
OFF
ON
S1
12
26-pole
6
12
13
14
10
9
8
3
5
2
X3tp /
Axis unit
03039648 (sq)
Backplane
1,4,7,17,20,23,26
PE
(S1.2 n.u.)
11
A/D4; B/E1,2,4; C1,6
C3
B/E8
C14
C13
B13
A13
B11
A12
B12
X23_1sq
A11
X1sc
A14
A10; B9
A9
A2
B7
A7
A1
A/C/E15,18,19,22,23
B10
B/D15,16,17,20,21,24,25
Axis unit
03042047
X09_2sq
A/C32
A/C30
C26; A/C28
C10
C18; A/C20
C14
C12
A12
A8
C8
A/C2
C4
A4
X1sq
See page 5-57
See page 5-55
See page 4-11
See page 3-7
See page 5-12
See page 5-13
See page 4-7