Detailed Circuit Diagrams Folder SIPLACE X-series from serial number B-323 - 第68页
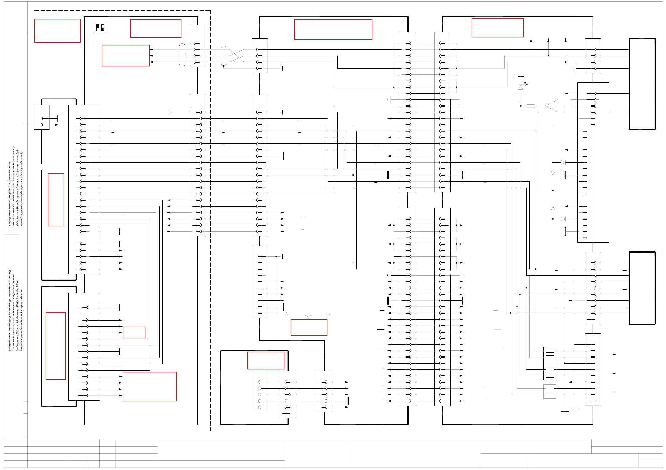
2 - 13 X02_X4- 02010 1LD3 X axis, ga ntry 2, SI PLACE X4 (sh. 2 of 2) BK GY GY GY GY BN X4qa Main distributor 03046225 3 WH X1qa_0V 03009786-W5 SIPLACE X4 Axis unit, gantries 2 and 3 Load connection 00353481 LSZ250/1000 …

2 - 12
X02_X4-020101LD3 X axis, gantry 2, SIPLACE X4 (sh. 1 of 2)
Document st.
Product st.
Function st.
1. Hi
Hi1.
Hi2.
X02_X4-020101LD3
10.07.06
10.07.06
10.07.06
11.01.2005
Copyright reserved
SIEMENS AG
S/Z2 force sensor CS
S/Z2 force sensor DATA
S/Z2 force sensor DATA
S/Z2 force sensor CS
S/Z2 force sensor CLK
S/Z2 force sensor CLK
S/Z2 sensor stop
X motor V
X motor W
X motor U
X track N
X track N
X track B
X track A
X track A
X track B
X reference point
X limit switch
X temperature sensor
OG
03046225 (qa)
+24V
Main distributor
+5V
0V
+15V
-15V
WH
PK
BU
RD
X1qa
(W1)WH1 +24V1
Cable carrier interface
03009788
(W1)
(W1)
(W2)
(W2)
14
6
5
n.u.
2
3
2
GN
BN
4
5
3
2
+5V
GND
+15V
-15V
Y distance, X2ba:30
Y-B2, X1ba:30
Y reference point, X1ba:29, X21ba:13
Y sensor stop, X21ba:11
X reference point
XM track B, X3ba:30, n.u.
XM track B, X3ba:29, n.u.
n.u.
X6qa
10
X50ba
9
8
6
7
5
GND
3
4
2
X31ba
PE1
X-B2
24
25
2
Key
X24bc
10
9 GY RI
WHGN
RD3
+5V 7
8
6
BK
BN
YE
4
5
WH
GN
X15bc
1
2 PK
T2
RI
+5V
T1
T1
GND
T2
Screen
X5bc:8-10
redH7
X12bc:1
X motor U
PE
29 29
Carrier cable 5, 2GE
X motor U
X12ba:1
2
4
3
X5ba
32
33
GND 31
30
X5bc
03038085
X motor
2
4
3
32
33
GND31
30
X-B2
26
+24V 28
27
+15V 25
24
PE
-15V 22
23
21
1, 11-19, 34
20
10
26
+24V28
27
+15V25
24
1, 11-19, 34
-15V22
23
21
20
10
X track B
X track A
X track A
X track B
V5
V4
X track N
X track N
X-B2
X reference point
X limit switch
X temperature sensor
+
LM358
1
Carrier cable 4, 2GE
4
7
8
9
27
25
24
-15V
+5V
22
21
19
20
18
23
26
28
27
25
24
22
21
19
20
18
1, 11, 14, 34
Spare
GND
Z2-Dir
PE
16, 31
17
15
12
13
X motor W
X12ba:3
X motor V
X12ba:2
8
9
10
6
7
1, 11, 14, 34
16, 31
17
15
12
13
8
9
10
6
7
470Ω
R3
Track N
Track A
Track N
Track B
Track B
Track A
+5V
+5V
7
Track N
Track N
PEGND
Key
10
9
8
Test plug
Track B
Track B
Track A
Track A
GND
PE
1
4
6
5
3
+15V_Servo
(S1.2 n.u.)
ON
OFF
Axis card A364, gantry 2
A/D10; B/E8
A/D4; B/E1,2,4; C1,6
C14
C3
-15V
+5V
B/D15-17,20,21,24,25
A/C/E15,18,19,22,23
B10
B9
A9
03036027 (sa)
SensorStopA14
A2
A1
B7
A7
Inom_U
Inom_W
ENDX
B13
C13
B12
A13
Track N
Track N
Track B
A4
A1
X4sa
End signal AGND
X21_1sq
A11
A12
B11
X1sa
Track A
Track B
Track A
1
S1
2
AGND
GND
11
14
13
12
n.u.
8
9
10
6
03039648 (sq)
Backplane, axis unit
X1to/
X01_1sq
1,4,7,17,20,23,26
2
5
3
PE
26-pole
Phase_W
+250V_1
UB_Power_OK
Brake_Enable
Servo_Enable
Servo_Ready
+15V_Servo
-15V_Servo
Phase_U
B/D/Z30
B/D/Z/32
B/D/Z18,20
B/D/Z26,28
Z12
D14
Phase_V
Inom_U
Z8
D12
D10
D8
D6
Inom_W
Z4
D4
To sheet 2, X01_4sq:B/D/Z30
To sheet 2, X01_4sq:B/D/Z32
To sheet 2, X01_4sq:B/D/Z26,28
To sheet 2, X43sq:2
X01_4sq:Z2
AGND
To sheet 2
OPTO_GND
SensorStop
ENDX
RefBero
Track N
Track N
Track B
Track B
Track A
Track A
C2
A8
C7
X temperature sensor
n.u.
16
18
19
15
25
22
24
21
n.u.
n.u.
n.u.
n.u.
n.u.
n.u.
To sheet 2, X01_4sq:B/D/Z20
To sheet 2, X01_4sq:B/D/Z22
To sheet 2, X01_4sq:B/D/Z18
Motor_U
Motor_W
Motor_V
X4tr/
BN4
X01_3sq
WH2
3
GN
1
n.u.
Voltage
X21_2:A9
X21_2:A10
X21_2:D11
X21_2:D12
X21_2:E9
X21_2:E10
Servo amplifier TBS250/10X1
00353443 (sq)
03009791
SIPLACE X4
Gantries 2 and 3
Actual value
X axis
not used
ModifiedStatus Date
CAD file : X02_X4-020101LD3_SH01.DWG
Orig./Repl.f./Repl.byStand.Name
Check.
Mat. no. :
Author Hi
Date
Sh.
Sh.
SIPLACE X-Series
1
2
X axis, gantry 2
Y02_X4-xxxxxxLD3
Sheet 1
See drawing
X limit switch
X reference point
X temperature sensor
XM track A, X3ba:26, n.u.
XM track A, X3ba:27, n.u.
n.u.
11
21
22
18
19
n.u.
n.u.
n.u.
14
15
16
n.u.
12
13
8
10
9
6
X track N
X track N
GND
X track B
5
3
X22ba
PE
20,23,26
2
X track A
X track B
X track A
X motor U
X motor W
X motor V
BK
WH
BN
GN
03009780
X motor
2
3
PE4
X12ba
1
03010622 (ba)
Cable carrier interface, gantry 2 or 4
1455
S/Z2 track B
29
S/Z2 track B
29
S/Z2 track B
S/Z2 track A
S/Z2 track A
S/Z2 track A
S/Z2 track B
S/Z2 track A
33
32
30
33
32
30
470Ω
R4
X12bc:3
X12bc:2
X motor W
X motor V
Z2-Dir
Spare
PE
GND
S/Z2 sensor stop
S/Z2 force sensor CS
S/Z2 force sensor CS
S/Z2 force sensor CLK
S/Z2 force sensor CLK
S/Z2 force sensor DATA
S/Z2 force sensor DATA
S/Z2 track N
S/Z2 track N
+24V
+15V
-15V
+5V
23
S/Z2 track N
S/Z2 track N
+24V
+15V
26
28
5
6
2
3
X4ba
4
7
8
9
5
6
X4bc
X motor
03038084
2
3
Head interface, gantry 2
X motor W
X motor V
0300 0901 (bc)
X motor U
X5bc:2-4 X5bc:5-7
03003361
19
11
V3
GND
Key
13
12
+24V
10
9
22
Key
Key
16
15
GND
21
20
Key
Key
+24V
V2
18
17
Key
Key
8
7
5
6
4
+15V
2
2
3
1
5
6
4
2
3
1
BN
BK
03003361-W2
03003361-W1
22
X16bc
PE
X11bc
3
4
3
PE
X12bc
1 1
(RD)
(WH)
(GNYE)
Linear motor, X axis
(BK)
34-pole34-pole
34-pole 34-pole
n.u.
Key
Key
1,4,7,17
Key
X axis
03020588
SIPLACE scanning head
Track signals, X axis
03042047
Axis unit
+15VC4
X1sq X01_2sq
B2,4; B/Z6; B8,10,12,14,16
B/D/Z22,24
PGND_1
UB_Power_OK
Servo_Enable
Servo_Ready
RefBero
OPTO_GND
See page 5-42
See page 5-57
See page 5-28
See page 5-55
See page 4-17
See page 2-24
See page 4-7
See page 4-10

2 - 13
X02_X4-020101LD3 X axis, gantry 2, SIPLACE X4 (sh. 2 of 2)
BK
GY
GY
GY
GY
BN
X4qa
Main distributor
03046225
3WH
X1qa_0V
03009786-W5
SIPLACE X4
Axis unit, gantries 2 and 3
Load connection
00353481
LSZ250/1000
Ballast resistor
Key
Key
5
6
4
03006796
n.u.
RD
BU
PK
5
62
4
1
3
2
X24
11WH
GY
YE
BN
GN
3
2
X23
-15V
+15V
AGND
+5V
-15V_Servo
+15V_Servo
GND
00353449
5V/±15V
DC/DC converter
00353450
±15V
DC/DC converter
03042047
PA1_CAN_L
n.u.
X30_1sq
1
2
3
4
5
7
6
8
9
n.u.
n.u.
n.u.
GND
Powerfail_24VDC
PA1_CAN_H
X30_2sq
2
1
3
n.u.
7
4
5
6
n.u.
8
9
n.u.
n.u.
PA2_CAN_L
GND
Powerfail_24VDC
PA2_CAN_H
X61sq
1
2
D30; Z32
D22,26; Z24
Z16;D18
X60sq
D10; Z12
+250V
PGND
X40sq
5
6
2
1
4
3
3
2
X41sq
1
4
5
2
1
X44sq
1
X43sq
2
4
X42sq
3
5
1
2
GY
GY
BK
BK
Document st.
Product st.
Function st.
1. Hi
Hi1.
Hi2.
X02_X4-020101LD3
10.07.06
10.07.06
10.07.06
11.01.2005
Copyright reserved
SIEMENS AG
Brake_Enable
Phase_U
B/D/Z20
B/D/Z26,28
B/D/Z/30
B/D/Z22
B/D/Z24
Phase_V
Z8
B/D/Z18
D8
B8
B6
D6
Z6
Z2
X01_4sq
B2
X1sq
To sheet 1, X01_2sq:D6
PGND
00353448 (sq)
Dynamic brake
DBM / 3P / 3-01
B/D/Z/32
Phase_W
Motor_W
Motor_U
Motor_V
PGND
To sheet 1, X01_2sq:B/D/Z32
To sheet 1, X01_2sq:B/D/Z30
To sheet 1, X01_2sq:B/D/Z26,28
To sheet 1, X01_3sq:4
To sheet 1, X01_3sq:3
To sheet 1, X01_3sq:2
X46sq
2
1
Z16;D18
D10
X50sq
Z4,8,20; D22
D6
Z28
D30
Vin-
Vin+
D30
Z8; D10; Z16; D18
Z20;D22
Z28
Z4; D6
X51sq
1
2
+15V
-15V
X49sq
ModifiedStatus Date
CAD file : X02_X4-020101LD3_SH02.DWG
Orig./Repl.f./Repl.byStand.Name
Check.
Mat. no. :
Author Hi
Date
Sh.
Sh.
SIPLACE X-Series
2
2
X axis, gantry 2
PGND
GNYE
GNYE
GNYE
+250V_2
PGND_2
PGND_1
+250V_1
3
2
1
X22
5
6
4
PE
GY
GY
GY
BK
BK
BK
00354626
Power supply
X11
+250V
0V
X12
X10
03009807
Backplane
Axis unit
03039648 (sq)
+250V
X01_2sq:B/D/Z18,20
B8,10,12,14,16; B/D/Z22,24
To sheet 1, X01_2sq:B2,4; B/Z6;
To sheet 1
X13
72
X21
16
18
WH
WH
GNYE
GND_Z/DP
03009786 - W1
323
X21
425
GY
BK
00354626
Power supply
9
X13
6
4
3
Vin(-)Axis
Vin(+)Axis
03009786 - W1
N40V
6+7
10+11
8+9
16+17
14+15
12+13
1+2+3+4+5
GNYE+
BK
BK
BK
BK
GY
See page 3-7
See page 4-17
See page 3-7
See page 4-7
See page 5-12
See page 5-13
See page 5-57
See page 4-17
See page 3-11

2 - 14
X03_X2X3-020101LD3 X axis, gantry 3, SIPLACE X2 and X3 (sh. 1 of 2)
X temperature sensor
n.u.
16
18
19
15
25
22
24
21
n.u.
n.u.
n.u.
n.u.
n.u.
n.u.
To sheet 2, X05_4sq:B/D/Z20
To sheet 2, X05_4sq:B/D/Z22
To sheet 2, X05_4sq:B/D/Z18
Motor_U
Motor_W
Motor_V
X4ur/
BN4
X05_3sq
WH2
3
GN
1
n.u.
Voltage
X22_2:A9
X22_2:A10
X22_2:D11
X22_2:D12
X22_2:E9
X22_2:E10
Servo amplifier TBS250/10X1
00353443 (sq)
03009811
SIPLACE X2 and X3
Actual value
X axis
not used
27
25
24
-15V
+5V
22
21
19
20
18
23
26
28
27
25
24
22
21
19
20
18
1, 11, 14, 34
Spare
GND
Z2-Dir
PE
16, 31
17
15
12
13
X motor W
X12ca:3
X motor V
X12ca:2
8
9
10
6
7
1, 11, 14, 34
16, 31
17
15
12
13
8
9
10
6
7
470Ω
R3
Track N
Track A
Track N
Track B
Track B
Track A
+5V
+5V
7
Track N
Track N
PEGND
Key
10
9
8
Test plug
Track B
Track B
Track A
Track A
GND
PE
1
4
6
5
3
2
Key
X24cc
10
9 GY RI
WHGN
RD3
+5V 7
8
6
BK
BN
YE
4
5
WH
GN
X15cc
1
2 PK
T2
RI
+5V
T1
T1
GND
T2
Screen
X5cc:8-10
redH7
X12cc:1
X motor U
PE
29 29
Carrier cable 5, 1G
X motor U
X12ca:1
2
4
3
X5ca
32
33
GND 31
30
X5cc
03038075
X motor
2
4
3
32
33
GND31
30
X-B2
26
+24V 28
27
+15V 25
24
PE
-15V 22
23
21
1, 11-19, 34
20
10
26
+24V28
27
+15V25
24
1, 11-19, 34
-15V22
23
21
20
10
X track B
X track A
X track A
X track B
V5
V4
X track N
X track N
X-B2
X reference point
X limit switch
X temperature sensor
+
LM358
1
Carrier cable 4, 1G
4
7
8
9
5
6
2
3
X4ca
4
7
8
9
5
6
X4cc
X motor
03038074
2
3
Head interface, gantry 3
X motor W
X motor V
0300 0901 (cc)
X motor U
X5cc:2-4 X5cc:5-7
03003361
19
11
V3
GND
Key
13
12
+24V
10
9
22
Key
Key
16
15
GND
21
20
Key
Key
+24V
V2
18
17
Key
Key
8
7
5
6
4
+15V
2
2
3
1
5
6
4
2
3
1
BN
BK
03003361-W2
03003361-W1
22
X16cc
PE
X11cc
3
4
3
PE
X12cc
1 1
(RD)
(WH)
(GNYE)
Linear motor, X axis
(BK)
34-pole34-pole
34-pole 34-pole
n.u.
Key
Key
1,4,7,17
Key
X axis
03020588
SIPLACE scanning head
Track signals, X axis
03042047
Axis unit
+15VC4
X1sq X05_2sq
B2,4; B/Z6; B8,10,12,14,16
B/D/Z22,24
PGND_2
UB_Power_OK
Servo_Enable
Servo_Ready
RefBero
OPTO_GND
Y03_X2X3-xxxxxxLD3
Sheet 1
See drawing
X limit switch
X reference point
X temperature sensor
XM track A, X3ca:26, n.u.
XM track A, X3ca:27, n.u.
n.u.
11
21
22
18
19
n.u.
n.u.
n.u.
14
15
16
n.u.
12
13
8
10
9
6
X track N
X track N
GND
X track B
5
3
X22ca
PE
20,23,26
2
X track A
X track B
X track A
X motor U
X motor W
X motor V
BK
WH
BN
GN
03009800
X motor
2
3
PE4
X12ca
1
03010612 (ca)
Cable carrier interface, gantry 1 or 3
1455
S/Z2 track B
29
S/Z2 track B
29
S/Z2 track B
S/Z2 track A
S/Z2 track A
S/Z2 track A
S/Z2 track B
S/Z2 track A
33
32
30
33
32
30
470Ω
R4
X12cc:3
X12cc:2
X motor W
X motor V
Z2-Dir
Spare
PE
GND
S/Z2 sensor stop
S/Z2 force sensor CS
S/Z2 force sensor CS
S/Z2 force sensor CLK
S/Z2 force sensor CLK
S/Z2 force sensor DATA
S/Z2 force sensor DATA
S/Z2 track N
S/Z2 track N
+24V
+15V
-15V
+5V
23
S/Z2 track N
S/Z2 track N
+24V
+15V
26
28
ModifiedStatus Date
CAD file : X03_X2X3-020101LD3_SH01.DWG
Orig./Repl.f./Repl.byStand.Name
Check.
Mat. no. :
Author Hi
Date
Sh.
Sh.
SIPLACE X-Series
1
2
X axis, gantry 3
+15V_Servo
(S1.2 n.u.)
ON
OFF
Axis card A364, gantry 3
A/D10; B/E8
A/D4; B/E1,2,4; C1,6
C14
C3
-15V
+5V
B/D15-17,20,21,24,25
A/C/E15,18,19,22,23
B10
B9
A9
03036027 (sb)
SensorStopA14
A2
A1
B7
A7
Inom_U
Inom_W
ENDX
B13
C13
B12
A13
Track N
Track N
Track B
A4
A1
X4sb
End signal AGND
X22_1sq
A11
A12
B11
X1sb
Track A
Track B
Track A
1
S1
2
AGND
GND
11
14
13
12
n.u.
8
9
10
6
03039648 (sq)
Backplane, axis unit
X1uo/
X05_1sq
1,4,7,17,20,23,26
2
5
3
PE
26-pole
Phase_W
+250V_2
UB_Power_OK
Brake_Enable
Servo_Enable
Servo_Ready
+15V_Servo
-15V_Servo
Phase_U
B/D/Z30
B/D/Z/32
B/D/Z18,20
B/D/Z26,28
Z12
D14
Phase_V
Inom_U
Z8
D12
D10
D8
D6
Inom_W
Z4
D4
To sheet 2, X05_4sq:B/D/Z30
To sheet 2, X05_4sq:B/D/Z32
To sheet 2, X05_4sq:B/D/Z26,28
To sheet 2, X44sq:2
X05_4sq:Z2
AGND
To sheet 2
OPTO_GND
SensorStop
ENDX
RefBero
Track N
Track N
Track B
Track B
Track A
Track A
C2
A8
C7
Document st.
Product st.
Function st.
1. Hi
Hi1.
Hi2.
X03_X2X3-020101LD3
10.07.06
10.07.06
10.07.06
11.01.2005
Copyright reserved
SIEMENS AG
S/Z2 force sensor CS
S/Z2 force sensor DATA
S/Z2 force sensor DATA
S/Z2 force sensor CS
S/Z2 force sensor CLK
S/Z2 force sensor CLK
S/Z2 sensor stop
X motor V
X motor W
X motor U
X track N
X track N
X track B
X track A
X track A
X track B
X reference point
X limit switch
X temperature sensor
OG
03046225 (qa)
+24V
Main distributor
+5V
0V
+15V
-15V
WH
PK
BU
RD
X1qa
(W1)WH1 +24V1
Cable carrier interface
03009808
(W1)
(W1)
(W2)
(W2)
14
6
5
n.u.
2
3
2
GN
BN
4
5
3
2
+5V
GND
+15V
-15V
Y distance, X2ca:30
Y-B2, X1ca:30
Y reference point, X1ca:29, X21ca:13
Y sensor stop, X21ca:11
X reference point
XM track B, X3ca:30, n.u.
XM track B, X3ca:29, n.u.
n.u.
X5qa
10
X50ca
9
8
6
7
5
GND
3
4
2
X31ca
PE1
X-B2
24
25
See page 5-41
See page 5-57
See page 5-28
See page 5-55
See page 4-11
See page 2-26
See page 4-7
See page 4-9