OM-1241-005_w - 第168页
5-7 AIX-ML T-ID 2. Layout of Sensors and Loads Elevator Section (FP-G100L) 0705-003 2.6 Elevator Section (FP-G100L) -B0427 -M02 -M03 -B0202 -B0512 -B0515 -B0421 Symbol Name Symbol Name -M02 Elevator (Lower) Driving Motor…

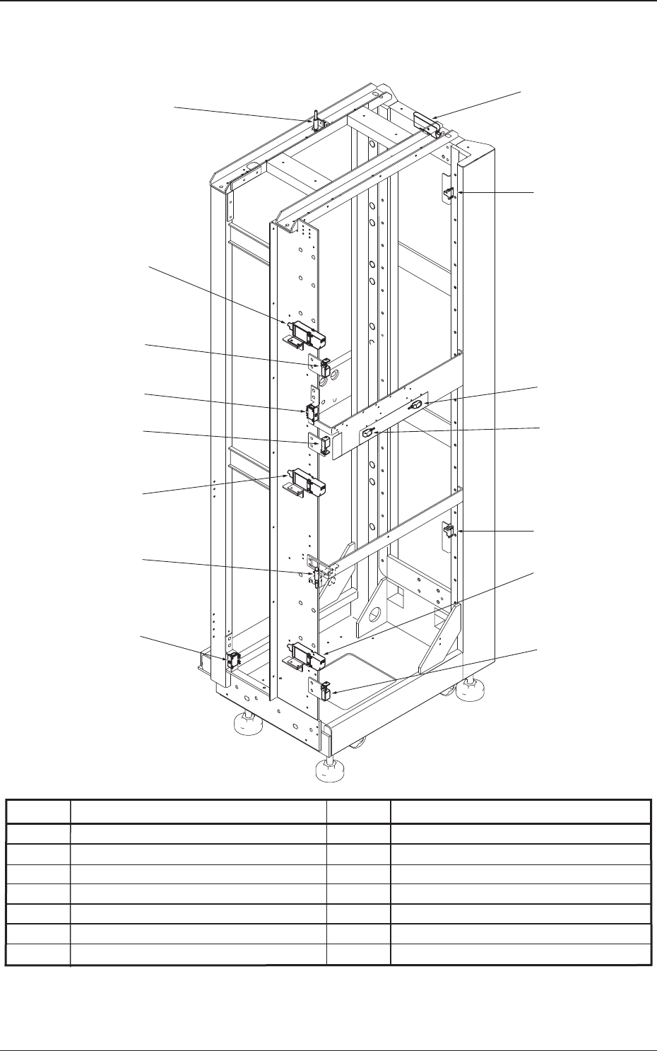
5-6
AIX-MLT-ID
2. Layout of Sensors and Loads Frame Section (FP-G100L)
0705-003
2.5 Frame Section (FP-G100L)
-S0503
-S0502
-Y0102
-S0504
-S0505
-Y0101
-Y0103
-S0519
-S0518
-B0420
-B0302
-B0420 Amp
-B0201
-S0501
-B0420
Symbol Name Symbol Name
-B0201
Elevator Limit (+)
-B0302
Elevator Limit (-)
-B0420
Ejected Pallet Detection
-B0420 Amp
Ejected Pallet Detection Amplifier
-S0501
Safety Door (Lower) Door Switch Detection
-S0502
Safety Door (Upper) Door Switch Detection
-S0503
Safety Door (Magazine) Door Switch Detection
-S0504
Maintenance Cover Open Detection LS1
-S0505
Maintenance Cover Open Detection LS2
-S0518
Missing Pallet (Return Position) Detection (Right)
-S0519
Missing Pallet (Return Position) Detection (Left)
-Y0101
Safety Door Lock (Lower)
-Y0102
Safety Door Lock (Upper)
-Y0103
Safety Door Lock (Magazine)
(Light Receiving)
(Light Emitting)

5-7
AIX-MLT-ID
2. Layout of Sensors and Loads Elevator Section (FP-G100L)
0705-003
2.6 Elevator Section (FP-G100L)
-B0427
-M02
-M03
-B0202
-B0512
-B0515
-B0421
Symbol Name Symbol Name
-M02
Elevator (Lower) Driving Motor
-M03
Elevator (Upper) Driving Motor
-B0202
Elevator U/D Approach Check
-B0421
Lower Rack Shutter (Operator Side) Closing Check
-B0427
Upper Rack Shutter (Operator Side) Closing Check
-B0512
Magazine (Lower) Type Determination
-B0515
Magazine (Upper) Type Determination

5-8
AIX-MLT-ID
2. Layout of Sensors and Loads Rack Base Section (FP-G100L)
0705-003
2.7 Rack Base Section (FP-G100L)
-B0422,-B0424
-B0428,-B0430
-B0423,-B0425
-B0429,-B0431
-Y0532
-Y0534
-B0513
-B0426
-B0516
-B0432
Symbol Name Symbol Name
-B0422
Traverse Side Rack Shutter (Lower) Opening Check 1
-B0423
Traverse Side Rack Shutter (Lower) Opening Check 2
-B0424 Traverse Side Rack Shutter (Lower) Closing Check 1
-B0425 Traverse Side Rack Shutter (Lower) Closing Check 2
-B0426 Magazine (Lower) Positioning Check
-B0428
Traverse Side Rack Shutter (Upper) Opening Check 1
-B0429
Traverse Side Rack Shutter (Upper) Opening Check 2
-B0430 Traverse Side Rack Shutter (Upper) Closing Check 1
-B0431 Traverse Side Rack Shutter (Upper) Closing Check 2
-B0432 Magazine (Upper) Positioning Check
-B0513
Magazine Stopper (Lower) Return Check
-B0516
Magazine Stopper (Upper) Return Check
-Y0532
Magazine (Lower) Rack Shutter Open/Close Valve
-Y0534
Magazine (Upper) Rack Shutter Open/Close Valve
(Lower Section)
(Upper Section)