DECAN_S1_TRM(Ver1.1_CS18.02) - 第106页
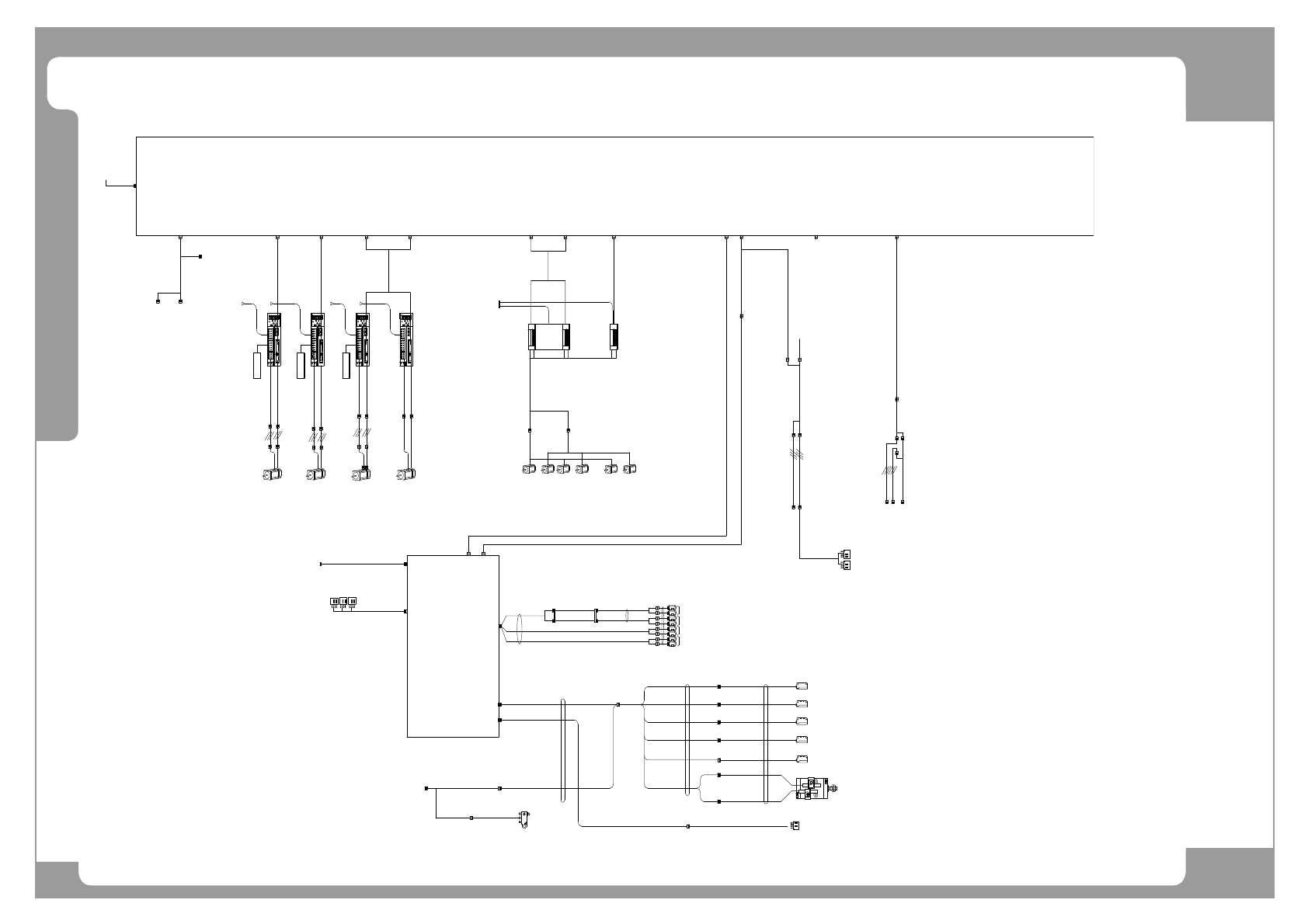
Page +$1:+$ 104 DECAN S1 Harness Wiring Diagram (3/8) CN1 PCIE X1_2M PCIE ADAPTER #1 AP5 AXIS IO BOARD #1 [AXIO#1] CN6 CN7 CN9 SM481_AX006 CN15 WB1 WB2 CN17 CB3 CB4 CN16 CB12 BW12 CB34 CN3 CN2 CN3 CN2 CN3 CN2 CN1 SM41_SC…

Page
+$1:+$
103
DECAN
S1
Harness Wiring Diagram (2/8)
FLAT CABLE
AP5 AXIS IO BOARD #1
[AXIO#1]
CN3
CN1
PCIE X1
PCIE ADAPTER #2
CONVEYOR I/F
BOARD
[CV]
CN9
CN20
AM03-010844C
INLINE BEFORE(F)
CN16
RANC-EXT
CN2(CAN)
FAREA-E
FAREA-R
J90831139A
FRONT AREA SENSOR
J6R-1
J90831759A
REAR AREA SENSOR
AM03-003542A
CN12
CN15
MC2
TH-N12
AM03-010848E
J5R-2
AM03-010852B
J10L-2
AM03-010853B
J11L-1
J6R J11L
J5R
J10L
AM03-021648A
PUMP-PWR
AM03-014907A
PUMP-ALARM
VACCUM-AIR
AM03-014853A
FANC-EXT
RAREA-R
RAREA-E
CN14
PLACE STOPPER
AFTER
BEFORE
INLINE AFTER(F)
CN8
CN22
J90831146B
JST 6P
F ERROR LAMP
F-OW-LAMP
CN6
AM03-010836C
F LOOF FAN
R LOOF FAN
F-LOOF-FAN
R-LOOF-FAN
SUB-CN1
JST 6P
V1_BASE_332
RACK-FAN
SM48C_PW147-1
SM48C_PW146
SM511_CV106-1
SM421_CV106-2
SM511_CV109-1
SM33_CV024
EP02-001745B
SM421_CV018
SM511_CV117-1
SM33_CV016
SM511_CV115-1
SM511_CV201_LT
SM511_CV003
AM03-025092A
DECAN_1TCV_006
AM03-001746A
V1+_BASE_343
BUT UP
CAN
R-FEEDER I/F
BOARD
[RFD]
F-FEEDER I/F
BOARD
CN4(PWR)
[FFD]
SACO-CN21
CN2(CAN)
CN3(CAN)
CN2(CAN)
CAN
D-S1_CA104
CN13
SM511C_FD003
RY1-4
TB2-2B
CN5
CN6
SM_FD003
SM_FD004
REAR FEEDER BASE RIGHT B/D
JK1 JK2 JK3 JK4 JK5 JK6
CN7
JK7 JK8 JK9 JK10 JK11 JK12
CN8
EXT-CN3
SM_FD006
JJ1 JJ2 JJ3 JJ4 JJ5 JJ6
SM_FD007
JJ7 JJ8 JJ9 JJ10 JJ11 JJ12
DeviceNet
PWR
DeviceNet
PWR
REAR FEEDER BASE LEFT B/D
DeviceNet
PWR
DeviceNet
PWR
EXT-CN2
CN5
CN6
EXT-CN2
CN13
DeviceNet
PWR
DeviceNet
PWR
CN7
JK1 JK2 JK3 JK4 JK5 JK6
CN8
JK7 JK8 JK9 JK10 JK11 JK12
JJ1 JJ2 JJ3 JJ4 JJ5 JJ6
JJ7 JJ8 JJ9 JJ10 JJ11 JJ12
FRONT FEEDER BASE LEFT B/D
FRONT FEEDER BASE RIGHT B/D
DeviceNet
PWR
DeviceNet
PWR
RY1-3
TB2-1B
EXT-CN3
SM511C_IT004
PS2
SM48C_IT005
+24V
24G
IT
MASTER
CH1
CH2
CH3
CH4
P-SEN-EXT
AM03-027521A
D-S1_CV016
R-DUMP.BOX1
PLACE_SOL
BUT_SOL
EDGE_SOL
ANC1_SOL
ANC2_SOL
CN5
AM03-012631B
SM511_CS111-7
CN21
CN22
AM03-012634A
SM511_CV115-2
AM03-012635B
SM511_CV115-3
AM03-021648A
SM511_CV201_LT
CN3(CAN)
SM41_CA003
AM03-010656A
CN3
SM48_CA106
AM03-025118A
FIX-ILL-R
D-S1_CA102
AM03-027090A
CN3(CAN)
CAN
HEAD IF
BOARD
[HD]
CN2(CAN)
AM03-006942A
SM48_CA104
FFD-CAN-EXT
AM03-027092A
D-S1_CA104-1
Node 2
Node 1
Node 5 : Conv
Node 6 : Fix Ill
Node 3
Master Node
AM03-027093A
HD-CAN
D-S1_FL002-13
AM03-014722B
CN4(PWR)
AM03-010841C
SM511_CV101
(PWR)CN4
PWR
CV-RFD-PWR
AM03-011245C
SM511_CV101-1
SACO-CN20/22
J90800841C
J90800842C
J90800838D
J90800839D
SM_FD003
SM_FD004
SM_FD006
SM_FD007
J90800841C
J90800842C
J90800838D
J90800839D
AM03-010871A
AM03-014385A
AM03-014629A
SM48C_IT005-1
AM03-000765A
AM03-000764A
SM_FD023
SM_FD022
AM03-000765A
AM03-000764A
SM_FD023
SM_FD022
DECAN
SM511C_FD002
AM03-014721B
AM03-010867B
FFD-PWR
AM03-010866C
SM511_FD101-1
SM511_FD101
PS3
+24V
24G
SM511C_FD004
AM03-014713A
SM511C_FD005
AM03-014714A
PS4
+24V
24G
SM511C_FD006
AM03-014716A
SM511C_FD007
AM03-014717A
조명
CN29
조명
STAGE #1
STAGE #2
AM16-001209A
SM48_VI103
OMRON
EE-1001
+
L
OUT
-
DUMP BOX SWITCH
AM03-027512A
D-S1_CS145
Changes when the front operation option mode is selected
SM33_CV010
ANC
A-OP
A-CL
J90831135A
AM03-010849B
SM511_CV109-2
CN19
14
11
SAFTY-RY
AM03-027510A (SAFETY PLC MONITOR)
D-S1_SF010
MAIN-AIR
AM03-027523A
D-S1_1TCV_005

Page
+$1:+$
104
DECAN
S1
Harness Wiring Diagram (3/8)
CN1
PCIE X1_2M
PCIE ADAPTER #1
AP5 AXIS IO BOARD #1
[AXIO#1]
CN6 CN7 CN9
SM481_AX006
CN15
WB1 WB2
CN17
CB3 CB4
CN16
CB12
BW12
CB34
CN3
CN2
CN3
CN2
CN3
CN2
CN1
SM41_SC012
CN1
SC-CN11
SC-CN12
CN4
CN4
CN4
CB1 CB2
CN5
SM481_AX008-1
#1F-FL-11
AXIO#2-CN5
SM481_VI006
#2F-FL-14
HD-CN5
HD-CN4
HD-SOL
HD-SOL
H1H4-VAC
H1H6-VAC
SM481_AX008
X-HM,PL,NL
CN2(PWR)
SACO-CN28
SM48_SC007
SACO-CN27
HD PW EXT
AM03-006922B
CN11
(1KW)
Y2
(1KW)
Y1
CN13
SM48P_MD038
SM48_PW020
CN12 CN14
Panasonic AC servo
SET
MODE
Panasonic AC servo
SET
MODE
Panasonic AC servo
SET
MODE
Panasonic AC servo
SET
MODE
D-S1_MD009
D-S1_VM004_LIQI
(750W)
X
SM48_PW019
SM48_PW018_LIQI
WD-EN
WD-PW
WD
(100W)
AM03-026998A
AM03-006961B
AM03-006960A
SM48_PW019
AM03-006960A
AM03-014671A
AM03-021389A
SM48_MD036
AM03-007203A
SM48_MD037
AM03-007204A
AM03-027031A
D-S1_MD011
AM03-027030A
D-S1_MD010
AM03-027033A
D-S1_MD012
AM03-027035A
D-S1_MD003
AM03-027029A
D-S1_MD004
AM03-027032A
D-S1_MD022_LIQI
AM03-027034A
SM511_MD023-1
AM03-012615A
AM03-019776B
SM511C_VM003-01
AM03-019778B
SM511C_VM003-02
D-S1_FL002-1.2
D-S1_FL002-3
D-S1_FL001-1.2
D-S1_FL001-3
D-S1_FL001-5
D-S1_FL001-4
SM481_VM009
AM03-007051A
SM481_VM008
AM03-007050B
AM03-010657A
SM48_AX005_LT
AM03-020589C
AX-CN9-EXT
X-SNS-EX
AM03-007046B
AM03-007047D
AM03-007482B
J91672739A
HD-PW-EXT
FL1-#15
HEAD IF CN1
FL2-#4
X_SEN.
AM03-007080C
SM481_AX006-1
HD-PW
X-SEN
HOME
ML
SM481C_AX002
AM03-015580A
AM03-024322A
SM48_1TCV_001
AM03-024336A
SM48_1TCV_002
D-S1_1TCV_004
AM03-024323A
SM48_1TCV_003
PCB-1
PCB-2
PCB-3
PCB-4
PCB5
P-UP
P-DOWN
AM03-025088A
DECAN_1TCV_009
PCB IN(OUT) SENSOR
PCB WAIT(SECOND PLACE) SENSOR
PCB WORK SENSOR
PLACE STOPPER UP/DOWN SENSOR
SECOND PLACE(PCB WAIT) SENSOR
PCB OUT(IN) SENSOR
CV-SEN
WD-HOME
WD HOME
AM03-015575B
SM421C_AX104-1
WD-HOME-EXT
P-SEN-EXT
CN3
CN4
AM03-027523A
D-S1_1TCV_005
E3S-LS3N(OMRON)
E3S-LS3N(OMRON)
E3S-LS3N(OMRON)
E3S-LS3N(OMRON)
E3S-LS3N(OMRON)
WTSA10X40-1004WS
OMRON
EE-1001
+
L
OUT
-
CN1
BOARD
SM421 AXIS SENSOR
CN10
[AX]
CN9
PWR
CN2
D-S1_AX103
Y-PL,HM,ML
SC-CN23
AM03-026634A
FRONT LEFT FEEDER UNLOCK SENSOR SET (RECEIVER1, TRANSMITTER2)
AM03-027048A
CN12
AM03-010811C
REAR LEFT FEEDER UNLOCK SENSOR SET (RECEIVER1, TRANSMITTER2)
J3R-3
J3R-4
J8L-3
J8L-4
J3R
AM03-021648A
J8L
D-S1_CS134
SM511_CS134-1
SM511_CA201_LT
SM511_AX001
AM03-011671A
SM33_CS034-2
J90831286C
AM03-027521A
D-S1_CV016
CN14
R DUMP BOX CHECK.1
R-DUMP.BOX1
AM03-027512A
D-S1_CS145
CONVEYOR I/F BD
AM03-026829A
SM511_X MOT-EX
AM03-019874B
AXIO#1-CN7-EXT
FRONT RIGHT FEEDER UNLOCK SENSOR SET (RECEIVER2, TRANSMITTER1)
REAR RIGHT FEEDER UNLOCK SENSOR SET (RECEIVER1, TRANSMITTER2)

Page
+$1:+$
105
DECAN
S1
Harness Wiring Diagram (4/8)
CN2
AP5 AXIS IO BOARD #2
[AXIO#2]
CN2
PWR
CN3
CN1
CN11 CN21
Z109 AMP
SW
Panasonic AC servo
SET
MODE
CN12
CN5
CN6
CN3 CN1
CN10
CN4 CN2
CN13
CN14
CN5
CN6
CN3 CN1 CN4 CN2
CN15
CN16
CN5
CN6
CN3 CN1 CN4 CN2
CN17
CN18
CN5
CN6
CN3 CN1 CN4 CN2
CN19
CN20
CN5
CN6
CN3 CN1 CN4 CN2
CN22 CN23
CN26
CN10 CN10 CN10 CN10
SM471 MOTOR IF B/D
[MOT]
Z87 AMP Z65 AMP Z43 AMP
Z21 AMP
CN24 CN25
AM03-014671A
[HD]
PCIE X1_3M
DECAN HEAD IF B/D
SENSORSENSORSENSORSENSOR
VAC .
VAC .VAC .
VAC .
H1 H2
H3 H4
DECAN VACUUM SENSOR B'D(H1~H10)
H5
VAC . VAC .
SENSOR
CN1
[VAC]
SENSORSENSOR
VAC .
H6 H7
H9H8
VAC . VAC .
SENSOR SENSOR
H10
VAC .
SENSOR
CN16
H1~10 VAC SOL
CN15
H1~10 BLOW SOL
CN14
CN12
CN11
CN9
SW HOME
CN13
OVER BLOW
CN10
R1~5 HOME
CN8
조명
FIDUCIAL조명 #2
CN17
FIDUCIAL조명 #1
조명
CN7 CN9
CN19CN18
Z10~Z3 HOME
CN1
PWR
PCIE ADAPTER #2
CN11 CN12 CN13 CN14 CN15 CN23 CN21 CN22
CN19 CN20CN18CN17CN16
CN1 CN6 CN2 CN7 CN3 CN8 CN4 CN9 CN5 CN10 CN24
HD-PW
AM03-007080C
Z2~Z1, R5~R1, SW HOME
Z10~Z3 HOME
Z2~Z1, R5~R1, SW HOME
CN6
CN7
CN20
COAX
조명
(50W)
SW-ENSW-PWR
Z10 Z9 Z8 Z7 Z6 Z5 Z4 Z3 Z2 Z1
R5 R4 R3 R2
R1
FRONT
PWR
AM03-026997A
AM03-010924A
AM03-010924A
AM03-010924A
SACO-CN26
AM03-007526B
AM03-007527B
AM03-007528B
AM03-007529B
AM03-007530B
AM03-027524A
AM03-014686B
AM03-007045A
AM03-026964A
PS2
+24V
24G
AM03-010924A
SIDE-A
SIDE-B
조명
OUT-AA
OUT-BA
조명
OUT-AB
OUT-BB
CN5
CN4
AM03-007484B
H10~H3(VAC,BLOW)
H4H1-VAC
H5H10-VAC
HD-SOL
HD-SOL
AXIO#1-CN5
CN5
R DRIVER
CN1
AM03-010982B
CN1 CN1 CN1 CN1
R1 R2 R3 R4 R5
DRIVER DRIVER DRIVER DRIVER DRIVER
PW PW PW PW PW
CN2 CN2 CN2 CN2 CN2
AM03-010954A
R-R-DRV-PW
AM03-026996A
SC-CN11
PWR
D-S1_FL002-14
D-S1_FL001-6.7
D-S1_FL001-8.9
D-S1_FL001-10.11
D-S1_FL001-12.13
D-S1_FL002-6.7
D-S1_FL002-8.9
D-S1_FL002-12
D-S1_FL002-10.11
D-S1_FL001-15
D-S1_FL002-15
D-S1_FL001-14
AM03-019199A
AM03-019198A
AM03-019197A
AM03-019196A
AM03-019195A
AM03-019194A
AM03-019193A
AM03-019191A
AM03-010900A
AM03-019189A
AM03-007537A
AM03-007536A
AM03-007535A
AM03-007534A
AM03-007533B
AM03-005611D
SM481_MD028_PANA
SM481_MD027_PANA
SM481_MD026_PANA
SM481_MD025_PANA
SM481_MD024_PANA
SM481_MD023-PANA
SM481_MD022_PANA
SM481_MD040-2
SM481_MD040-1
SM481_MD040
SM481_MD039
SM481_MD038
SM471_MD025
SM511_PW031
SM511_PW031
SM511_PW031
SM481_VM009-1
SM481_VM009-2
SM481_VM009-3
SM481_VM009-4
SM481_VM009-5
SM481_AX009
SM511_PW031
SM511_VM011
SM511_SC111-2 D-S1_SC121_LT
D-S1_PW124
D-S1_VM007_LIQI
SM48_PW018_LIQI
D-S1_MD015_LIQI
SM511_MD016_LIQI
SM481_AX006-1
SM481_VI006
AM03-015567A
AM03-005587C
AM03-005590C
AM03-005593D
SM471C_HD008
SM471_HD009
SM471_HD010-3
SM471_HD010-6
SM471 HOME SNS B/D
AM03-015112A
SM47C_HD003
SM481_MD021_PANA
SM481_MD020_PANA
SM481_MD019_PANA
H1H4-VAC
AM03-007482B
SM481_AX008-1
AM03-007047D
SM481_AX008
Node 3
HD-CAN
D-S1_FL002-13
AM03-007503A
SM481_HD004
AM03-007502B
SM481_HD010-11
AM03-007496B
SM481_HD006
AM03-007495C
SM481_HD005
AM03-027198A
D-S1_HD010-12
AM03-015718A
SM481C_HD007
CN22
AM03-007500B
SM481_HD010-1
AM03-007501A
SM481_HD010-2
SACO-CN28
AM03-006922B
SM48_SC007