DECAN_S1_TRM(Ver1.1_CS18.02) - 第124页
Page +$1:+$ 122 DECAN S1 Electric Power (7/8) 1 2 3 6 4 5 8 7 FROM CP1 1L2 1L1 AC220V OUTLET INLET UPS OPTION INST ALL -UPS (1600V A) 0.75mm(BLK) (RIGHT SIDE) -F AN1 -FUSE5 (AC250V ,5A) 1L1 1L2(F3) 1L1 0.75mm(BLK) 1L1 1L…

Page
+$1:+$
121
DECAN
S1
Electric Power (6/8)
NO. PART NO. PART NAME Q'TY Old No. Supply Supply LT Reference
1 AM03-014909B CABLE ASSY-MC_INPUT_220V 1
2 AM03-014907A CABLE ASSY-PUMP_PWR_ALARM-EXT 1
3 AM03-014851A CABLE ASSY-SPARK_KILLER 1
4 AM03-027769A CABLE ASSY-VACUUM_PUMP_PWR_EXT 1
5 AM03-019377A CABLE ASSY-VACUUM_PUMP_220V 1
6 AM03-014851A CABLE ASSY-SPARK_KILLER 1

Page
+$1:+$
122
DECAN
S1
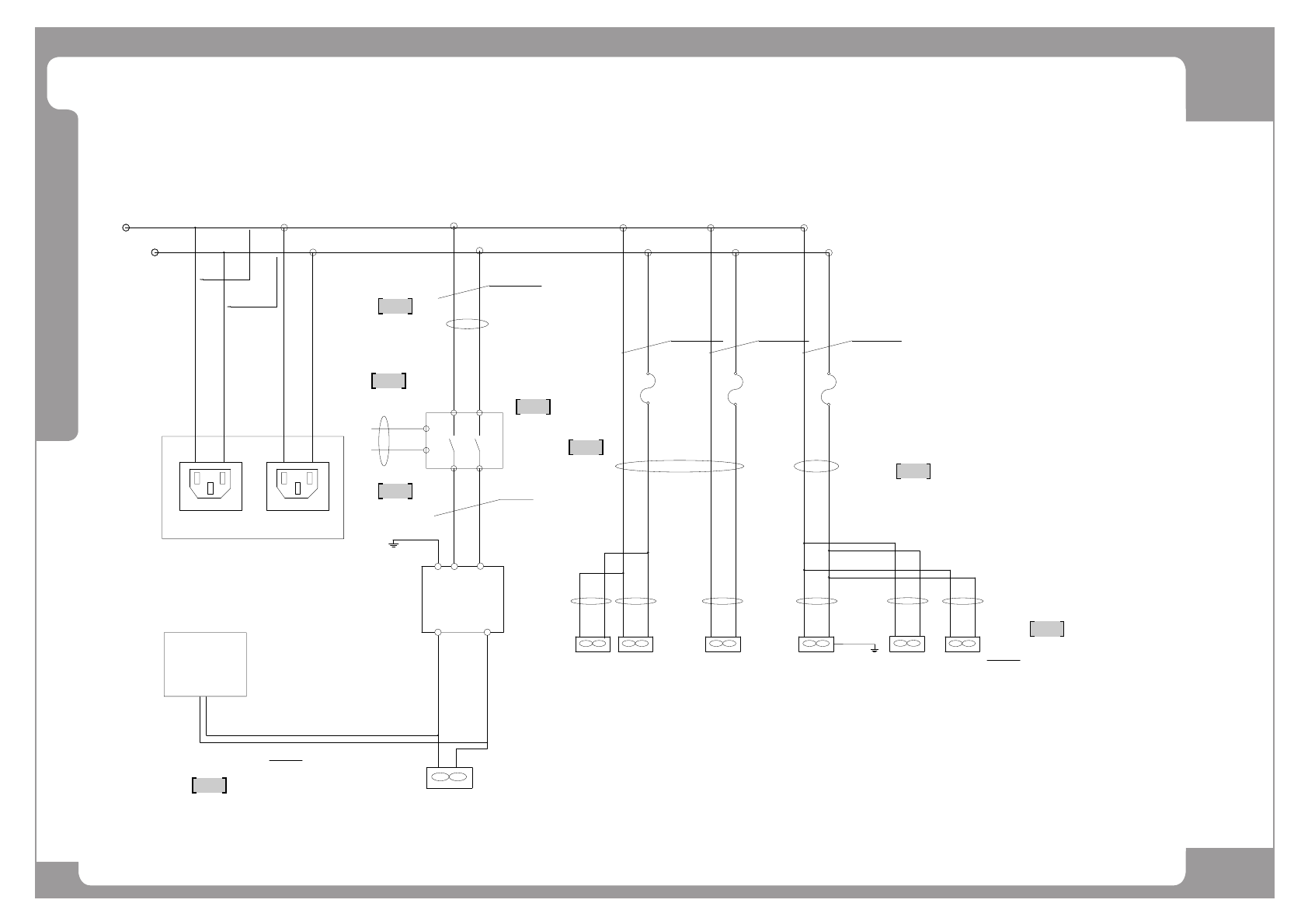
Electric Power (7/8)
1
2
3
6
4
5
8
7
FROM CP1
1L2
1L1
AC220V
OUTLETINLET
UPS OPTION INSTALL
-UPS
(1600VA)
0.75mm(BLK)
(RIGHT SIDE)
-FAN1
-FUSE5 (AC250V,5A)
1L1 1L2(F3) 1L1
0.75mm(BLK)
1L1 1L2
-FUSE3 (AC250V,5A)
-FAN2
(FRONT SIDE)
1L1
1L1
1L2(F4)
-FUSE4 (AC250V,5A)
1L2
(REAR SIDE)
-FAN3
1L2(F5)
1L21L1
SM511_PW112
SM511_PW113
-FUMP
(15W,12V)
1L1 1L2
0.75mm(BLK)
912
58
RY 11
SC-CN24
+24V
24G
AM03-014705A
14
13
SM511C_PW145
SM511C_PW145-1
TO FRONT
1.5mm(BLK)
PC RACK
POWER SUPPLY
(SM511C_PW025)
RACK FAN
0.6A(Max 1.2A)
MONITOR
0.1A
0.1A
0.1A
0.1A
AM03-011247B
0.5mm(BLK)
0.75mm(BLK)
SM-FAN00
0.75mm(BLK)
(SERVO DRIVER RACK)
-FAN4
0.1A
-FAN5
0.1A
AM03-011278B
AM03-014706A
AM03-014707B
J90833316A
SM511C_PW044
AM03-020572A
EP18-000020
MY2N-D2-DC24V
< FRONT OPERATION>
6A
1A1A1A
6A
1A1A
B
AA
B
6D
1B
A
2B
7D
B
8D
3B
6C
1C
2 2 2
SM33_PW026
2
2
DC POWER(350W)
(12V)
(GND)
AC IN
5/3.3/12/-12/VDC
PE03
2
2
* Connect when using UPS
* Connect when using UPS

Page
+$1:+$
123
DECAN
S1
Electric Power (7/8)
NO. PART NO. PART NAME Q'TY Old No. Supply Supply LT Reference
1 AM03-014706A CABLE ASSY-CONTROL_RACK_PWR 1
2 AM03-014705A CABLE ASSY-SACO_+24V_RELAY 1
3 EP18-000020 RELAY-MY2N-D2-DC24VDC 1
4 AM03-014707B CABLE ASSY-CONTROL_RACK_PWR-EXT 1
5 AM03-020572A CABLE ASSY-F_MONITOR_PW_12V 1
6 AM03-011247B CABLE ASSY-FAN_POWER 1
7 AM03-011278B CABLE ASSY-SERVO_REAR_FAN_POWER 1
8 J90833316A FAN_CABLE_ASSY SM-FAN00 1