DECAN_S1_TRM(Ver1.1_CS18.02) - 第79页
Page +$1:+$ 77 DECAN S1 Y Frame Duct NO. P ART NO. P ART NAME Q'TY Old No. Supply Supply L T Reference A AM03-027345A ASS Y ,ETC,IMS-Y CABLE DUCT TOT AL_S1 1 1 AM03-010697B ASS Y ,ELECTRIC-SM51 1 HDCB P ANA ASSY 10 …

Page
+$1:+$
76
DECAN
S1
Y Frame Duct
10
5
9
13
14
15
16
1
20
21
22
23
20
17
18
1
19
11
12
3
4
6
2
8
7
A

Page
+$1:+$
77
DECAN
S1
Y Frame Duct
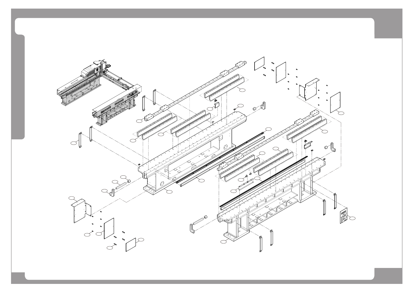
NO. PART NO. PART NAME Q'TY Old No. Supply Supply LT Reference
A AM03-027345A ASSY,ETC,IMS-Y CABLE DUCT TOTAL_S1 1
1 AM03-010697B ASSY,ELECTRIC-SM511 HDCB PANA ASSY 10 AM03-010697A
2 FC15-002060C COVER-COVER DRIVER Y 2 FC15-002060B(~#98)
3 FC18-903190 PROFILE MOUNT 4
4 FC09-007265A BRACKET-AXIS B PROTECT UPPER BKT 1
5 FC09-009434A BRACKET-Y2_CABLE_DUCT-S1 1
6 FC09-003419A BKT AXIS B 2
7 FC09-003417A PANLEL CON Y 2
8 FC09-003420A BOTTOM DUCT 2
9 HP09-000127 MANIFOLD KM11-04-08-10 2
10 FC09-003410C Y CABLE DUCT 2 AM03-010752A/ FC09-003410B
11 PM02-001450A CUSHION CABLE Y 2
12 FC09-001485A BKT CUSHION Y 2
13 FC09-001647A BKT SIDE SUB 2
14 FC09-003414A BASE DRIVER Y 2
15 EP06-000374 SERVO CONTROL-DRIVER 10 EP06-000182
16 FC09-003416B BKT DRIVER T 2 FC09-003416A
17 AM03-010695A ASSY,BOARD-SM511_HDUB_PANA_ASSY 5
18 AM03-010696A ASSY,BOARD-SM511_HDLB_PANA_ASSY 5
19 FC30-000801A PLATE AMP Z 5
20 FC29-010595A GUIDE-GUIDE_MAT_75X890 2
21
22
23
24

Page
+$1:+$
78
DECAN
S1
Y Frame
2
15
16
17
6
7
3
20
14
12
18
1
10
11
13
5
4
19
21
8
9
8
9
8
8
8
8