DECAN_S1_TRM(Ver1.1_CS18.02) - 第98页
Page +$1:+$ 96 DECAN S1 Air (5/6) D Feeder Base (DC) 4-HP06-900018 KQ2U06-00 REAR DOCKING CART ASS'Y (OPTION) 2-HP03-90001 1 AIR CYLINDER(SMC) FRONT FEEDER BASE ASS'Y (ST ANDARD) Feeder Base U2-4-6*4 4-HP06-900…

Page
+$1:+$
95
DECAN
S1
Air (4/6)
NO. PART NO. PART NAME Q'TY Old No. Supply Supply LT Reference
1 HP09-000150 SPABT-P10-R18-2N-K1-SA 1
2 HP06-900056 KQ2L04-01 1
3 HP06-900026 KQ2L12-04 1
4 HP06-000278 FITTING_QS-E-M5-4-I-C 1
5 HP06-900043 FITTING KQ2F04-01 1
6 TE07-900096 METER GZ46-K-01-C1 1
7 HP09-900112 TAR4000-04 1
8 HP06-900026 KQ2L12-04 1
9 HP06-900195 SQU06-00-W 1
10 HP09-900123 AR08-T2-DOMO-J346A 1
11 HP06-900271 BUYD06-04 1
12 HP06-900027 KQ2L04-M5 1

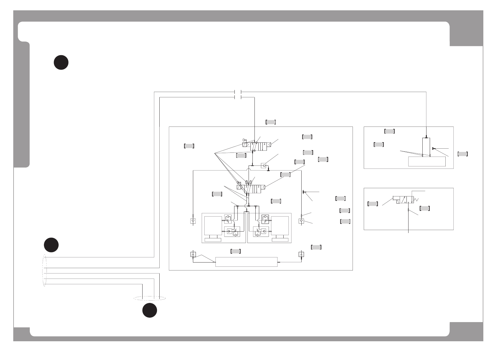
Page
+$1:+$
96
DECAN
S1
Air (5/6)
D
Feeder Base (DC)
4-HP06-900018
KQ2U06-00
REAR
DOCKING CART ASS'Y (OPTION)
2-HP03-900011
AIR CYLINDER(SMC)
FRONT
FEEDER BASE ASS'Y (STANDARD)
Feeder Base
U2-4-6*4
4-HP06-900027
KQ2L04-M5
U2-4-4*2.5
2-HP06-900300
KS-4-M5-SA34698KR
U2-4-4*2.5
U2-4-4*2.5
5-HP06-900014
KQ2L06-01
U2-4-4*2.5
2-HP06-900299
KD-M5-SA34697KR
2-HP06-900047
KQ2L04-M5
HP14-900026
K180-4E1-21-DC24V
HP14-900026
K180-4E1-21-DC24V
HP14-900092
AKH06-00
2-HP09-900162
AN101-01
HP06-900018
KQ2U06-00
HP06-900050
SQU04-06-W
3-FC14-900724
PT 1/8
U2-4-6*4
U2-4-4*2.5
HP06-900050
SQU04-06-W
U2-4-4*2.5
2-HP06-900027
KQ2L04-M5
BLOW DUMP
BLOW DUMP
BLOW DUMP
'c'
'c
'
'
d
'
'
d
'
'
c
'
'd
'
U2-4-6*4, BLACK
U2-4-6*4, YELLOW
U2-4-12*8, BLACK
U2-4-6*4, BALCK
U2-4-6*4, BLACK
Air Shower
'e'
'
e
'
'
e'
HP06-001071
FITTING
M-5ALHU-4
HP06-900054
FITTING
KQ2U04 - 00
HP06-900054
FITTING
KQ2
U04
-00
HP14-900036
SOLENOID VALVE
[V114A-5MOU]
D-A
D-E
5
1
2
3
4
2
7
10
11
12
9
8
13
14
18
16
15
17
19
6

Page
+$1:+$
97
DECAN
S1
Air (5/6)
NO. PART NO. PART NAME Q'TY Old No. Supply Supply LT Reference
1 FC14-900725 PLUG 3/8 2
2 HP06-900202 SQL10-03S 1
3 HP14-900045 VP544-5DZ-03A 1
4 HP06-900204 SQL10-02S 1
5 HP11-000058 P6010-AK-01-LA52SG 1
6 FC28-000105 STRAIGHT NIPPLE 1
7 AM03-000173 ELBOW NIPPLE 1
8 HP11-000193 VACUUM PUMP 1
9 HP06-000250 KQ2VT12-03AS 1
10 HP06-000234 KQ2R08-12 1
11 HP06-900046 KQ2R04-08 1
12 HP03-900044 CQ2B6-2-CJK2341 1
13 HP09-900110 AR1000-M5BG 1
14 FC14-900640 KPT18 1
15 HP03-001008 AQ2A12-30D 1 HP03-900009
16 HP06-900263 M-5H-4 1
17 AM02-900001 M-5HLH-4 1
18 HP14-000725 SY3120-5LZ-CJ1Z1876 1
19 HP03-900015 WTS10*30-RS2 1
20 HP14-900083 JNC4-M5 1
21 HP06-900027 FITTING [KQ2L04-M5/PL4-M5M/SQL04-M5] 1 HP06-900047
22 J90561001A BDAS6X5-1A-ZC153A2 1
23 HP14-900085 3-SS4-M5MA 1
24 HP03-900053 TPC1B16-30 1
25 HP03-900040 CM2C32-50 1
26 2-HP06-900056 KQ2L04-01 1
27 HP14-900088 AS1211F-M5-04 1
28 HP06-900264 KQ2L08-01AS 1
29 HP09-900158 AN101-01 1