JX-300LED-Rev02.PDFA - 第49页
- 44 - NOT E ( 注記 ) #0 1. ... FO R LI G H T I N G U N IT FO R SO L D E R はん だ認識照明 用 RE COG N I T IO N REF.NO NO T E PA RT NO D E S C R I P T I O N 品 名 Qty 1 40 0-4 919 4 OCC A SM ( L) OCC 組(L ) 1 2 4 0 0- 4 90 6 8 C A ME…

- 43 -
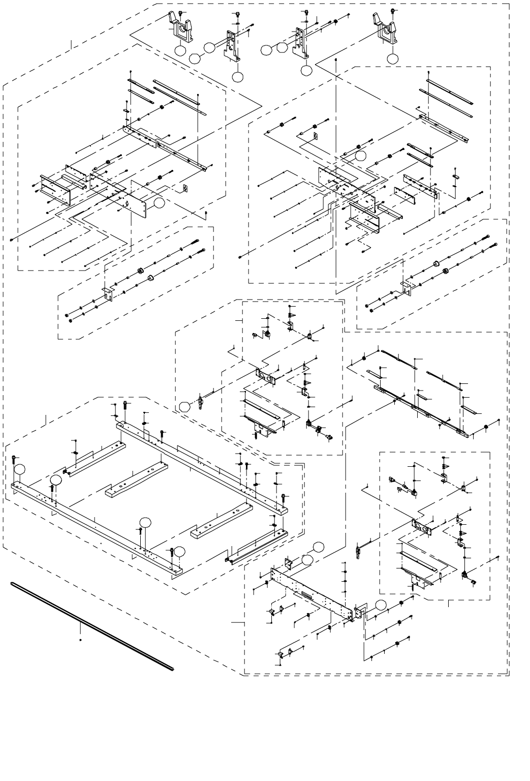
22.OCC COMPONENTS
OCC 関係
5
14
15
10
4
3
13
9
11
12
28
27
44
A
45
20
25
42
29
31
32
33
34
35
37
39
40
A
41
21
22
23
24
30
36
38
19
18
17
16
2
43
26
1
8
6
7
B
46
50
48
49
47
B

- 44 -
NOTE( 注記 ) #01....FOR LIGHTING UNIT FOR SOLDER はんだ認識照明用
RECOG NITION
REF.NO NOTE PART NO D E S C R I P T I O N
品 名
Qty
1 400-49194 OCC ASM (L)
OCC 組(L)
1
2 400-49068 CAMERA ASM (L)
カメラ組(L)
(1)
3 400-21162 CAMERA BRACKET L
カメラブラケット L
(1)
4 SL-6041292-TN SCREW
座金付き六角穴ボルト
(2)
5 EA-9500B01-00 CABLE BAND 束線バンド (1)
6 SM-3030552-TN SCREW M3 L=5
丸ねじ M 3 L =5
(2)
7 400-39609 CAMERA-LENS ASM
カメラーレンズ組
(1)
8 400-78050 CAMERA BRACKET
カメラブラケット
(1)
9 WS-0210002-KN SPRING WASHER M2 ばね座金 M 2 (4 )
10 SM-3040652-TN SCREW M4 L=6
丸ねじ M 4 L =6
(2)
11 SL-6052092-TN SCREW
座金付き六角穴ボルト
(4)
12 SM-1030501-SC SCREW M3 L=5
皿小ねじ M 3 L =5
(1)
13 WP-0220301-SC WASHER M2
平座金みがき丸 M 2
(4)
14 SM-6020602-TN SCREW M2 L=6
六角穴ボルト M 2 L =6
(4)
15 400-45998 CCD BRACKRT
CCD ブラケット
(1)
16 HX-0029400-00 FIXED BASE
固定ベース
(1)
17 SM-4040601-SC SCREW M4X0.7 L=6
なべ小ねじ M 4 X 0.7 L =6
(1)
18 L154E-821-0A0 CA LIGHT ASM
CA ライト組
(1)
19 SL-6030692-TN SCREW M3 L=6
座金付き六角穴ボルト M 3 L =6
(3)
20 400-01225 HOLD RUBBER
ホールドラバー
(1)
21 400-14042 PRISM
プリズム
(1)
22 400-01982 OCC A LIGHT P.C.B ASM OCC 角度照明基板組 (1)
23 400-14043 PRISM BASE
プリズムベース
(1)
24 SL-6030892-TN SCREW M3 L=8
座金付き六角穴ボルト M 3 L =8
(4)
25 E1143-721-000 WOOLEN CLOTH PAPER
搬送カバー ラシャペーパ(CE)
(1)
26 400-15962 OCC LABEL
OCC ラベル
(1)
27 L154E-821-000 LIGHT BRACKET
ライト ブラケット
(1)
28 SL-6044092-TN SCREW
座金付き六角穴ボルト
(2)
29 400-13949 LIGHT FILTER U SUPPORT
ライトフィルタ U サポート
(1)
30 E1038-871-000 PLATEN LOCK CAM SCREW
プラテン ロックカム スクリュウ
(2)
31 400-15847 OCC COLLAR
OCC カラー
(1)
32 SL-6030892-TN SCREW M3 L=8
座金付き六角穴ボルト M 3 L =8
(1)
33 SM-1020301-SN SCREW
皿ねじ M 2 L =3
(4)
34 400-43896 LENS FILTER
レンズフィルター
(1)
35 400-13948 GUIDE PLATE
ガイドプレート
(1)
36 400-13944 ROTARY BASE
ロータリーベース
(1)
37 SM-1030501-SC SCREW M3 L=5
皿小ねじ M 3 L =5
(3)
38 400-01979 OCC C LIGHT P.C.B ASM
OCC 同軸照明基板組
(1)
39 SL-4030691-SC SCREW M3 L=6 座金付きなべ小ねじ M 3 L =6 (2 )
40 400-44028 MIRROR BOX
ミラーボックス
(1)
41 SL-6030692-TN SCREW M3 L=6
座金付き六角穴ボルト M 3 L =6
(3)
42 118-04606 RUBBER PLUG
布台防振ゴム
(10)
43 400-43895 LIGHT DIFFUSER
ライトディフューザ
(1)
44 400-14037 BEAM SPRITTER
ビームスプリッタ
(1)
45 400-13943 PRISM COVER
プリズムカバー
(1)
46
#01
400-32433 LOW HEAD SCREW M3_10
低頭六角穴付きボルト
(4)
47
#01
400-01982 OCC A LIGHT P.C.B ASM
OCC 角度照明基板組
1
48
#01
HX-0035400-0D BASE PARTS
基板パーツ
4
49
#01
400-14043 PRISM BASE
プリズムベース
1
50
#01
HX-0035400-0G BOARD PARTS
基板パーツ
4

- 45 -
23.PWB CONVEYOR COMPONENTS (1)
基板搬送関係(1)
1
7
8
69
71
72
78
78
G
B
C
D
B
C
76
76
5
6
6
4
3
70
74
73
2
9
11
11
9
11
9
9
11
10
7
8
10
E
E
8
D
5
8
11
11
68
67
75
F
13
14
15
14
15
I
A
16
17
18
17
18
19
20
20
19
22
21
24
23
25
27
28
29
28
27
29
30
27
31
28
32
54
35
36
37
38
39
40
41
42
41
42
44
43
48
49
50
51
46
45
52
53
33
48
49
50
51H
H
45
46
46
47
55
56
57
58
59
60
61
62
63
64
60
61
63
64
63
64
52
33
39
36
35
32
50
55
46
45
51
38
49
48
53
45
46
51
50
49
48
43
44
42
41
42
41
40
37
54
46
47
12
34
34
30
28
31
27
30
28
31
27
I
G
77
77
7
7
43
43
79 80
9
11
65
62
66
26
F
A