JM-100_维修调整作业书 - 第165页
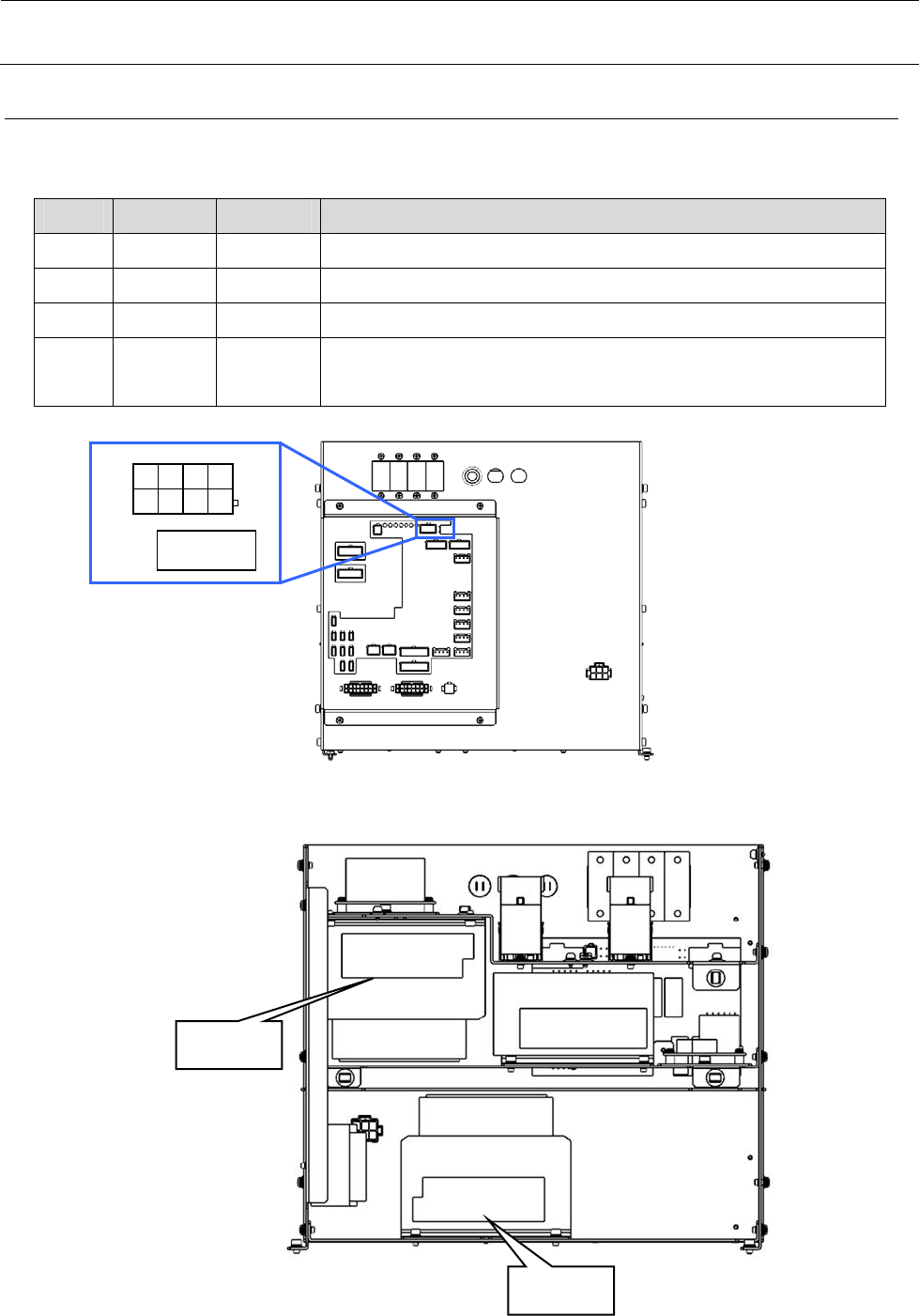
维修调整要领书 1 1-20 ・ DC 电源输出电压调整,要通过电气装置单元的 CN2 和 PS3, 4 进行。 (测量位置参见图 1 1-2-2-3- 1 ) ・ DC 电源输出电压调整为规定调整值,需要拆下开关电源盖子, 调整各 DC 电源的输出电压可调电阻。 注1 . 调整可调电阻时,电压值不要调整到规定调整值以外。 注2 . 切勿与有调整指示的电源以外的 GND(**RTN)接通。 (不要连接) 注意

维修调整要领书
11-19
11-2-2-3 DC 电源电压级别的调整方法
表 11-2-2-3-1.DC 电源电压级别设定
No. 电源规格 电源标记 电源单元测量端子
1 +48V PS3 PS3 电压输出端子+V(+48V) 及-V(+48VUNRTN)
2 +24V PS1 CN2 1 针(+24V)及 5针(+24VRTN)
3 +24V PS2 CN2 2 针(+24VZ)及 6 针(+24VZRTN)
4 +24V PS4 PS4 电压输出端子
+V(+24V FR BANK) 及-V(+24VRTN FR BANK)
图 11-2-2-3-1 监视器接口 CN2 的配置及针脚定义
图 11-2-2-3-2 PS3 和 PS4 的配置
CN2
8 7 6 5
4
3 2 1
PS4
PS3

维修调整要领书
11-20
・ DC 电源输出电压调整,要通过电气装置单元的 CN2 和 PS3, 4 进行。(测量位置参见图 11-2-2-3-1)
・ DC 电源输出电压调整为规定调整值,需要拆下开关电源盖子,
调整各 DC 电源的输出电压可调电阻。
注1.调整可调电阻时,电压值不要调整到规定调整值以外。
注2.切勿与有调整指示的电源以外的 GND(**RTN)接通。(不要连接)
注意

维修调整要领书
11-21
11-2-3 电气装置单元 C(弯脚固定单元选项)
电气装置单元 C 实际安装在底座框架的装置后面。
图 11-2-3-1-1~图 11-2-3-1-2、图 11-2-3-2-1~图 11-2-3-2-2 为外观图,图 11-2-3-1-3、图 11-2-3-2-3
为构成图。
图 11-2-3-1-4、图 11-2-3-2-4 为电气装置单元 C 连接图。
电气设备单元 C,控制用继电器,导体,电路保护器,CX 驱动器,CY 驱动器,CTZ 驱动器供给 AC
电源。
11-2-3-1 电气装置单元 C (ST) 构成
图 11-2-3-1-3 电气装置单元 C (ST)
图 11-2-3-1-2 电气装置单元 C (ST) 的正面图图 11-2-3-1-1 电气装置单元 C (ST) 的外观
2
1
3
4