P-198-001e - 第254页
MODEL TCM-3600J-2 0109-001 252 1 2 3 4 5 6 1 1 1 2 1 3 1 0 7 8 9 6 3 64 64 7 1 7 2 7 3 7 0 5 1 6 8 5 9 6 9 16 16 1 7 1 8 1 9 15 15 30 30 31 31 26 26 5 5 35 35 43 43 47 47 39 39 1-1 1-1 2 3 4 9 8 7 65 65 6 6 6 7 6 5 66 66…

MODEL TCM-3600J-2
0109-001
251
Key No. PART No. PART NAME Q’ty REMARKS
NOTE
12-2
1 630 041 9498 COVER 1 703R--01B-117
2 630 041 9504 COVER 1 703R--01B-118
3 630 065 7333 COVER 1 703R--01B-119
4 630 064 8775 COVER(MR) 1 703R--01B-120
5 411 113 9109 SCR TRS 5X10 8 M5X10 TRS
7 630 071 7563 COVER(RFR) 1 703R--01B-123
9 411 113 9109 SCR TRS 5X10 6 M5X10 TRS
10 630 064 8799 COVER(DUCT) 1 703R--01B-133
11 630 064 8782 COVER(FSL) 1 703R--01B-126
14 411 113 9109 SCR TRS 5X10 9 M5X10 TRS
21 630 094 5805 COVER 1 703R--01B-128
22 630 070 3863 COVER(RBC) 1 703R--01B-129
23 630 070 3870 COVER(RBC) 1 703R--01B-130
24 630 094 5812 COVER 1 703R--01B-131
28 411 113 9109 SCR TRS 5X10 33 M5X10 TRS
29 630 073 0203 COVER(RS) 2 703R--01B-134
30 411 113 9109 SCR TRS 5X10 8 M5X10 TRS
31 630 064 9581 COVER 1 703R--01B-138
32 411 113 9109 SCR TRS 5X10 4 M5X10 TRS
41 411 141 4305 WASHER V 6X12.5X1.6 3 FW6
42 411 141 3001 WASHER SPR 6 3 SW6
43 630 000 7893 BOLT,HEX-SCT 3 M6X20

MODEL TCM-3600J-2
0109-001
252
1
2
3
4
5
6
11
12
13
10
7
8
9
63
64
64
71
72
73
70
51
68
59
69
16
16
17
18
19
15
15
30
30
31
31
26
26
55
35
35
43
43
47
47
39
39
1-1
1-1
2
3
4
9
8
7
65
65
66
67
65
66
66
67
67
52
53
54
32
32
33
33
34
34
71
71
72
72
73
73
26
26
26
26
26
36
37
38
23
23
24
24
25
25
23
24
25
23
23
24
25
23
24
25
25
11
11
12
12
13
13
27
27
28
29
29
27
28
29
32
33
34
20
21
22
22
71
72
73
73
60
60
61
62
20
21
22
20
21
22
46
45
44
20
20
21
21
22
22
40
41
42
48
49
50
56
57
58
58
27
28
29-1
27
28
28
29-1
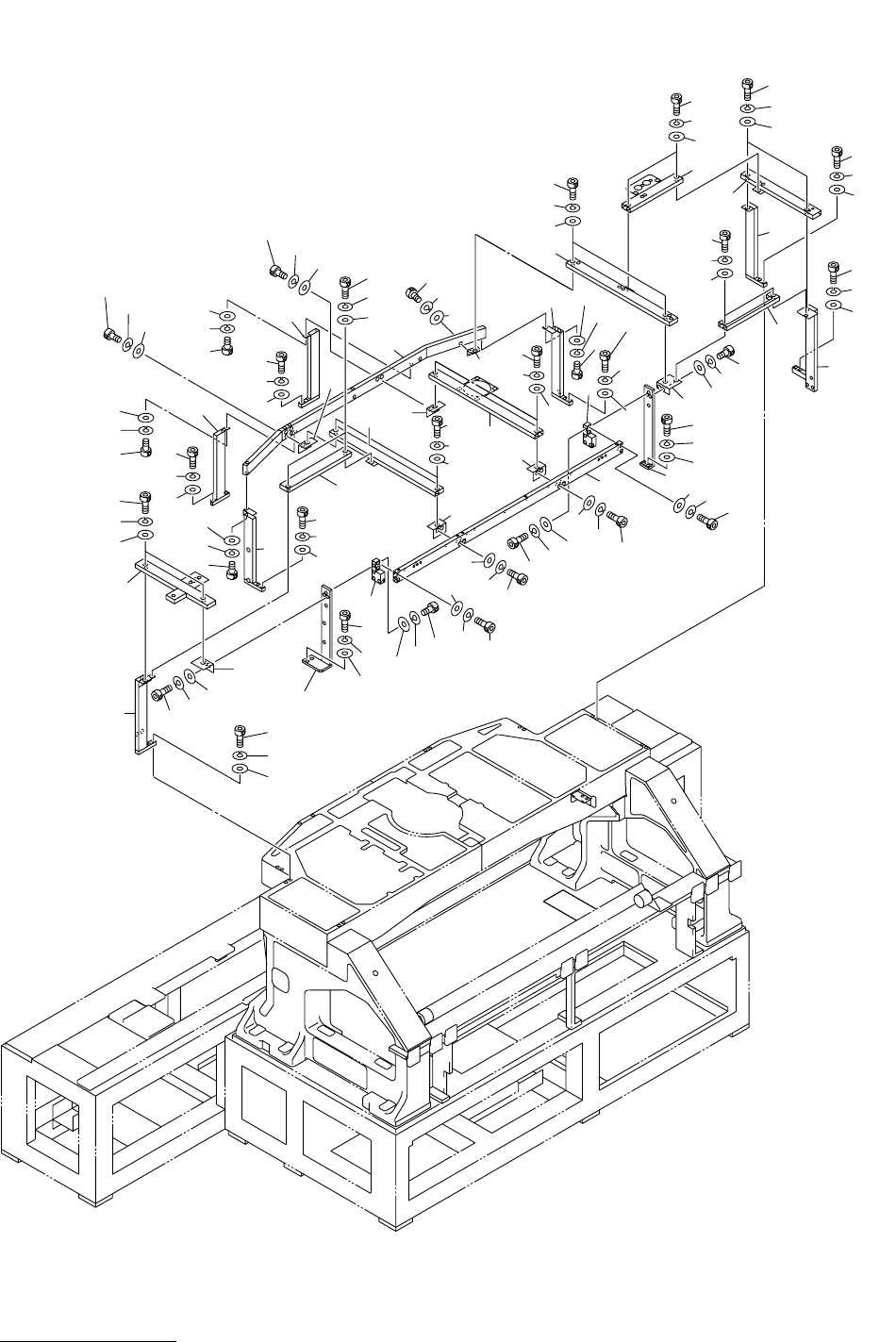
Fig.12-3
TCM-3600J-2
ࠞࡃㇱ COVER SECTION
Fig.12-3 ㇱࡈࡓ Upper Frame

MODEL TCM-3600J-2
0109-001
253
Key No. PART No. PART NAME Q’ty REMARKS
NOTE
12-3
1 630 064 8560 FRAME 1 703R--01B-001
1 -1 630 064 8553 FRAME 1 703R--01B-002
2 411 141 4305 WASHER V 6X12.5X1.6 4 FW6
3 411 141 3001 WASHER SPR 6 4 SW6
4 630 000 7909 BOLT,HEX-SCT 4 M6X25
5 630 038 9555 BLOCK 1 703R--01B-003
6 630 038 9548 BLOCK 1 703R--01B-004
7 411 141 4107 WASHER V 5X10X1 4 FW5
8 411 141 6705 WASHER SPR 5 4 SW5
9 630 000 7800 BOLT,HEX-SCT 4 M5X35
10 630 099 5497 FRAME 1 703R--01B-005
11 411 141 4107 WASHER V 5X10X1 4 FW5
12 411 141 6705 WASHER SPR 5 4 SW5
13 630 000 7756 BOLT,HEX-SCT 4 M5X12
15 630 052 6127 FRAME 1 703R--01B-018
16 630 051 2700 STAY 1 703R--01B-014
17 630 058 0389 STAY 1 703R--01B-015
18 630 058 0747 STAY 1 703R--01B-016
19 630 058 0754 STAY 1 703R--01B-017
20 411 141 4107 WASHER V 5X10X1 4 FW5
21 411 141 6705 WASHER SPR 5 4 SW5
22 630 000 7749 BOLT,HEX-SCT 4 M5X10
23 411 141 4305 WASHER V 6X12.5X1.6 8 FW6
24 411 141 3001 WASHER SPR 6 8 SW6
25 630 000 7909 BOLT,HEX-SCT 8 M6X25
26 630 050 6785 BRACKET 4 703R--01B-021
27 411 141 4107 WASHER V 5X10X1 8 FW5
28 411 141 6705 WASHER SPR 5 8 SW5
29 630 000 7756 BOLT,HEX-SCT 4 M5X12
29 -1 630 000 7749 BOLT,HEX-SCT 4 M5X10
30 630 064 8614 FRAME 1 703R--01B-019
31 630 064 8621 FRAME 1 703R--01B-020
32 411 141 4107 WASHER V 5X10X1 4 FW5
33 411 141 6705 WASHER SPR 5 4 SW5
34 630 000 7749 BOLT,HEX-SCT 4 M5X10
35 630 075 8641 STAY 1 703R--01B-026
36 411 141 4305 WASHER V 6X12.5X1.6 2 FW6
37 411 141 3001 WASHER SPR 6 2 SW6
38 630 000 7909 BOLT,HEX-SCT 2 M6X25
39 630 051 2571 BRACKET 1 703R--01B-029
40 411 141 4107 WASHER V 5X10X1 2 FW5
41 411 141 6705 WASHER SPR 5 2 SW5
42 630 000 7756 BOLT,HEX-SCT 2 M5X12
43 630 064 8638 FRAME 1 703R--01B-027
44 411 141 4107 WASHER V 5X10X1 2 FW5
45 411 141 6705 WASHER SPR 5 2 SW5
46 630 000 7749 BOLT,HEX-SCT 2 M5X10
47 630 058 0297 FRAME 1 703R--01B-028
48 411 141 4107 WASHER V 5X10X1 2 FW5
49 411 141 6705 WASHER SPR 5 2 SW5