M2series_ServiceManual_e.pdf - 第89页

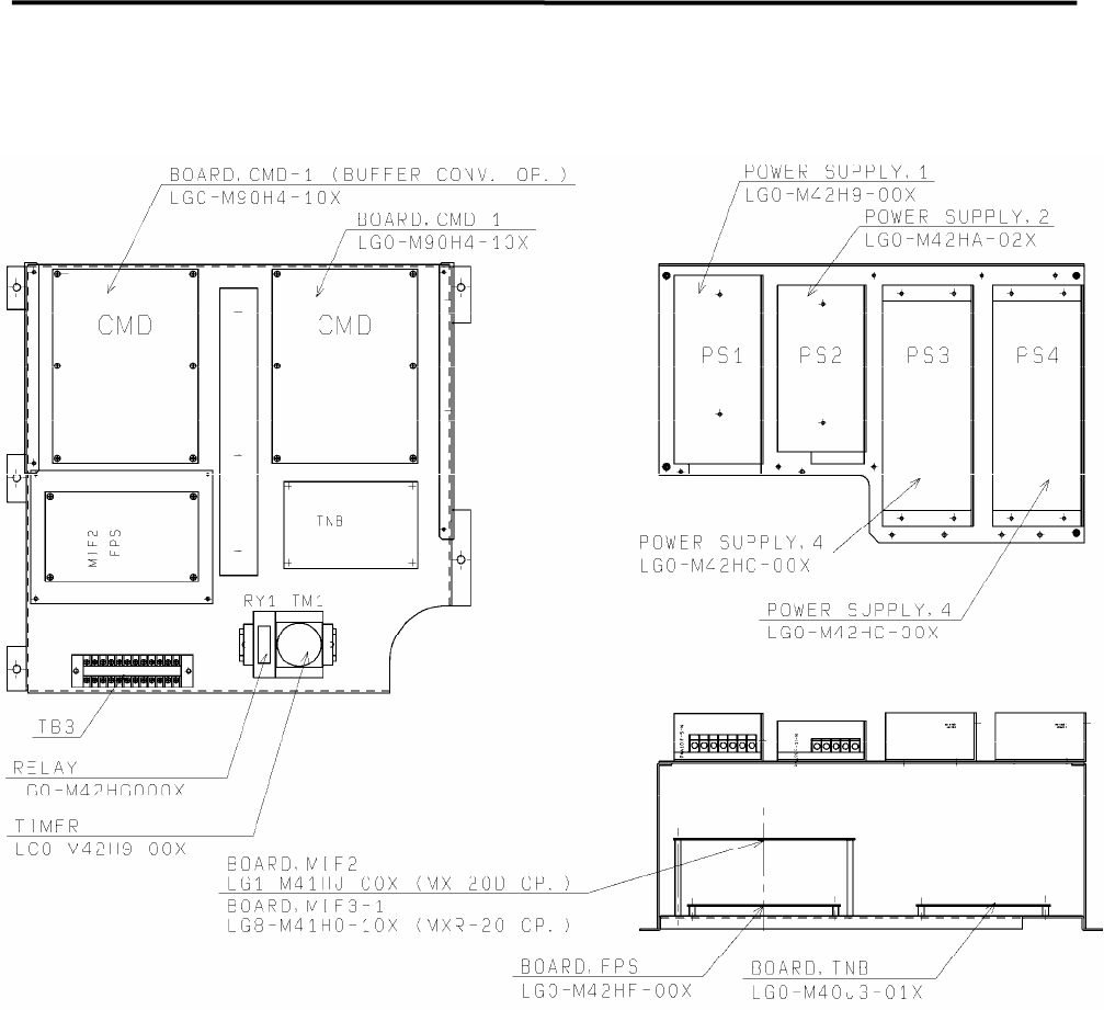
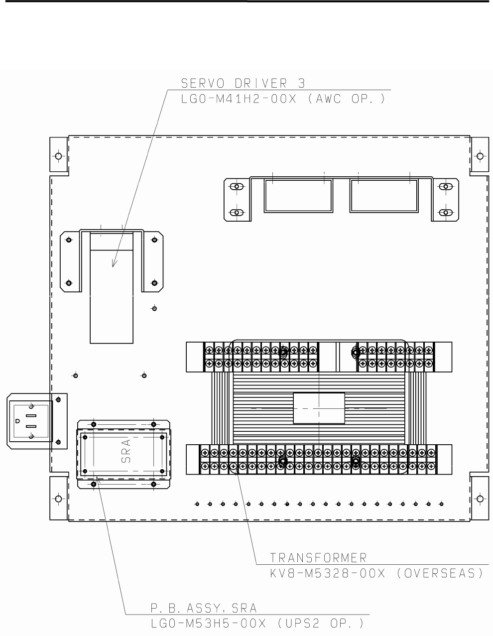
5 Materials 5-15 OP BOX ASSY.

100%1 / 92