00192809-01 - 第78页
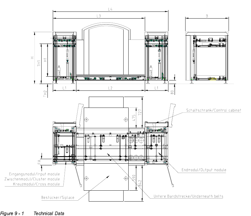
9 T echnical Data User M anual V 1.15 - Productivity Lift Software version V 40. 1 1 Edition 01/2001 70 0DFKLQH W\SH,QSXWPRGXO H&OXVWHU PRGXOH &URVVPRG XOH Length - Lif tL1 540 mm Wid thB 1045 m m High …

User Manual V 1.15 - Productivity Lift 9 Technical Data
Software version V 40.11 Edition 01/2001
69
7HFKQLFDO'DWD
,QVWDOODWLRQDQGRSHUDWLRQLQVWUXFWLRQV
For the installation and operation of the productivity lift the following advises have to be observed:
1. Area load allowed for undercover 0,2 t/m²
2. Room temperature 15°C to 35°C
3. Humidity in the area 30% to 70%
4. Average humidity ≥ 45%

9 Technical Data User Manual V 1.15 - Productivity Lift
Software version V 40.11 Edition 01/2001
70
0DFKLQHW\SH,QSXWPRGXOH&OXVWHUPRGXOH&URVVPRGXOH
Length - LiftL1 540 mm
WidthB 1045 mm
High H 1200 mm with TH1 930 mm
ShuttleH1 760 mm
Weight - Lift 212 kg
Width adjustment - Shuttle transport stepper motor
Width adjustment - Top conveyor manual
0DFKLQHW\SH2XWSXWPRGXOH
Length - LiftL1 540 mm
WidthB 1045 mm
High H 1200 mm with TH1 930 mm
ShuttleH1 760 mm
Weight - Lift 212 kg
Width adjustment - Shuttle transport stepper motor
Width adjustment - Top conveyor manual
8QGHUIORRUFRQYH\RUIRU6LSODFHVKRUWIRU6
Length lower beltL2 1590 mm
Total module lengthL3 2135 mm
Total unit lengthL4 2675 mm
Weight 90 kg
Width adjustment stepper motor

User Manual V 1.15 - Productivity Lift 9 Technical Data
Software version V 40.11 Edition 01/2001
71
8QGHUIORRUFRQYH\RUIRU6LSODFHORQJIRU+6
Length lower beltL2 2385 mm
Total module lengthL3 2925 mm
Total unit lengthL4 3465 mm
Weight 120 kg
Width adjustment stepper motor
$OOPDFKLQHW\SHV
Transport high - aboveTH1 930 mm ± 30 mm
Transport high - belowTH2 170 mm ± 30 mm
PCB width 50 - 217 mm
PCB length 50 - 460 mm
PCB edging during transport 3mm
Interface inlet Siemens, SMEMA or other
Interface outlet Siemens, SMEMA or other
Automatic tracking none, at inlet or at outlet
Power supply 230V / 50Hz or 110V / 60Hz AC
Power input 0,4 kW
Secondary voltage 24V DC
Fuse protection 1x 6,3A
Compressed air supply 5 bar and 10 l/min.
Control unit CAN/MM101 and CAN/MS1
Operation via control desk CAN/P50
Software version V 40.11