SM482_PLUS_TRM(Ver2.4_CS20.07) - 第193页
Page +$1:+$ 193 Power Block Diagram(5/8) SM482 PLUS NO. P ART NO. P ART NAME Q'TY Old No. Supply Supply L T Reference 1 AM03-020595B CABLE ASSY -TB-FS/CP/MC;B 1 SM48_PW1 13_L T 2 AM03-006954A CAB LE ASSY -AC_RELA Y_…

Page
+$1:+$
192
SM482
PLUS
Power Block Diagram(5/8)
AM03-020599B
AM03-020595B
AM03-014499B
AM03-014495A
AM03-014497A
AM03-014501B
AM03-014592A
AM03-019692A
AM03-014482B AM03-014484B
AM03-014485B
AM03-014489B
AM03-014497A
AM03-014501B
AM03-020585A
AM03-011481A
DC POWER(400W)
(+)
PE06
(-)
AC IN
24VDC
DC POWER(400W)
(-)
24VDC
(+)
AC IN
PE07
DC POWER(800W)
(-)
24VDC
(+)
AC IN
DC POWER(800W)
(-)
24VDC
(+)
AC IN
PE06-1 PE07-1
2
2
2
2
2
2
2
PS4
REMOTE CON
PS3
REMOTE CON
M
WD-AXIS
DRIVER
A
A
+
-
B
B
2~
-M1
2
CN13
F FEEDER
IO B/D
CN13
R FEEDER
IO B/D
REMOTE CON
PS3
REMOTE CON
PS4
1L2
1L1
AC220V
FROM CP1
1L21L1
-FUSE1 (AC250V,10A)
SC-CN1
+24V 24G
+24V
24G
-FUSE2 (AC250V,10A)
1L1 1L2
-PS2
24G
-PS3
+24V
-PS1
SM48C_PW111
T1L
A1
A2
(CONN)
A5
A3
A6
SM48C_PW201
SM48C_PW112
+24V
SM48_PW113_LT
A2
A1
A4A3
T2L
(CONN)
SC-CN2
SM48C_PW202
SM48C_PW027
-PS4
Z-DRV-PWR
B1 B2
B4 B5
B3
B6
TO FRONT
0.75mm(BLK)
0.75mm(BLK)
0.75mm(BLK)
A4
RY1
7
8
0.5mm(BLK)
0.8mm(BLK)
0.5mm(BLK)
0.5mm(BLK)
A1
A2
A5
A3
A6
B1 B2
B4 B5
B3
B6
A4
A2
A1
A4A3
1,2
3,4
1,2
3,4
SM48C_FD004
SM48C_FD005
FEEDERBASE
24G
TO REAR
FEEDERBASE
6A(Max 16A)
6A(Max 16A)
6A(Max 16A)
SM482_PW018-1
0.5mm(BLK)
A1
B1
GENERAL IO/R STEP/CONV STEP
5
3
1A
1B
4
6
2A
2B
SM48C_FD006
SM48C_FD007
SM48C_PW112
SM48C_PW202
01
02
01
02
B1
B2
B3
B4
B3
B4
B1
B2
-TB2
05
01
SM48_FD002_LT
05
01
SM48C_FD003
4A1B
6D
F1A
F1-C
9C
F2-C
10C
4B 5B5A
F1B
F2A
F2B
4C
9A
(SM482_PW000_LT)
1
4
6
2
3
5
7
9
10
8
11
12
13 14
15
16

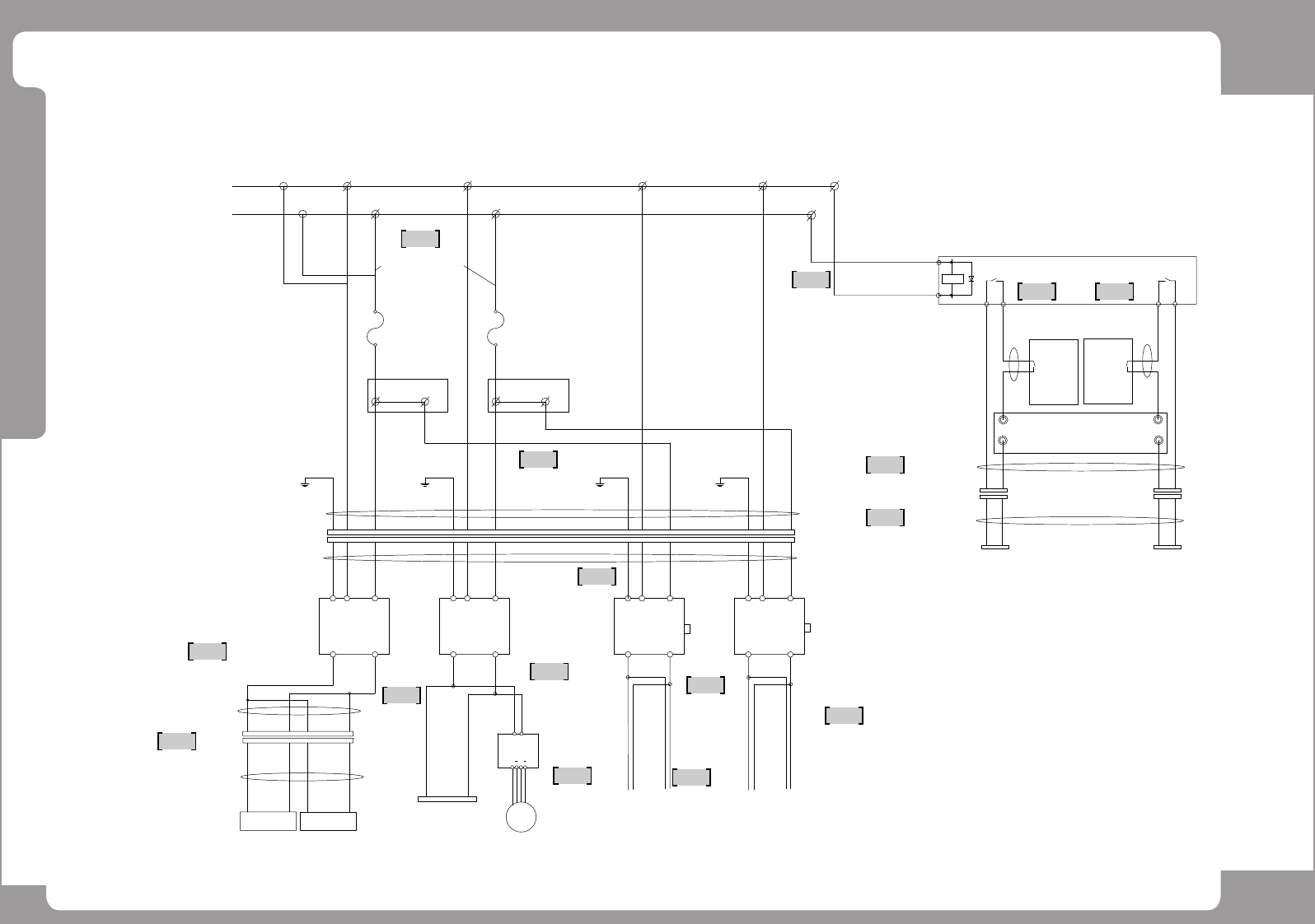
Page
+$1:+$
193
Power Block Diagram(5/8)
SM482
PLUS
NO. PART NO. PART NAME Q'TY Old No. Supply Supply LT Reference
1 AM03-020595B CABLE ASSY-TB-FS/CP/MC;B 1 SM48_PW113_LT
2 AM03-006954A CABLE ASSY-AC_RELAY_ POWER 1 SM48N_PW005
3 AM03-005702A CABLE ASSY-MON_DISTRIB_ADAPTOR 1 SM471_PW068
4 AM03-005519A CABLE ASSY-USB_HUB_ADAPTOR 1 SM471_PW067
5 AM03-006899A CABLE ASSY-PS1_2_AC_POWER_T1L 1 SM48_PW111
6 AM03-006906A CABLE ASSY-PS1_PS2_PW_T1L 1 SM48_PW201
7 AM03-006955A CABLE ASSY-PS3_4_AC_POWER_T2L 1 SM48N_PW112
8 AM03-006956A CABLE ASSY-PS3_PS4_PW_T2L 1 SM48N_PW202
9 AM03-006901A CABLE ASSY-PS1_2_DC_POWER_T1L 1 SM48_PW120
10 AM03-006896A CABLE ASSY-Z_DRV_PW 1 SM48_PW027
11 AM03-006902A CABLE ASSY-PS3_4_DC_POWER_T2L 1 SM48N_PW103

Page
+$1:+$
194
SM482
PLUS
Power Block Diagram(6/8)
AM03-020599B
AM03-020125A
AM03-006960A
AM03-006961B
DRIVER
PE15
U
-M2
3~
M
WV E
L3
SERVO
r
-SD1
L1
t
DRIVERDRIVER
PE16
U
-M3
3~
M
VW E V
M
3~
-M4
U
PE17
W E
SERVO
r
-SD2
L2L1
t
SERVO
t
L3
r
-SD3
L2 L3L1
2
DRIVER
E
PE18
-M5
3~
M
W
UV
L2
-SD4
r
L1
t
SERVO
L3
50W
SW-AXIS
750W
X-AXIS
1KW
Y2-AXIS
1KW
Y1-AXIS
2 2
2
2
22L1
22L3
22L2
22T
22R
(SM48_PW018-01)
0.75mm(BLK)
(SM48_PW019) (SM48_PW020)
-MC1
3Ø AC220V
22R
22S
22T
(LC1D096BD-9A,440V)
0.75mm(BLK) 0.75mm(BLK)
FROM CP2
2.5A(Max 19A)
2.5 mm (BLK)
2.5 mm (BLK)
17C17B
21B
19C
21C
15B
13B
15C
13C
18B
22B
20B
16B
14B13A
15A
17A
19A
21A
1
3
5
2
4
6
(SM482_PW000_LT)
1
2
3 4