ThermoFlex-Manual - 第32页
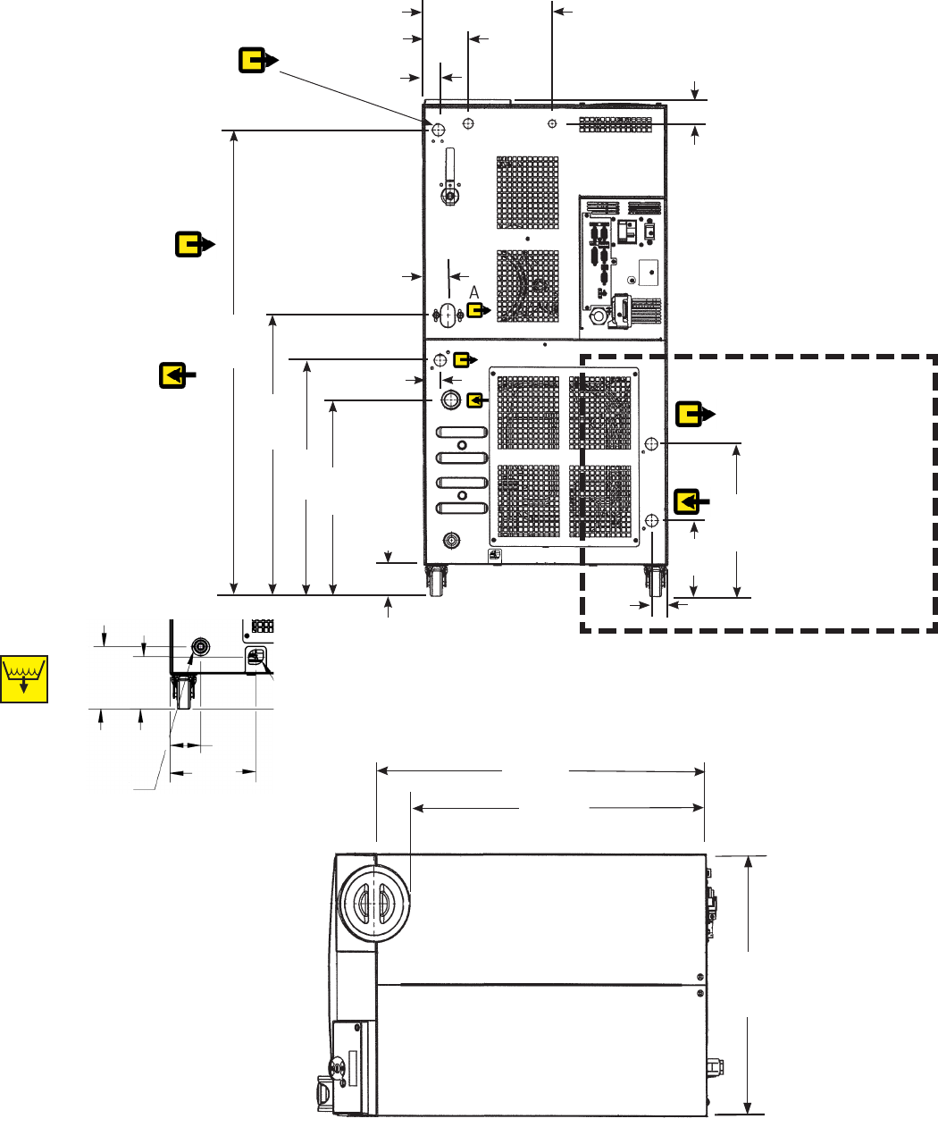
Section 2 2-14 ThermoFlex Thermo Scientific • Thermo Fisher Scientic reserves the right to change specications without notice. ThermoFlex3500/5000 Dimensions (inches/centimeters) Side View 24 1 / 2 " 62.2 3 7 / 16 …

Section 2
ThermoFlex 2-13
Thermo Scientific
• Thermo Fisher Scientic reserves the right to change specications without notice.
3
3
/
8
"
8.5
Water-cooled only
Facility water
connections
1/2" FNPT
Cast Bronze
1
1
/
4
"
3.2
2"
5.0
1
5
/
8
"(2)
4.2
5"*
12.7
12
13
/
16
"*
32.5
1
3
/
16
"(2)
3.0
4
1
/
16
"*
10.2
16
1
/
8
"*
40.9
5
1
/
8
"
13.1
13
1
/
8
"*
33.3
27
5
/
16
"*(3)
69.4
2
1
/
2
"*
6.4
See Section 3 for
additional plumbing
information.
* Add 1/8" (3 mm) for SEMI chillers, see Section 5.
DRAIN
Process uid drain
(1/4" FNPT) Riton
Process discharge uid connection
1/2" FNPT Cast Bronze
Process uid return connection
1/2" FNPT Stainless Steel
Optional 1/2" Auxiliary and
1/4" Auto-Rell Ports
Rear View
Shipping crate dimensions (approximate):
23” (58 cm) wide
36” (91 cm) tall
40” (102 cm) deep
Top View
19
3
/
16
"
48.8
17
1
/
8
"
43.6
22"
55.9
ThermoFlex2500
Process discharge for chillers with
optional ow transducer or
Internal pressure regulator adjustment
(Optional)
1/2" FNPT Stainless Steel

Section 2
2-14 ThermoFlex
Thermo Scientific
• Thermo Fisher Scientic reserves the
right to change specications without
notice.
ThermoFlex3500/5000
Dimensions
(inches/centimeters)
Side View
24
1
/
2
"
62.2
3
7
/
16
"
8.7
30
3
/
4
"
78.0
38
7
/
8
"*
98.7
1"
2.5
17
3
/
16
"
43.7
Front View
* Add 1/8" (3 mm) for SEMI
chillers, see Section 5.

Section 2
ThermoFlex 2-15
Thermo Scientific
• Thermo Fisher Scientic reserves the right to change specications without notice.
~ Shipping crate dimensions
26" (66 cm) wide
48" (122 cm) tall
47" (119 cm) deep
Top View
23
1
/
2
"
59.7
19
1
/
4
"
48.8
26
3
/
8
"
67.0
Rear View
Water-cooled only
Process discharge connection
Cast Bronze
A P 3, P 4 pumps 3/4" FNPT
B P 1/MD1, P 2/MD2, T 1 pumps
1/2" FNPT
Process return connection
Stainless Steel
P 3, P 4 pumps 3/4" FNPT
P 1/MD1, P 2/MD2, T 1 pumps
1/2" FNPT
See Section 3 for additional
plumbing information.
Facility water
connections
Cast Bronze 1/2"
FNPT
(3/4" FNPT for
ThermoFlex3500-
5000 with P 3 or P 4
pump)
1
15
/
16
"
5.0
1
1
/
4
"
3.2
1
7
/
8
"(2)
4.7
1
1
/
4
"(2)
3.2
6"*
15.2
12"*
30.5
1
5
/
16
"
3.4
15
3
/
8
"*
39.1
18
1
/
2
"*
46.9
22"*
55.9
36
1
/
2
"*
92.7
2
1
/
2
"*
6.4
* Add 1/8" (3 mm) for SEMI chillers, see Section 5.
B
A
P3 and P4 Flow control
(Optional)
Optional 1/2" Auxiliary and
1/4" Auto-Rell Ports
3
9
/
16
"
9.1
10
3
/
16
"
25.9
ThermoFlex3500/5000
Process discharge for chillers with
optional ow transducer and P1,
P2 & T1 pumps
or
Internal pressure regulator
adjustment (Optional P1/MD1,
P2/MD2 & T1 only)
1/2" FNPT Stainless Steel
DRAIN
3
11
/
16
"
9.4
4
3
/
8
"
11.2
6
1
/
8
"
15.5
2
3
/
16
"
5.6
1/4" FPT Process Drain
Stainless Steel with
Brass plug
(P3, P4 pumps only)
1/4" MPT Riton connector
(P1/MD1, P2/MD2 and TU1
pumps only)