PTS-XPFL-05.1JE - 第257页
MTU-AII(TRAY SHUTTLE) 2/3 MTU-AII(トレイ シャトル) 2/3 2QGGTA000204 No. Drg.No. & Code No. QTY Description Rating Materials Remarks 番号 図番 & コード番号 個 数 品名 規格 材質 備考 1 GGTF2110 1 COVER カバー FE 2 H5274A 2 BOLT, HEX SOCKET ボル…

AA
AA
143
115
91
112
113
144
56
94
97
90
90
87
89
85
89
85
88
84
80
83
81
83
80
81
84
95
95
79
107
109
106
103
110
111
106
107
103
102
83
99
101
98
132
133
119
118
122
121
120
73
76
73.1
77
51
69
72
53
52
65
58
57
61
62
63
55
52
62
49
47
44
42
39
38
36
37
34
33
41
2
3
1
5
25
28
26
29
31
32
18
16
6
14
15
12
11
7
9
10
13
13
22
19
23
20
45
46
46
50
114
87
86
82
59
4
123
124
131
130
117
116
96
78
96
108
104
105
88
86
82
108
104
105
100
71
70
73.3
40
43
35
48
54
55
54
53
64
60
30
27
17
8
21
24
145
36
129
146
146
148
147
148
147
151
150
149
151
150
149
92
73.4
73.2
73.3
73.4
13.1
153
154
152
078$,,ࢺࣞࢩࣕࢺࣝ
078$,,75$<6+877/(
2QGGTA000204
256
PTS-XPFL-05.1JE

MTU-AII(TRAY SHUTTLE) 2/3
MTU-AII(トレイ シャトル) 2/3 2QGGTA000204
No. Drg.No. & Code No. QTY Description Rating Materials Remarks
番号 図番 & コード番号 個数 品名 規格 材質 備考
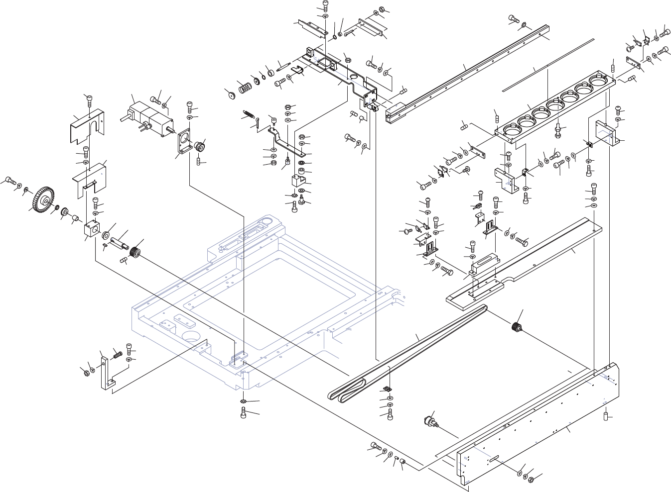
1 GGTF2110 1 COVER カバー FE
2 H5274A 2 BOLT, HEX SOCKET ボルト 六角穴 M03X006 FE
3 GGTF2100 1 COVER カバー FE
4 H5274A 2 BOLT, HEX SOCKET ボルト 六角穴 M03X006 FE
5 W1021A 2 WASHER, LOCK ワッシャ スプリング 3M/M FE
6 DETR4561 1 SHAFT シャフト FE
7 DETR4570 2 KEY キー FE
8 H5288A 1 BOLT, HEX SOCKET ボルト 六角穴 M04X010 FE
9 W1022A 1 WASHER, LOCK ワッシャ スプリング 4M/M FE
10 W1092N 1 WASHER ワッシャ WSSB 13-5-2 OT
11 DNTR4290 1 GEAR ギヤ OT
12 DNTR4310 1 COLLAR カラー FE
13 H4436W 2 BEARING, MINIATURE ベアリング ミニチュア LF-1910ZZ OT
13.1 DETR4140 1 HOLDER, BEARING ホルダ ベアリング FE
14 DETR4550 1 PULLEY プーリ OT
15 N4019A 1 SCREW, HEX SOCKET SET ネジ 六角穴止め M03X004 クボミサキ FE
16 GGTF2000 1 HOLDER, BEARING ホルダ ベアリング FE
17 H5295A 2 BOLT, HEX SOCKET ボルト 六角穴 M04X035 FE
18 W1022A 2 WASHER, LOCK ワッシャ スプリング 4M/M FE
19 GGTF1072 1 BLOCK, STOPPER ブロック ストッパ FE
20 H5302A 2 BOLT, HEX SOCKET ボルト 六角穴 M05X020 FE
21 W1023A 2 WASHER, LOCK ワッシャ スプリング 5M/M FE
22 GGTF1150 1 BOLT, POSITIONING ボルト 位置決め FE
23 N1091L 1 NUT, HEX ナット 六角 M08 3シュ(3カ クロ) FE
24 W1025A 1 WASHER, LOCK ワッシャ スプリング 8M/M FE
25 SAM4030 1 MOTOR モータ OT
26 H5288A 2 BOLT, HEX SOCKET ボルト 六角穴 M04X010 FE
27 W1022A 2 WASHER, LOCK ワッシャ スプリング 4M/M FE
28 GGTF1091 1 BKT, MOTOR BKT モータ FE
29 H5289A 2 BOLT, HEX SOCKET ボルト 六角穴 M04X012 FE
30 W1022A 2 WASHER, LOCK ワッシャ スプリング 4M/M FE
31 DETR4620 1 GEAR ギヤ OT
32 N4019T 2 SCREW, HEX SOCKET SET ネジ 六角穴止め M03X005 クボミサキ FE
33 GGTF1880 2 PIN, CLAMP ピン クランプ FE
34 DBTN1290 2 SPRING スプリング FE
35 GGTF1870 2 WASHER ワッシャ FE
36 S1031A 4 CIR-CLIP サークリップ STW 10 OT
37 H4287T 2 BEARING, SLIDE ベアリング スライド LM05UU OT
257
PTS-XPFL-05.1JE

MTU-AII(TRAY SHUTTLE) 2/3
MTU-AII(トレイ シャトル) 2/3 2QGGTA000204
No. Drg.No. & Code No. QTY Description Rating Materials Remarks
番号 図番 & コード番号 個数 品名 規格 材質 備考
38 W1003L 2 WASHER ワッシャ WSSB10-5-5 OT
39 GGTF1041 2 PIN, CLAMP ピン クランプ FE
40 N10795 2 NUT, HEX ナット 六角 M03(3カ クロ) FE
41 W1021A 2 WASHER, LOCK ワッシャ スプリング 3M/M FE
42 GGTF1032 1 HOOK フック FE
43 H5287A 3 BOLT, HEX SOCKET ボルト 六角穴 M04X008 ゼンネジ FE
44 W1022A 3 WASHER, LOCK ワッシャ スプリング 4M/M FE
45 GGTF1222 1 PLATE プレート FE
46 H20974 2 PIN, SPLIT ピン 割 ゚2X10 OT
47 GGTF2170 1 DOG ドッグ FE
48 H5274A 2 BOLT, HEX SOCKET ボルト 六角穴 M03X006 FE
49 W1021A 2 WASHER, LOCK ワッシャ スプリング 3M/M FE
50 S3250M 1 SPRING スプリング AWT3-20 OT
51 GGTF2050 1 LEVER レバー FE
52 K1127K 2 CAM FOLLOWER カムフォロア CF 4R-A OT
53 N10796 2 NUT, HEX ナット 六角 M04(3カ クロ) FE
54 W1022A 2 WASHER, LOCK ワッシャ スプリング 4M/M FE
55 W1043A 2 WASHER, FLAT ワッシャ 平 4W- 4 FE
56 H2094E 2 PIN, PARALLEL ピン 平行 5゚X10 OT
57 GGTF1061 1 BLOCK ブロック FE
58 H5282A 2 BOLT, HEX SOCKET ボルト 六角穴 M03X030 FE
59 N10795 2 NUT, HEX ナット 六角 M03(3カ クロ) FE
60 W1010A 2 WASHER, CONICAL ワッシャ 皿 M- 3-L FE
61 DETR4390 1 PIN ピン FE
62 DETR4400 2 WASHER ワッシャ FE
63 H43838 1 BEARING, NEEDLE ベアリング ニードル TA 810Z OT
64 N10796 1 NUT, HEX ナット 六角 M04(3カ クロ) FE
65 W1022A 1 WASHER, LOCK ワッシャ スプリング 4M/M FE
69 GGTS2382 1 FIXTURE, CLAMP 金具 クランプ FE
70 H5275A 2 BOLT, HEX SOCKET ボルト 六角穴 M03X008 FE
71 W1021A 2 WASHER, LOCK ワッシャ スプリング 3M/M FE
72 W1040R 2 WASHER, FLAT ワッシャ 平 3M/MX0.5X7(1W-3)(3カ クロ) FE
73 2MGGTA015201 1 BKT BKT FE
73.1 H5289A 3 BOLT, HEX SOCKET ボルト 六角穴 M04X012 FE
73.2 H5263B 1 BOLT, HEX SOCKET ボルト 六角穴 M04X016 FE
73.3 W1022A 4 WASHER, LOCK ワッシャ スプリング 4M/M FE
73.4 W1043A 4 WASHER, FLAT ワッシャ 平 4W- 4 FE
76 GGTF1250 1 GUIDE, RAIL ガイド レール OT
258
PTS-XPFL-05.1JE