PTS-XPFL-05.1JE - 第161页
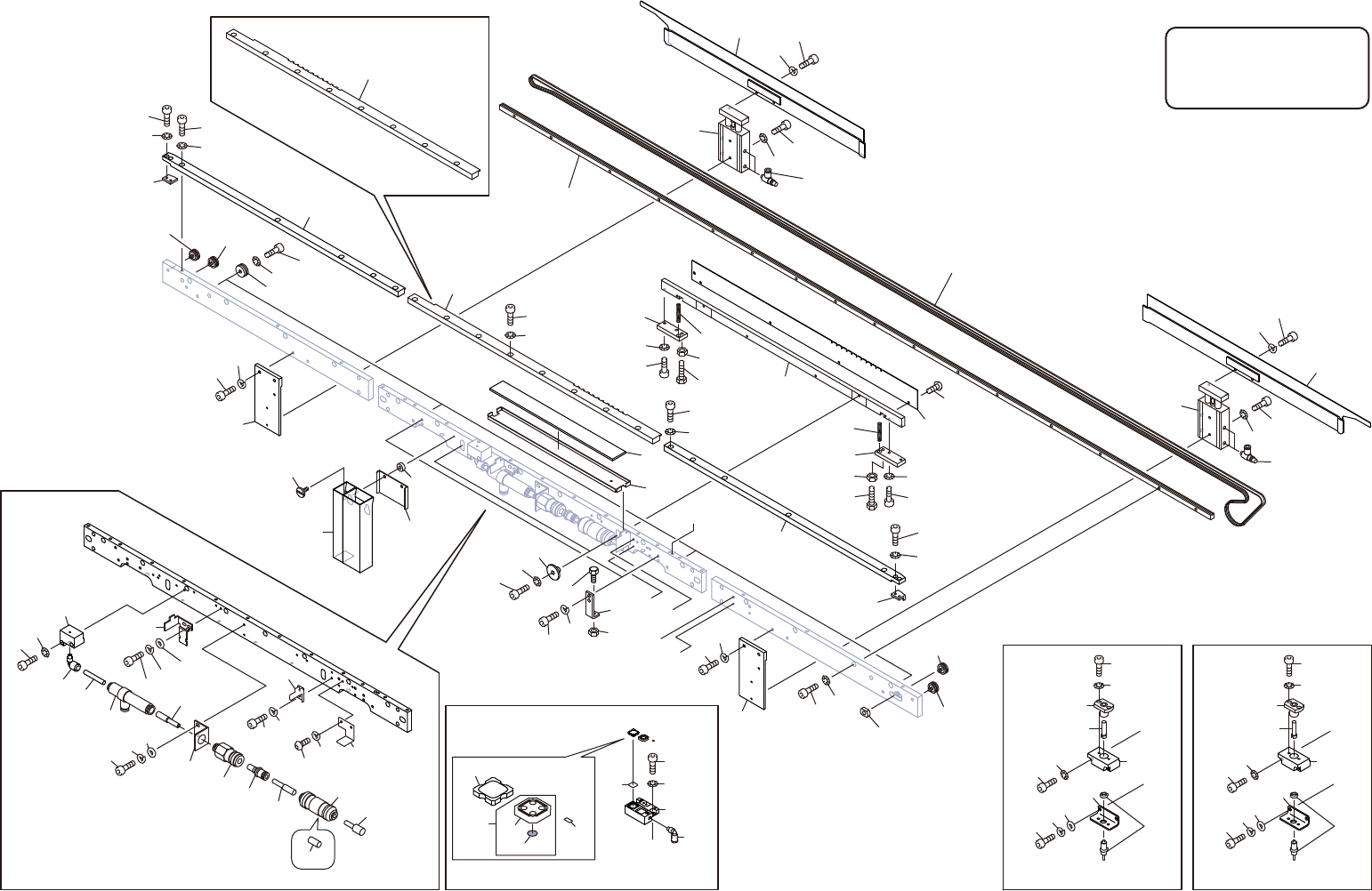
CONVEYOR 1/8 コンベア 1/8 2QGGCA000102 No. Drg.No. & Code No. QTY Description Rating Materials Remarks 番号 図番 & コード番号 個 数 品名 規格 材質 備考 1 GGQC2254 1 BLOCK ブロック PL 2 H5280A 2 BOLT, HEX SOCKET ボルト 六角穴 M03X020 FE 3 W1010A…

REVERSE FLOW
5()(5(1&(6,'(
ᇶ‽ഃ
AA
BB
0($685(RI=
AA
BB
CC
CC
+<%5,'&$/,%5$7,21
DD
EE
*/8(237,21
DD
EE
24
25
46
75
79
82
34
26
73
89
27
86
77
36
30
81
48
84
2
11
12
20
23
13
18
14
13
15
17
19
8
9
5
4
61
62
49
50
52
31
63
53
71
51
56
60
59
58
55
33
72
70
65
68
67
64
46
75
78
48
74
41
39
37
37
43
38
70
78
80
76
81
80
77
76
66
85
69
32
35
28
29
40
47
54
57
47
83
1
3
6
7
10
22
21
87
88
87
88
74.1
43.1
38.1
45
90
91
92
93
94
95
96
97
98
99
100
101
107
108
105
106
109
114
115
116
110
112
16
16.1
16.2
11.1
120
121
122
123
124
125
126
127
128
129
130
131
ࢥࣥ࣋
&219(<25
2QGGCA000102
160
PTS-XPFL-05.1JE

CONVEYOR 1/8
コンベア 1/8 2QGGCA000102
No. Drg.No. & Code No. QTY Description Rating Materials Remarks
番号 図番 & コード番号 個数 品名 規格 材質 備考
1 GGQC2254 1 BLOCK ブロック PL
2 H5280A 2 BOLT, HEX SOCKET ボルト 六角穴 M03X020 FE
3 W1010A 2 WASHER, CONICAL ワッシャ 皿 M- 3-L FE
4 GGQC2260 1 BKT BKT FE
5 H5275A 2 BOLT, HEX SOCKET ボルト 六角穴 M03X008 FE
6 W1021A 2 WASHER, LOCK ワッシャ スプリング 3M/M FE
7 W1042A 2 WASHER, FLAT ワッシャ 平 4W- 3 FE
8 GGQC2071 1 BKT BKT FE
9 H5275A 2 BOLT, HEX SOCKET ボルト 六角穴 M03X008 FE
10 W1021A 2 WASHER, LOCK ワッシャ スプリング 3M/M FE
11 Y3079R 1 UNION, ELBOW ユニオン エルボ KQ2L06-M6 OT
11.1 N2033X 1 NIPPLE ニップル KQ2N06-99 OT
12 A4002N 1 EJECTOR エジェクタ VRL50-060608 OT
13 N2033W 2 NIPPLE ニップル KQ2N06-08 OT
14 S5026M 1 SOCKET ソケット KK3S-06E OT
15 H31280 1 PLUG プラグ KK3P-06H OT
16 GGQC2420 1 HOLDER 受け FE
16.1 K5255H 2 SCREW, HEX SOCKET BUTTON 小ネジ 六角穴ボタン M03X005 FE
16.2 W1021A 2 WASHER, LOCK ワッシャ スプリング 3M/M FE
17 H30268 1 FILTER フィルタ ZFC200-08 OT
18 A40905 1 ELEMENT エレメント I-63S-A OT
19 S1059M 1 SILENCER サイレンサ AN203-KM08 OT
20 GGQC2270 1 BKT BKT FE
21 H5275A 2 BOLT, HEX SOCKET ボルト 六角穴 M03X008 FE
22 W1021A 2 WASHER, LOCK ワッシャ スプリング 3M/M FE
23 W1042A 2 WASHER, FLAT ワッシャ 平 4W- 3 FE
24 DEQC0360 1 GUIDE ガイド FE
25 DEQC0350 1 GUIDE ガイド FE
26 GGQC1303 1 GUIDE, BOARD ガイド 基板 FE
27 H5273T 2 BOLT, HEX SOCKET ボルト 六角穴 M03X004 FE
28 W1010A 2 WASHER, CONICAL ワッシャ 皿 M- 3-L FE
29 H5288A 5 BOLT, HEX SOCKET ボルト 六角穴 M04X010 FE
30 W1011A 5 WASHER, CONICAL ワッシャ 皿 M- 4-L FE
31 GGQC1313 1 RETAINER, RAIL 押え レール FE
32 H5288A 8 BOLT, HEX SOCKET ボルト 六角穴 M04X010 FE
33 W1011A 8 WASHER, CONICAL ワッシャ 皿 M- 4-L FE
34 GGQC1004 1 GUIDE, BOARD ガイド 基板 FE
35 H5288A 5 BOLT, HEX SOCKET ボルト 六角穴 M04X010 FE
161
PTS-XPFL-05.1JE

CONVEYOR 1/8
コンベア 1/8 2QGGCA000102
No. Drg.No. & Code No. QTY Description Rating Materials Remarks
番号 図番 & コード番号 個数 品名 規格 材質 備考
36 W1011A 5 WASHER, CONICAL ワッシャ 皿 M- 4-L FE
37 ADBPP8012 2 PULLEY プーリ OT
38 ADBPP8022 1 PULLEY プーリ OT
38.1 AGGQC8081 1 PULLEY プーリ OT Thin panel option
39 DEQC0340 4 GUIDE, SIDE ガイド サイド FE
40 H5288A 4 BOLT, HEX SOCKET ボルト 六角穴 M04X010 FE
41 W1011A 4 WASHER, CONICAL ワッシャ 皿 M- 4-L FE
43 AA45L03 1 PULLEY プーリ OT
43.1 AGGQC8072 1 PULLEY プーリ OT Thin panel option
45 N10790 1 NUT, SQUARE ナット 四角 M 4 P=0.7(3カ シロ) OT
46 GGQC2510 2 BKT, CYLINDER BKT シリンダ FE
47 H5290A 4 BOLT, HEX SOCKET ボルト 六角穴 M04X015 FE
48 W1022A 4 WASHER, LOCK ワッシャ スプリング 4M/M FE
49 GGQC2291 1 BKT BKT FE
50 GGQC2301 2 BOLT ボルト FE
51 S3244D 2 SPACER スペーサ CU-403 OT
52 GGQC2281 1 BOX, REJECT BOX NG FE
53 GGQC2650 2 GUIDE ガイド FE
54 H5277A 2 BOLT, HEX SOCKET ボルト 六角穴 M03X012 FE
55 W1010A 2 WASHER, CONICAL ワッシャ 皿 M- 3-L FE
56 GGQC0131 2 BKT BKT FE
57 H5288A 4 BOLT, HEX SOCKET ボルト 六角穴 M04X010 FE
58 W1022A 4 WASHER, LOCK ワッシャ スプリング 4M/M FE
59 N1084B 2 NUT, HEX ナット 六角 M05 3シュ(3カ クロ) FE
60 GGQC0120 2 STOPPER ストッパ FE
61 GGQC3660 1 SHEET, RUBBER シート ゴム AL
62 GGQC2060 1 BOX, REJECT BOX NG FE
63 GGQC0772 1 PLATE プレート AL
64 GGQC1052 1 BLOCK 駒 FE
65 H5275A 2 BOLT, HEX SOCKET ボルト 六角穴 M03X008 FE
66 W1010A 2 WASHER, CONICAL ワッシャ 皿 M- 3-L FE
67 GGQC1042 1 BLOCK 駒 FE
68 H5275A 2 BOLT, HEX SOCKET ボルト 六角穴 M03X008 FE
69 W1010A 2 WASHER, CONICAL ワッシャ 皿 M- 3-L FE
70 S3020T 2 SPRING スプリング WF5-30 OT
71 GGQC0794 1 PLATE プレート FE
72 K5255H 4 SCREW, HEX SOCKET BUTTON 小ネジ 六角穴ボタン M03X005 FE
73 GGQC0181 1 GUIDE, BELT ガイド ベルト AL
162
PTS-XPFL-05.1JE