PTS-XPFL-05.1JE - 第165页
ࡇࡢ࣮࣌ࢪࡣࣈࣛࣥࢡ࣮࣌ࢪ࡛ࡍࠋ This page intentionally blank. 165 PTS-XPFL-05.1JE

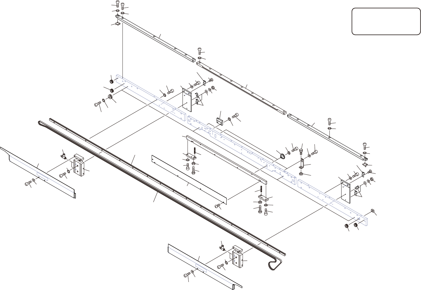
CONVEYOR 1/8
コンベア 1/8 2QGGCA000102
No. Drg.No. & Code No. QTY Description Rating Materials Remarks
番号 図番 & コード番号 個数 品名 規格 材質 備考
116 GGAJ0380 1 SHEET, RUBBER シート ゴム OT
120 GGAJ0042 1 BKT, SENSOR BKT センサ FE GLUE OPTION
121 H5276A 2 BOLT, HEX SOCKET ボルト 六角穴 M03X010 FE GLUE OPTION
122 W1021A 2 WASHER, LOCK ワッシャ スプリング 3M/M FE GLUE OPTION
123 W1042A 2 WASHER, FLAT ワッシャ 平 4W- 3 FE GLUE OPTION
124 GGAJ0054 1 BLOCK, JIG ブロック 治具 FE GLUE OPTION
125 H5292A 2 BOLT, HEX SOCKET ボルト 六角穴 M04X020 FE GLUE OPTION
126 W1011A 2 WASHER, CONICAL ワッシャ 皿 M- 4-L FE GLUE OPTION
127 GGAJ0064 1 SHAFT, JIG シャフト 治具 FE GLUE OPTION
128 H3327A 1 BUSHING ブシュ LHFC-N6 OT GLUE OPTION
129 H5274A 2 BOLT, HEX SOCKET ボルト 六角穴 M03X006 FE GLUE OPTION
130 W1010A 2 WASHER, CONICAL ワッシャ 皿 M- 3-L FE GLUE OPTION
131 S4067W 1 SENSOR センサ MSNC1.5 OT GLUE OPTION
164
PTS-XPFL-05.1JE
ࡇࡢ࣮࣌ࢪࡣࣈࣛࣥࢡ࣮࣌ࢪ࡛ࡍࠋ
This page intentionally blank.
165
PTS-XPFL-05.1JE

$'-867$%/(6,'(
ᚑືഃ
2
1
24
51
59
56
3
11
49
55
5
53
6
58
25
60
8
30
38
27
33
29
35
32
37
48
45
43
39
40
42
50
55
45
16
16
46
19
17
21
22
7
4
9
10
12
13
14
15
26
61
28
24
25
26
31
34
36
23
41
44
52
57
53
52
58
57
51
63
62
47
62
63
50.1
19.1
17.1
64
65
66
67
68
64
64
65
66
67
68
64
ࢥࣥ࣋
&219(<25
2QGGCA000102
166
PTS-XPFL-05.1JE