PTS-XPFL-05.1JE - 第175页
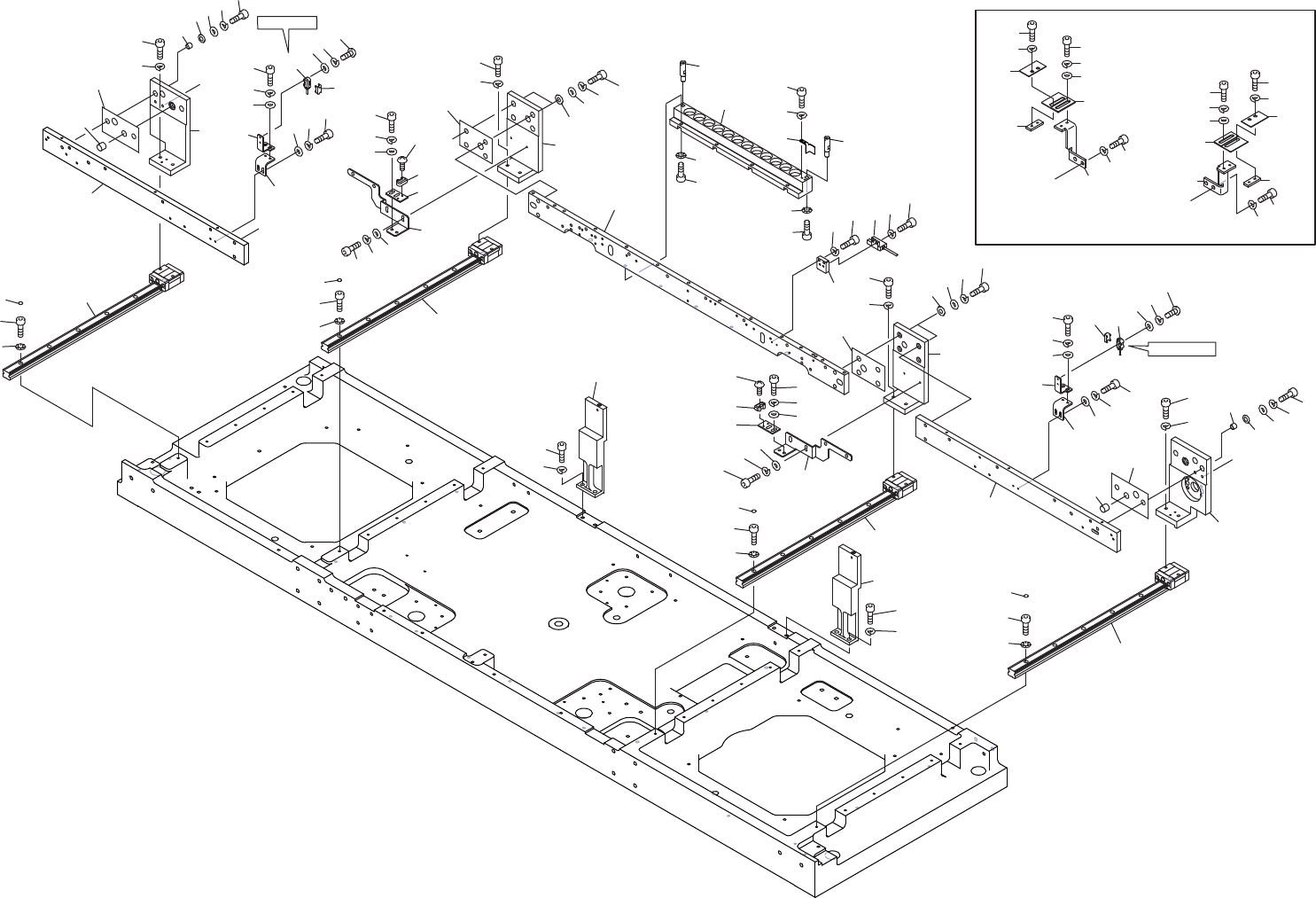
CONVEYOR 4/8 コンベア 4/8 2QGGCA000102 No. Drg.No. & Code No. QTY Description Rating Materials Remarks 番号 図番 & コード番号 個 数 品名 規格 材質 備考 1 GGQC0075 1 PLATE プレート FE 2 GGQC2170 2 BLOCK ブロック AL 3 GGQC1940 2 SHEET シート OT 4 …

AA
AA
EMITTER
RECEIVER
BB
CC
BB
CC
OPTION
81
85
87
86
88
89
90
92
91
53
52
51
11
12
13
50
11
47
48
49
43
36
73
39
40
41
42
37
27
64
63
32
47
11
20
19
18
17
31
30
29
28
4
10
9
8
7
5
6
2
3
1
11
12
13
12
13
21
14
15
16
27
26
22
23
24
25
49
48
26
22
12
13
44
45
46
21
38
23
24
25
2
3
67
65
61
62
89
68
69
74
75
76
80
81
77
82
83
84
54
55
56
79
78
10.1
57
57.1
11.1
11.1
11.1
11.1
59
70
71
72
66
60
58
59
82
83
84
77
95
96
97
98
99
100
101
102
103
104
101
102
103
104
105
106
107
108
105
106
107
108
ࢥࣥ࣋
&219(<25
2QGGCA000102
174
PTS-XPFL-05.1JE

CONVEYOR 4/8
コンベア 4/8 2QGGCA000102
No. Drg.No. & Code No. QTY Description Rating Materials Remarks
番号 図番 & コード番号 個数 品名 規格 材質 備考
1 GGQC0075 1 PLATE プレート FE
2 GGQC2170 2 BLOCK ブロック AL
3 GGQC1940 2 SHEET シート OT
4 GGQC2153 1 BKT, CONVEYOR BKT コンベア FE
5 H5290A 2 BOLT, HEX SOCKET ボルト 六角穴 M04X015 FE
6 W1022A 2 WASHER, LOCK ワッシャ スプリング 4M/M FE
7 H5324A 2 BOLT, HEX SOCKET ボルト 六角穴 M06X020 FE
8 W1024A 2 WASHER, LOCK ワッシャ スプリング 6M/M FE
9 W1040W 2 WASHER, FLAT ワッシャ 平 6M/MX1.6X12.5(1W-6)(3カ クロ) FE
10 GGQC2390 2 WASHER, FLAT ワッシャ 平 PL
10.1 GGQC2410 2 COLLAR カラー OT
11 GGQC0742 4 GUIDE, RAIL ガイド レール OT
11.1 K20087 24 CAP キャップ C03 OT
12 H5277A 24 BOLT, HEX SOCKET ボルト 六角穴 M03X012 FE
13 W1010A 24 WASHER, CONICAL ワッシャ 皿 M- 3-L FE
14 GGQC1863 1 BKT, CONVEYOR BKT コンベア FE
15 H5290A 2 BOLT, HEX SOCKET ボルト 六角穴 M04X015 FE
16 W1022A 2 WASHER, LOCK ワッシャ スプリング 4M/M FE
17 H5322A 4 BOLT, HEX SOCKET ボルト 六角穴 M06X015 OT
18 W1024A 4 WASHER, LOCK ワッシャ スプリング 6M/M FE
19 W1040W 4 WASHER, FLAT ワッシャ 平 6M/MX1.6X12.5(1W-6)(3カ クロ) FE
20 GGQC2400 4 WASHER, FLAT ワッシャ 平 PL
21 GGQC1960 2 SHEET シート OT
22 GGQC0281 2 BKT BKT FE
23 H5276A 4 BOLT, HEX SOCKET ボルト 六角穴 M03X010 FE
24 W1021A 4 WASHER, LOCK ワッシャ スプリング 3M/M FE
25 W1042A 4 WASHER, FLAT ワッシャ 平 4W- 3 FE
26 S3125K 2 SW, PHOTOELECTRIC SW 光電 E3T-ST13 OT
27 K5175Y 4 SCREW, C/R PAN 小ネジ 十穴鍋 M02X010 ステンレス FE
28 GGQC0262 1 BKT BKT FE
29 H5275A 2 BOLT, HEX SOCKET ボルト 六角穴 M03X008 FE
30 W1021A 2 WASHER, LOCK ワッシャ スプリング 3M/M FE
31 W1042A 2 WASHER, FLAT ワッシャ 平 4W- 3 FE
32 GGQC1974 1 PLATE プレート FE
36 GGQC1883 1 BKT, CONVEYOR BKT コンベア FE
37 H5290A 2 BOLT, HEX SOCKET ボルト 六角穴 M04X015 FE
38 W1022A 2 WASHER, LOCK ワッシャ スプリング 4M/M FE
39 H5322A 4 BOLT, HEX SOCKET ボルト 六角穴 M06X015 OT
175
PTS-XPFL-05.1JE

CONVEYOR 4/8
コンベア 4/8 2QGGCA000102
No. Drg.No. & Code No. QTY Description Rating Materials Remarks
番号 図番 & コード番号 個数 品名 規格 材質 備考
40 W1024A 4 WASHER, LOCK ワッシャ スプリング 6M/M FE
41 W1040W 4 WASHER, FLAT ワッシャ 平 6M/MX1.6X12.5(1W-6)(3カ クロ) FE
42 GGQC2400 4 WASHER, FLAT ワッシャ 平 PL
43 GGQC0271 1 BKT BKT FE
44 H5275A 2 BOLT, HEX SOCKET ボルト 六角穴 M03X008 FE
45 W1021A 2 WASHER, LOCK ワッシャ スプリング 3M/M FE
46 W1042A 2 WASHER, FLAT ワッシャ 平 4W- 3 FE
47 GGQC1371 2 BLOCK, REFERENCE ブロック 基準 FE
48 H5300A 4 BOLT, HEX SOCKET ボルト 六角穴 M05X015 FE
49 W1023A 4 WASHER, LOCK ワッシャ スプリング 5M/M FE
50 GGQC0095 1 PLATE プレート FE
51 GGQC2163 1 BKT, CONVEYOR BKT コンベア FE
52 H5290A 2 BOLT, HEX SOCKET ボルト 六角穴 M04X015 FE
53 W1022A 2 WASHER, LOCK ワッシャ スプリング 4M/M FE
54 H5324A 2 BOLT, HEX SOCKET ボルト 六角穴 M06X020 FE
55 W1024A 2 WASHER, LOCK ワッシャ スプリング 6M/M FE
56 W1040W 2 WASHER, FLAT ワッシャ 平 6M/MX1.6X12.5(1W-6)(3カ クロ) FE
57 GGQC2390 2 WASHER, FLAT ワッシャ 平 PL
57.1 GGQC2410 2 COLLAR カラー OT
58 GGQC2761 1 HOLDER, PIN ホルダ ピン FE
59 GGQC2770 2 PIN ピン FE
60 H5275A 2 BOLT, HEX SOCKET ボルト 六角穴 M03X008 FE
61 W1010A 2 WASHER, CONICAL ワッシャ 皿 M- 3-L FE
62 GGQC3141 1 DOG ドッグ FE
63 H52683 2 BOLT, HEX SOCKET ボルト 六角穴 M02.5X005 FE
64 W1020H 2 WASHER, LOCK ワッシャ スプリング 2.5M/M FE
65 H5287A 4 BOLT, HEX SOCKET ボルト 六角穴 M04X008 ゼンネジ FE
66 W1011A 4 WASHER, CONICAL ワッシャ 皿 M- 4-L FE
67 GGQC3130 1 BKT, SENSOR BKT センサ FE
68 H5276A 2 BOLT, HEX SOCKET ボルト 六角穴 M03X010 FE
69 W1021A 2 WASHER, LOCK ワッシャ スプリング 3M/M FE
70 S4077H 1 SENSOR, PHOTO センサ フォト PM-F44P-C3 FE
71 H5275A 2 BOLT, HEX SOCKET ボルト 六角穴 M03X008 FE
72 W1021A 2 WASHER, LOCK ワッシャ スプリング 3M/M FE
73 GGQC2800 1 BKT BKT FE
74 H5275A 2 BOLT, HEX SOCKET ボルト 六角穴 M03X008 FE
75 W1021A 2 WASHER, LOCK ワッシャ スプリング 3M/M FE
76 W1042A 2 WASHER, FLAT ワッシャ 平 4W- 3 FE
176
PTS-XPFL-05.1JE