PTS-XPFL-05.1JE - 第293页
ࡇࡢ࣮࣌ࢪࡣࣈࣛࣥࢡ࣮࣌ࢪ࡛ࡍࠋ This page intentionally blank. 293 PTS-XPFL-05.1JE

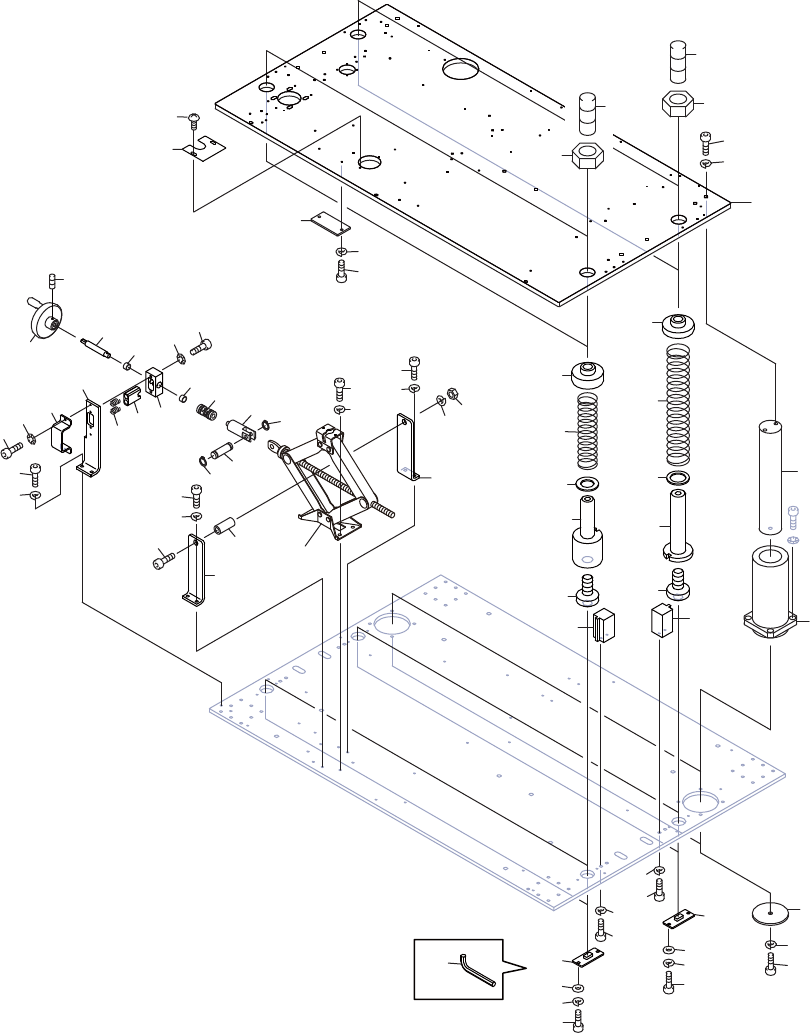
MTU-AII(BODY) 1/3
MTU-AII(本体) 1/3 2QGGTA000204
No. Drg.No. & Code No. QTY Description Rating Materials Remarks
番号 図番 & コード番号 個数 品名 規格 材質 備考
48 GGTF6840 1 SHEET シート OT
49 GGTF6812 1 HANDLE ハンドル FE
50 GGTF6900 1 SHEET シート OT
51 GGTF6830 1 SHEET シート OT
52 GGTF6850 2 PIN, PIVOT ピン 支点 FE
53 T3010R 2 KNOB ツマミ SFK50BX20 OT
54 S3275B 2 STOPPER ストッパ AZXHC30-25-M8 OT
55 H5342A 2 BOLT, HEX SOCKET ボルト 六角穴 M08X025 FE
56 W1014A 2 WASHER, CONICAL ワッシャ 皿 M- 8-H FE
292
PTS-XPFL-05.1JE
ࡇࡢ࣮࣌ࢪࡣࣈࣛࣥࢡ࣮࣌ࢪ࡛ࡍࠋ
This page intentionally blank.
293
PTS-XPFL-05.1JE

5
6
2
7
11
12
3
10
9
8
6
13
14
16
15
23
17
18
19
1
41
42
24
20
16
25
22
21
26
21
22
30
31
32
40
43
37
36
35
44
46
45
56
57
28
29
27
20
64
65
50
51
47
48
49
53
52
54
54
58
55
56
57
58
55
59
59
60
61
60
61
62
63
62
63
67
078$,,ᮏయ
078$,,%2'<
2QGGTA000204
294
PTS-XPFL-05.1JE