PTS-XPFL-05.1JE - 第306页
C C E E E E F F J J J J Z Z F F K K K K B B C C A A A A B B G G G G H H Z Z Z Z D D D D H H 1 2 2 2 2 2 2 3 4 5 6 7 8 9 10 11 12 13 14 15 16 17 21 24 25 26 27 28 164 165 166 167 167 169 168 29 30 31 32 33 34 35 36 37 39 …

GLUE AUTO-TOOL
グルーオートツール 2QGGHT000100
No. Drg.No. & Code No. QTY Description Rating Materials Remarks
番号 図番 & コード番号 個数 品名 規格 材質 備考
1 GGRD1030 1 SHEET, RUBBER シート ゴム PL
2 GGRD2010 1 PLATE, UPPER プレート 上 AL
3 GGRD1360 1 SHEET, RUBBER シート ゴム PL
4 ABTRG1120 1 FLOAT フロート OT 1set = 20
4.1 BTRG0910 1 FLOAT フロート OT
4.2 BTRG0900 1 SEAL シール OT
5 AGGRD8141 1 SYRINGE シリンジ PL
5.1 GGRD1091 1 SYRINGE シリンジ PL
5.2 BTRG0870 1 CAP キャップ PL
5.3 BTRG0880 1 CAP キャップ PL
6 GGRD1272 1 CAP キャップ FE
7 A5132B 1 O RING Oリング S10(HS50 シリコン) OT
8 GGRD2030 1 HOLDER ホルダ PL
9 A5137B 1 O RING Oリング S28 OT
10 H5265A 3 BOLT, HEX SOCKET ボルト 六角穴 M02X005 FE
11 W1020A 3 WASHER, LOCK ワッシャ スプリング 2M/M FE
12 W1039E 3 WASHER, FLAT ワッシャ 平 2M/MX0.3X5(1W-2)(3カ クロ) FE
13 GGRD1110 1 NUT ナット AL
14 GGRD2021 1 HOLDER ホルダ AL
15 H5276A 4 BOLT, HEX SOCKET ボルト 六角穴 M03X010 FE
16 W1010A 4 WASHER, CONICAL ワッシャ 皿 M- 3-L FE
18 AGGRD8030 1 NEEDLE ニードル OT INT, φ0.58
19 AGGRD8040 1 NEEDLE ニードル OT INT, φ0.51
20 AGGRD8050 1 NEEDLE ニードル OT INT, φ0.72
21 AGGRD8060 1 NEEDLE ニードル OT INT, φ0.33
22 AGGRD8070 1 NEEDLE ニードル OT INT, φ0.41
23 AGGRD8080 1 NEEDLE ニードル OT INT, φ1.0
24 AGGRD8090 1 NEEDLE ニードル OT INT, φ0.9
25 AGGRD8100 1 NEEDLE ニードル OT INT, φ0.8
26 AGGRD8110 1 NEEDLE ニードル OT INT, φ0.3
27 AGGRD8120 1 NEEDLE ニードル OT INT, φ0.26
305
PTS-XPFL-05.1JE

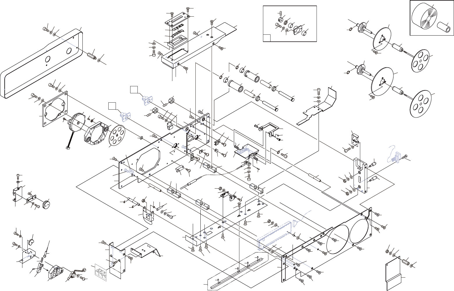
CC
EE
EE
FF
JJ
JJ
ZZ
FF
KK
KK
BB
CC
AA
AA
BB
GG
GG
HH
ZZ
ZZ
DD
DD
HH
1
2
2
2
2
2
2
3
4
5
6
7
8
9
10
11
12
13
14
15
16
17
21
24
25
26
27
28
164
165
166
167
167
169
168
29
30
31
32
33
34
35
36
37
39
152
159
160
161
162
163
153
153
64
68
68.1
68.1
69
70
71
72
73
74
76
77
78
79
80
75
81
82
83
83
83
83
74
74
68
64
64
64
64
64
64
64
64
42
81.1
43
43
45
46
46
47
48
48
49
50
51
52
53
54
55
151
55
56
57
58
59
62
63
60
42
155
155
170
170
171
141
141
142
142
38
22
23
23.1
23.2
39
55
158
60.1
59
60
60.1
84
85
85
85
85
86
87
88
89
90.1
90
91
92
93
94
95
95
144
148
149
150
147
96
97
98
99
100
101
102
103
103.1
104
105
105
108
108
109
109
156
157
110
111
112
143
154
114
115
116
118
119
120
121
127
129
130
131
132
133
134
136
137
138
139
140
140.1
128
122
123
126
117
112
94
95
95
96.1
97
98
85
34
35
146
145
171
2QGGYB000101
ࢢ࣮ࣝࢳ࢙ࢵࢡࣘࢽࢵࢺ
*/8(&+(&.81,7
306
PTS-XPFL-05.1JE

GLUE CHECK UNIT
グルーチェックユニット 2QGGYB000101
No. Drg.No. & Code No. QTY Description Rating Materials Remarks
番号 図番 & コード番号 個数 品名 規格 材質 備考
1 GGRD1884 1 PLATE, SIDE プレート サイド AL
2 K5186X 7 SCREW, C/R COUNTERSUNK 小ネジ 十穴皿 M03X008(ステンレス) FE
3 GGRD1791 4 SPACER スペーサ FE
4 GGRD2810 1 BKT BKT AL
5 H5289A 4 BOLT, HEX SOCKET ボルト 六角穴 M04X012 FE
6 W1022A 4 WASHER, LOCK ワッシャ スプリング 4M/M FE
7 W1043A 4 WASHER, FLAT ワッシャ 平 4W- 4 FE
8 AA00715 1 BKT, MOTOR BKT モータ OT
9 K5357M 4 SCREW, HEX SOCKET COUNTERSUNK 小ネジ 六角穴皿 M03X006 FE
10 W1021A 4 WASHER, LOCK ワッシャ スプリング 3M/M FE
11 W1040R 4 WASHER, FLAT ワッシャ 平 3M/MX0.5X7(1W-3)(3カ クロ) FE
12 AA00606 1 MOTOR, STEPPING モータ ステッピング OT
13 K5255T 2 SCREW, HEX SOCKET BUTTON 小ネジ 六角穴ボタン M03X006 FE
14 AA10R06 1 GEAR ギヤ OT
15 PM03703 1 WASHER ワッシャ FE
16 K5357M 1 SCREW, HEX SOCKET COUNTERSUNK 小ネジ 六角穴皿 M03X006 FE
17 GGRD2800 1 COVER, PROTECTIVE カバー 保護 FE
21 S3228X 6 SPACER スペーサ BSB-315E OT
22 K5255H 6 SCREW, HEX SOCKET BUTTON 小ネジ 六角穴ボタン M03X005 FE
23 W1021A 6 WASHER, LOCK ワッシャ スプリング 3M/M FE
23.1 W1040R 6 WASHER, FLAT ワッシャ 平 3M/MX0.5X7(1W-3)(3カ クロ) FE
23.2 W1042A 6 WASHER, FLAT ワッシャ 平 4W- 3 FE
24 2MGGYB000100 1 TABLE テーブル FE
25 H5283H 2 BOLT, HEX SOCKET ボルト 六角穴 M03X040 FE
26 W1010A 2 WASHER, CONICAL ワッシャ 皿 M- 3-L FE
27 GGRD1630 1 RETAINER, SENSOR 押え センサ PL
28 H5277A 2 BOLT, HEX SOCKET ボルト 六角穴 M03X012 FE
29 W1021A 2 WASHER, LOCK ワッシャ スプリング 3M/M FE
30 W1042A 2 WASHER, FLAT ワッシャ 平 4W- 3 FE
31 S4101A 1 SENSOR センサ EM-038P OT
32 . 1 BKT BKT OT ACC-31
33 K5172G 2 SCREW, C/R TRUSS 小ネジ 十穴トラス M03X010(3カ シロ) FE
34 GGRD1820 2 PLATE, RETAINING プレート 押え FE
35 K51710 2 SCREW, C/R TRUSS 小ネジ 十穴トラス M03X005(3カ シロ) FE
36 AGGRD8130 2 GUIDE, SPRING ガイド スプリング OT
37 H5273A 4 BOLT, HEX SOCKET ボルト 六角穴 M03X005 FE
38 W1021A 4 WASHER, LOCK ワッシャ スプリング 3M/M FE
39 GGRD1920 2 PIN ピン FE
307
PTS-XPFL-05.1JE