NPM-D3规格说明书 - 第87页
NPM-D3 2014.0428 - 81 - 项 目 规 格 基板缺口条件 基板缺口尺寸必需满足以下条件。 ■ 长型规格传送带时 L L1 50 mm ≦ L ≦ 350 mm 不超过 L/4 350 mm < L ≦ 510 mm L/4 或者 100 mm 的较小的一个 W W1 50 mm ≦ W ≦ 300 mm W/3 或者 30 mm 的较小的一个 300 mm < W ≦ 590 mm 请另行商洽。 ■ 短型规格传送带时…

NPM-D3 2014.0428
- 80 -
7. 印刷基板设计基准
7.1 印刷基板规格概要
※1 ( ) 内的数値: 单轨模式时
※
2 ( )
内的数値
:
短型规格传送带时
项 目
长型规格传送带 短型规格传送带
双轨模式 单轨模式 双轨模式 单轨模式
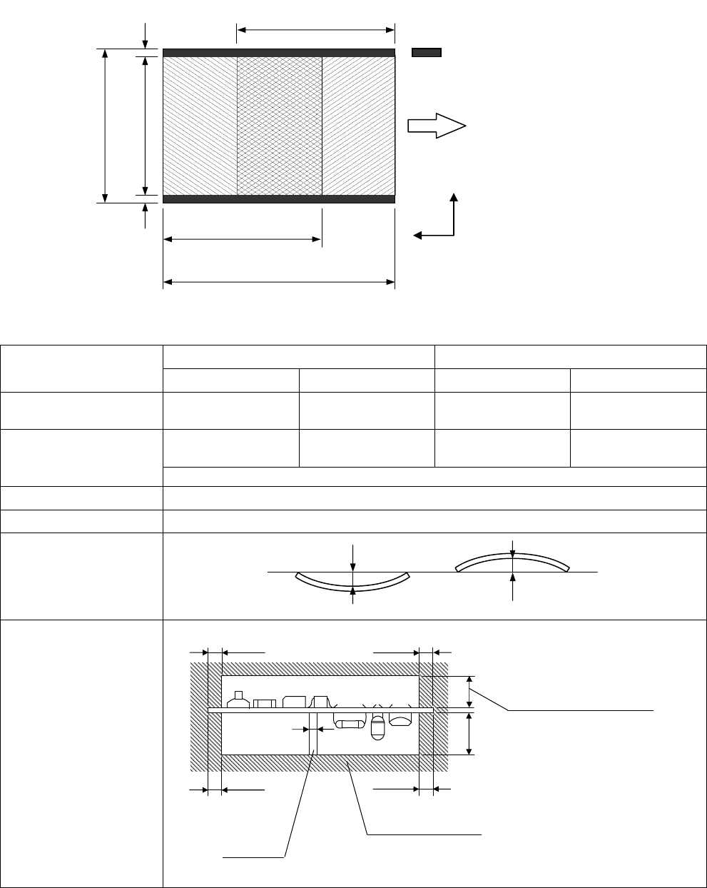
基板尺寸
50 × 50 mm ~
510 × 300 mm
50 × 50 mm ~
510 × 590 mm
50 × 50 mm ~
460 × 300 mm
50 × 50 mm ~
460 × 590 mm
贴装/检查可能范围
50 × 44 mm ~
510 × 294 mm
50 × 44 mm ~
510 × 584 mm
50 × 44 mm ~
460 × 294 mm
50 × 44 mm ~
460 × 584 mm
※ 有关点胶范围的详细情况请参照「4.4 有关点胶范围的限制」。
基板厚度
0.3 mm ~ 8.0 mm
基板重量 1.5 kg以下 (实装后的状态,包括载体重量。)
※3
基板弯曲容许
基板断面
贴装前基板状态
※3 基板重量(包括载体重量)超过 1.5 kg 的情况时,请另行联络。
※4 使用支撑销自动更换功能的情况时,支撑销形状、销的配置条件等有异。
详细请参阅「9. 选购件: 支撑销的自动更换」。
※ 有关陶瓷基板的对应请另行联络。
Max. 0.5 mm
Max. 0.5 mm
禁止有元件的范围
16
吸嘴贴装头
: 6.5 mm
12
吸嘴贴装头
: 6.5 mm
8
吸嘴贴装头
: 12 mm
2
吸嘴贴装头
: 28 mm
点胶头
: 28 mm
支撑销
※
4
(
设置在与反面元件距离隔开
2 mm
以上的位置。
)
28 mm
3 mm
3 mm
3 mm
φ
3
3 mm
Y
X
固定侧
禁止有元件
(
或者锡膏等
)
的范围
3 mm
3 mm
分割实装时的贴装范围
350 mm (260 mm)
※
2
44 mm ~ 294 mm
(44 mm ~ 584 mm)
※1
50 mm ~ 300 mm
(50 mm ~ 590 mm)
※1
分割实装时的贴装范围
350 mm (260 mm)
※
2
50 mm ~ 510 mm
(50 mm ~ 460 mm)
※2
流向

NPM-D3 2014.0428
- 81 -
项 目
规 格
基板缺口条件
基板缺口尺寸必需满足以下条件。
■
长型规格传送带时
L L1
50 mm
≦
L
≦
350 mm
不超过
L/4
350 mm
<
L
≦
510 mm L/4
或者
100 mm
的较小的一个
W W1
50 mm
≦
W
≦
300 mm W/3
或者
30 mm
的较小的一个
300 mm
<
W
≦
590 mm
请另行商洽。
■
短型规格传送带时
L L1
50 mm
≦
L
≦
260 mm
不超过
L/4
260 mm
<
L
≦
460 mm L/4
或者
70 mm
的较小的一个
W W1
50 mm
≦
W
≦
300 mm W/3
或者
30 mm
的较小的一个
300 mm
<
W
≦
590 mm
请另行商洽。
※
以上是在基板厚度为
1.6 mm
以上时的情况。
基板厚度
1.6 mm
未满时,请另行商洽。
基板端面的元件伸出条
件
请另行商洽。
L1
L
W1
W1
W
只限任意一处
流向
A
A

NPM-D3 2014.0428
- 82 -
7.2 识别标记
基板识别标记,需要基板的 2 个对角位置。
■ 基板识别标记规格
标准标记形状和尺寸 标记形状 尺 寸
○
φ0.5 mm ~ φ1.6 mm
△(正三角形)
一边长度是 0.5 mm ~ 1.6 mm
□
纵横 0.5 mm ~ 1.6 mm
纵横 0.5 mm ~ 1.6 mm
所谓尺寸的纵横,指标记所外接的四角形的尺寸
标记材质和
电路图形
基板识别补正,根据与标记和电路图形(导电体图形)的位置关系而定。
因此,对补正精度来讲,标记必须与电路图形的工程材质相同。
标记材质和
基板质地的画像条件
基本上,标记识别依靠照明的反射光强度来进行,因此标记材质和基板质地需要具有一
定的对比度。
此反差,会因电镀状态,氧化状态,表面高度,偏差,镜面性,保护物质,干扰光大变
化,需要评价对象标记。
标记尺寸和背景
标记的背景,需要与标记所相异的一定尺寸以上的不干涉区域。
■ 有关分割实装时的基板识别标记
基板识别标记,需要基板的 2 个对角位置。
传送方向尺寸(L)超过 350 mm
※
的基板,通过分割实装进行对应。
分割实装中也需要对角 2 点有基板识别标记,推荐下图所示的位置有基板识别标记。
※ 短型规格传送带时: 超过 L 260 mm 的基板以分割实装来对应。
推荐例)
※ ( )内的数値: 短型规格传送带时
350 mm
<
L
≦
510 mm (460 mm
※
)
基板识别标记必要范围
基板识别标记
(
在分割实装①使用
)
基板识别标记
(
在分割实装②使用
)
350 mm (260 mm
※
)
进行分割实装①的范围
350 mm (260 mm
※
)
进行分割实装②的范围
流向
不干涉区域
a
≧
0.2 mm
以上
标记不一定必须为黑色。
标记
a
a
a
a