RX-7_RX-7R-Rev09PDFA - 第262页
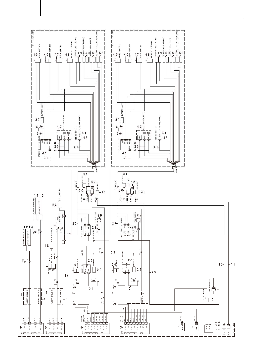
B-20 B6 【 RX-7R 】 SYSTEM DIAGRAM (6) 【 RX-7R 】 SYSTEM DIAGRAM (6)

B-20
B6
【RX-7R】SYSTEM DIAGRAM (6)
【RX-7R】SYSTEM DIAGRAM (6)

B-21
B6
【RX-7R】SYSTEM DIAGRAM (6)
【RX-7R】SYSTEM DIAGRAM (6)
イラスト番号
Ref.No.
品番
Part Number
Description
品名
個数
Q'ty
備考
Remarks
1 401-58294 SERVO AMPLIFIER サ-ボ アンプ 1
2 EZ1-492-145-11 AMPLIFIER SERVO (MR-J4W2-22B-#) サ-ボ アンプ (MR-J4W2-22B-MK0 1
3 EZ1-492-147-11 AMPLIFIER SERVO サ-ボ アンプ (MR-MD202-S016) 2
4 402-07124 YM YE-YM1(R) CABLE ASM YM YE-YM1(R) ケーブルクミ 2
5 402-07123 YM YE-YM1(L) CABLE ASM YM YE-YM1(L) ケーブルクミ 1
6 EZ1-969-122-13 HARNESS (ZM1-ZM2) ハ-ネス (ZM1-ZM2) 1
7 402-07119 HEAD ETC-H1M H1E(R) CABLE ASM ヘッド ETC-H1M H1E(R) ケーブルクミ 1
8 402-07118 HEAD ETC-H1M H1E(L) CABLE ASM ヘッド ETC-H1M H1E(L) ケーブルクミ 1
9 EZ1-458-773-11 USB EXTENSION (USB-EX50) USB EXTENSION (USB-EX50) 1
10 EZ1-969-135-22 HARNESS (BCSEN-AMP) ハ-ネス (BCSEN-AMP) (R) 1
11 EZ1-969-135-12 HARNESS (BCSEN-AMP) ハ-ネス (BCSEN-AMP) (L) 1
12 EZ1-492-231-13 MOTOR ASSY (Y) モ-タ ASSY (Y) R 1
13 401-59986 SCALE ASSY (YR) スケール ASSY (YR) 1
14 EZ1-492-231-23 MOTOR ASSY (Y) モ-タ ASSY (Y) L 1
15 401-59985 SCALE ASSY (YL) スケール ASSY (YL) 1
16 402-07117 XS1-XS2 CABLE ASM XS1-XS2 ケーブルクミ 1
17 EZ1-855-265-11 MOTOR SERVO (HG-KR23) サ-ボ モ-タ (HG-KR23) 1
18 401-59984 SCALE ASSY (XR) スケール ASSY (XR) 1
19 EZ1-492-235-15 MOTOR ASSY (Z) モ-タ ASSY (Z) R 1
20 EZ1-895-367-21 BOARD BACKUP MONITORING バツクアツプ モニタ- ボ-ド (Z) 1
21 401-58057 HARNESS (BAT-BACKUP MONITOR 2) ハ-ネス (BAT-BACKUP モニター 2) 1
22 EZ1-492-202-12 BATTERY ASSY バツテリ- ASSY 1
23 EZ1-969-130-22 HARNESS (HIO-HIO1 HFAN1 HFAN2) ハ-ネス (HIO-HIO1 HFAN1 HFAN2) (R) 1
24 EZ1-492-235-25 MOTOR ASSY (Z) モ-タ ASSY (Z) L 1
25 402-07120 HIO-HIO1 HFAN(L) CABLE ASM HIO-HIO1 HFAN(L) ケーブルクミ 1
26 401-59983 SCALE ASSY (XL) スケール ASSY (XL) 1
27 402-07122 HIO2-HIO3 ZBRK CABLE ASM HIO2-HIO3 ZBRK ケーブルクミ 1
28 401-96402 DRIVER PULSE MOTOR ドライバ PULSE モータ- 1
29 402-11657 FAN ASSY (Y) ファン ASSY (Y) 1
30 EZ1-969-136-12 HARNESS (HDET-DET SEN) ハ-ネス (HDET-DET SEN) 1
31 EZ1-798-475-11 SWITCH (AV630564) スイツチ (AV630564) 1
32 EZ1-492-245-11 UNIT CAMERA PC BOARD (TS-479-100) キバン カメラ ユニツト (TS-479-100) 1
33 HD-0030600-00 SENSOR センサ 1
34 EZ1-969-505-12 HARNESS (BACKUP MONITORING) ハ-ネス (バツクアツプ モニター) 1
35 EZ1-895-367-12 BOARD BACKUP MONITORING バツクアツプ モニタ- ボ-ド 1
36 401-58057 HARNESS (BAT-BACKUP MONITOR 2) ハ-ネス (BAT-BACKUP モニター 2) 1
37 EZ1-492-202-12 BATTERY ASSY バツテリ- ASSY 1
38 EZ1-969-293-14 HARNESS (HEAD LED) ハ-ネス (ヘッド LED) 1
39 EZ1-969-292-14 HARNESS (PART CAMERA) ハ-ネス (PART カメラ) 1
40 EZ1-969-292-24 HARNESS (HEIGHT CAMERA) ハ-ネス (HEIGHT カメラ) 1
41 EZ1-970-003-11 HARNESS (USB LAN) ハ-ネス (USB LAN) 1
42 402-07918 MOVABLE_CAMERA_UNIT_PROTECT
保護付移動カメラユニット
1
43 EZ1-458-773-11 USB EXTENSION (USB-EX50) USB EXTENSION (USB-EX50) 1
44 401-63295 USB MEMORY (SP008GBUF3J06V1D) USB メモリー (SP008GBUF3J06V1D) 1
45 401-61107 MOTOR ASSY (RT)
モータ ASSY (RT)
1
46 EZ1-492-164-25 MOTOR ASSY モ-タ- ASSY (RN ジク) 1
47 EZ1-492-547-14 MOTOR ASSY (H) モ-タ- ASSY (H) 1
48 EZ1-492-167-11 MOTOR ASSY (VALVE)
モ-タ- ASSY (バルブ)
1
49 EZ1-492-168-11 SENSOR ASSY (VALVE) センサ- ASSY (バルブ) 1
50 401-61499 SENSOR ASSY(NOZZLE) センサー ASSY(NOZZLE) 1
51 401-61500 SENSOR ASSY (SHAFT)
センサー ASSY (SHAFT)
1
52 EZ1-492-166-12 SOLENOID VALVE ASSY (BLW) ソレノイド バルブ ASSY 1